Integrated Natural Architecture in Japan: The House in Asagiri Kogen
This article delves into the House in Asagiri Kogen, showcasing its design that integrates natural surroundings with architectural innovation in Japan.
Integrated natural architecture is a design philosophy that harmonizes building designs with their natural surroundings. In Japan, where the appreciation of nature is deeply embedded in culture, this architectural approach is particularly significant. The House in Asagiri Kogen by Buttondesign exemplifies this philosophy, merging daily life seamlessly with the natural environment.

Overview of the House in Asagiri Kogen
Architectural Design and Vision
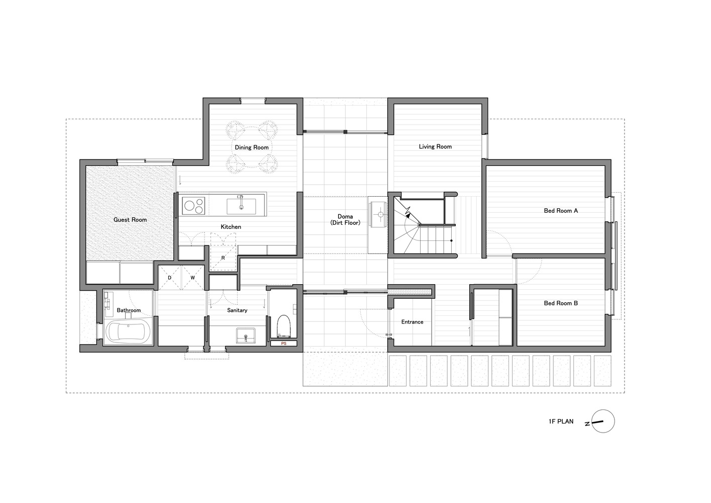
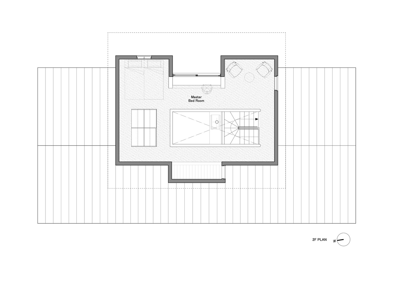
Located on the Asagiri Plateau in Fujinomiya, Japan, this 139 square meter farmhouse is designed for a rancher living at the foot of an 870-meter-high mountain west of Mt. Fuji. Designed by the innovative team at Buttondesign, led by architects Kohei Kikuta and Yuzuru Murakami, the house is a profound response to the dramatically changing weather conditions and the breathtaking landscapes of the region.


The Role of the Environment in Design
From the outset, the architects recognized the scenery not just as a backdrop but as an integral part of the residents' daily lives. This realization guided every aspect of the architectural design, aiming to create a dwelling that reflects the symbiotic relationship between the human and natural worlds.


Key Features of the House
Connection with Nature
The house is strategically planned to make nature a core element of the living space. An earthen floor stretches in a straight line from the top of Mt. Fuji to the center of the house, acting as a gathering point for family and friends, and symbolizing the connection between the home and the mountain.


Seasonal Adaptations
The architectural design takes into account the varying seasons of the Asagiri Plateau. During warmer months, large windows invite cooling breezes from the mountain, while in colder seasons, residents gather around a wood stove, enjoying the warmth and the mesmerizing view of flickering flames, further enhancing the integration with nature.




Architectural Materials and Techniques
Sustainable Building Practices
Reflecting on the sustainable practices, the House in Asagiri Kogen incorporates local materials like cool stone for flooring and features a wood stove that both heats and serves as a focal point in the living space. These choices not only reduce environmental impact but also add to the aesthetic and functional qualities of the home.




The Significance of Integrated Natural Architecture
The House in Asagiri Kogen stands as a testament to the potential of integrated natural architecture in Japan. By embracing the intrinsic link between architecture and its environment, Buttondesign has created a space that is not only sustainable but deeply connected to its cultural and physical landscape. This project serves as an inspiring example for future architectural endeavors that aim to blend human habitation with natural beauty.


All photographs are work of Satoshi Asakawa
Popular Articles
Popular articles from the community
Louis Malle Cinema: A Limestone Cultural Landmark Revitalizing Community Life in Prayssac
Limestone cinema extension with public forecourt, blending heritage and modern design to create flexible cultural spaces and strengthen community interaction.
Flamboyant House by Juliana Camargo + Prumo Projetos
Modern Brazilian house integrating existing tree, pool, and volumes with glass, wood, and transitional spaces blending interior, exterior, and landscape seamlessly.
An Miên Lumière Cafe by xưởng xép, Ho Chi Minh City, Vietnam
An industrial-inspired café where layered steel and warm light create a dynamic, immersive environment shaped by reflection, depth, and perception.
Inverted Architecture Installation by Studio Link-Arc: Exploring the Intersection of Architecture and Living Organisms
Inverted Architecture Installation by Studio Link-Arc blends mycelium, sustainability, inverted design, ecological cycles, and urban adaptive architecture in Shenzhen.
Similar Reads
You might also enjoy these articles
The Ken Roberts Memorial Delineation Competition (Krob)
As the most senior architectural drawing competition currently in operation anywhere in the world, it draws hundreds of entries each year, awarding the very best submissions in a series of medium-based categories.
Waterfront Redevelopment and Urban Revitalization in Mumbai: Forging a New Dawn for Darukhana
A transformative waterfront redevelopment project reimagining Darukhana’s shipbreaking heritage into an inclusive urban future.
OUT-OF-MAP: A Call for Postcards on Feminist Narratives of Public Space
Rhizoma Design and Research Lab invites artists, designers, architects, researchers, and students to reflect on how feminist perspectives can reshape public space. Selected works will be exhibited in Barcelona, October 2026. Submissions open until 15 April 2026.
Documentation Work on Buddhist Wooden Temple
Architectural syncretism and cultural hybridity: A comparative study of the Buddhist temples in Chattogram Hill tracks
Explore Architecture Competitions
Discover active competitions in this discipline
The International Standard for Design Portfolios
The Global Benchmark for Architecture Dissertation Awards
The Global Benchmark for Graduation Excellence
Challenge to reimagine the Iron Throne
Comments (0)
Please login or sign up to add comments
No comments yet. Be the first to comment!