Introduction to Innovative Cultural Architecture
This article explores AEAJ Green Terrace by Kengo Kuma, blending innovative architecture with cultural elements in Shibuya, Japan.
Innovative cultural architecture not only embraces aesthetic values but also integrates cultural significance and sustainability into building designs. The AEAJ Green Terrace, designed by Kengo Kuma & Associates in Shibuya City, Japan, is a stellar example of this, where architecture meets aromatic art in a modern setting.


Overview of AEAJ Green Terrace
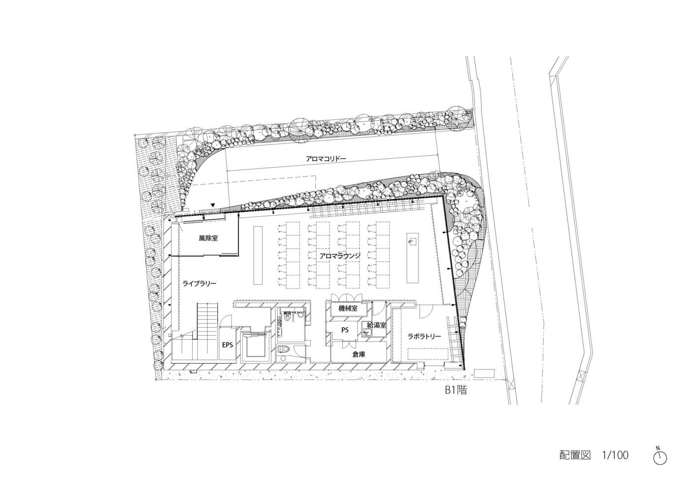
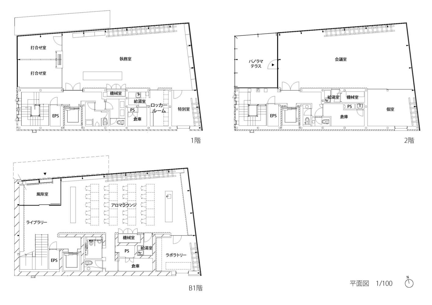
Located in the vibrant district of Shibuya City, the AEAJ Green Terrace covers an area of 491 m² and was completed in 2023. This facility serves as a new cultural space for the Aroma Environment Association of Japan, reflecting the organization's focus on the sensory experience of aroma.

Architectural Design and Concept
Structure and Materials
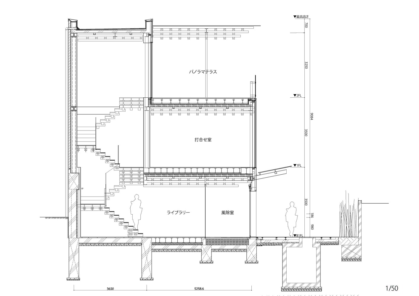
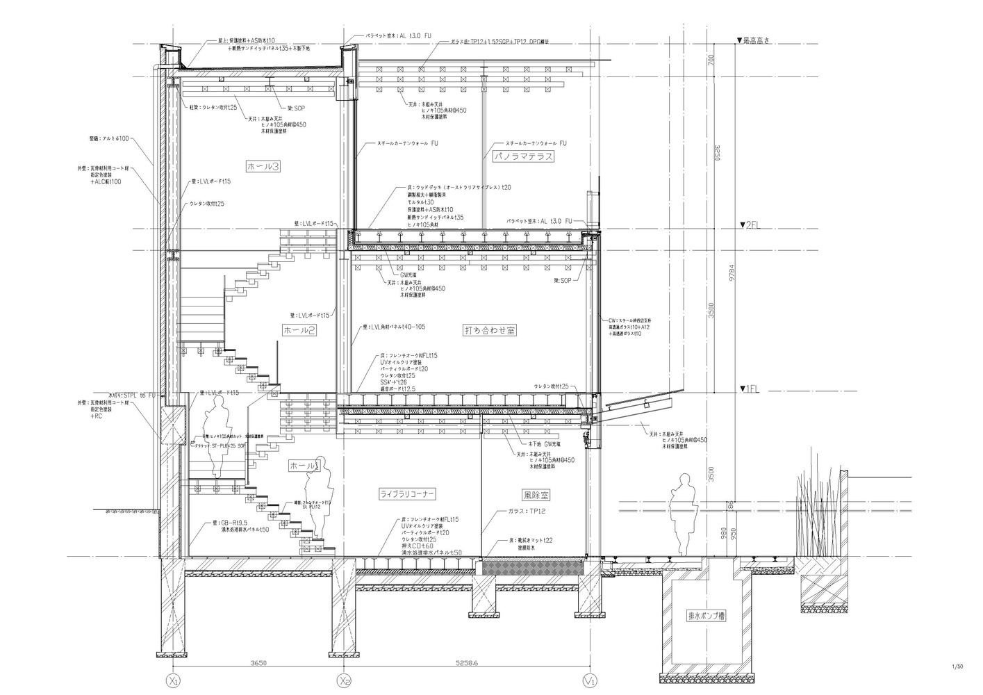
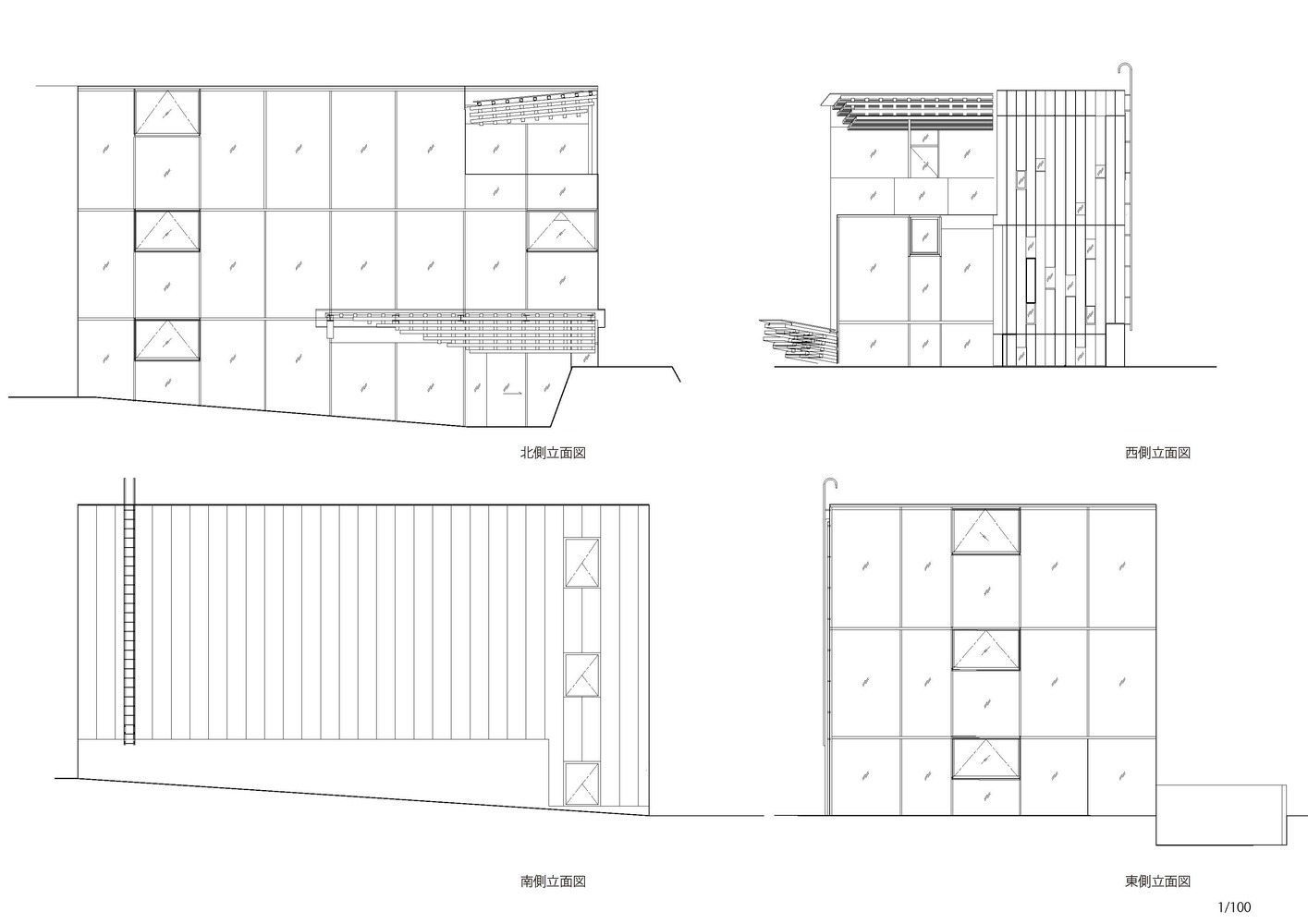
The building’s main structure is a steel frame, meticulously designed to have a minimalistic and delicate appearance, akin to the small sections of Japanese cypress used throughout the building. This design choice not only enhances the structure's aesthetic appeal but also aligns with the building's thematic focus on natural scents.


Glass Enclosure and Aromatic Experience
One of the most distinctive features of AEAJ Green Terrace is its glass box design, which encapsulates the fragrance of wood, allowing visitors to experience the soothing aroma of Japanese cypress throughout the facility.


Integration with the Environment
Visual and Sensory Harmony
The terrace of the building offers an open panoramic view of the Jingumae woods, creating a seamless integration with the surrounding nature. This setting not only provides a breathtaking backdrop but also enhances the aromatic experience, linking scent with scenery.


Comparison with Surrounding Architecture
The design of AEAJ Green Terrace intentionally contrasts with the nearby Yoyogi National Gymnasium by Kenzo Tange, offering a different architectural narrative that complements the urban fabric of Shibuya City.

Sustainability and Cultural Impact
Eco-Friendly Design
The use of sustainably sourced Japanese cypress and the building’s structural efficiency highlight Kengo Kuma & Associates’ commitment to eco-friendly design practices, which are becoming increasingly important in modern architectural projects.


Promoting Cultural Heritage
By focusing on the traditional Japanese appreciation for natural scents and materials, AEAJ Green Terrace serves as a cultural beacon that promotes Japan’s heritage in a modern architectural context.



AEAJ Green Terrace by Kengo Kuma & Associates is a prime example of innovative cultural architecture that beautifully merges functionality with cultural significance. This project not only provides a sensory experience through its aromatic features but also stands as a testament to sustainable and culturally responsive design.



All photographs are work of Masaki Hamada (kkpo)
Popular Articles
Popular articles from the community
On the Brooks House by Monsoon Collective – A Contemporary Kerala Home Rooted in Tradition
Kerala home blending tradition and modernity with water-inspired design, brick architecture, courtyard planning, and sustainable rainwater harvesting strategies.
Atelier Macri Concept Store Interior Design by CASE-REAL
Atelier Macri store features a "ko" counter, walnut wood details, cork displays, blending retail, gallery, and seamless customer experiences.
Flamboyant House by Juliana Camargo + Prumo Projetos
Modern Brazilian house integrating existing tree, pool, and volumes with glass, wood, and transitional spaces blending interior, exterior, and landscape seamlessly.
Inverted Architecture Installation by Studio Link-Arc: Exploring the Intersection of Architecture and Living Organisms
Inverted Architecture Installation by Studio Link-Arc blends mycelium, sustainability, inverted design, ecological cycles, and urban adaptive architecture in Shenzhen.
Similar Reads
You might also enjoy these articles
The Ken Roberts Memorial Delineation Competition (Krob)
As the most senior architectural drawing competition currently in operation anywhere in the world, it draws hundreds of entries each year, awarding the very best submissions in a series of medium-based categories.
Waterfront Redevelopment and Urban Revitalization in Mumbai: Forging a New Dawn for Darukhana
A transformative waterfront redevelopment project reimagining Darukhana’s shipbreaking heritage into an inclusive urban future.
OUT-OF-MAP: A Call for Postcards on Feminist Narratives of Public Space
Rhizoma Design and Research Lab invites artists, designers, architects, researchers, and students to reflect on how feminist perspectives can reshape public space. Selected works will be exhibited in Barcelona, October 2026. Submissions open until 15 April 2026.
Documentation Work on Buddhist Wooden Temple
Architectural syncretism and cultural hybridity: A comparative study of the Buddhist temples in Chattogram Hill tracks
Explore Architecture Competitions
Discover active competitions in this discipline
The International Standard for Design Portfolios
The Global Benchmark for Architecture Dissertation Awards
The Global Benchmark for Graduation Excellence
Challenge to reimagine the Iron Throne
Comments (0)
Please login or sign up to add comments
No comments yet. Be the first to comment!