Kerala Vernacular Architecture: Nadumuttam House by i2a Architects Studio
Nadumuttam House blends Kerala vernacular architecture with sustainable, modern design, celebrating heritage, nature, and cultural essence.
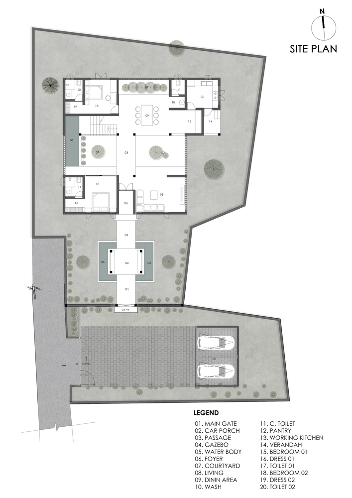
Nadumuttam House, designed by i2a Architects Studio, is a captivating example of Kerala vernacular architecture. Located in Oachira, Kollam, this 2,520-square-foot residence harmoniously integrates the spiritual, cultural, and ecological essence of its surroundings. Nestled near a sacred kaavu (grove), the house reflects the serene beauty and cultural richness of Kerala while embracing sustainable and modern design principles.



A Design Rooted in Heritage
The residence draws profound inspiration from the sacred and spiritual context of Oachira. The proximity to the revered Oachira Parabrahma Temple influences the architectural vocabulary, with the entry gazebo mirroring the temple’s iconic design. Flanked by tranquil water bodies, this gazebo creates an inviting and meditative space, seamlessly connecting the residence to its cultural roots.


Material Palette and Colors Reflecting Tradition
The material palette of Nadumuttam House stays true to Kerala's vernacular architectural traditions. Terracotta, cement finishes, and wooden textures evoke a sense of warmth and rustic modernity. The deliberate choice of cyan blue rafters and purlins pays homage to the vibrant hues of the Kaalakettu ritual, part of the Oachira Mahotsavam festival. These thoughtful details celebrate the region's heritage while adding a contemporary twist to the design.




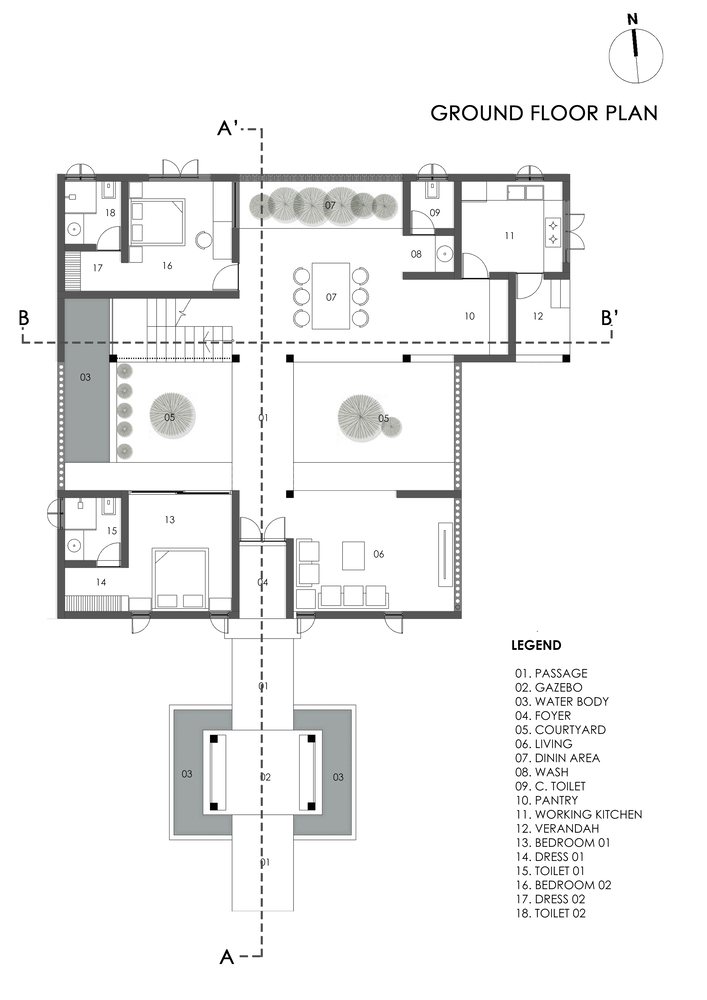
The Courtyard: The Heart of the Home
An open-to-sky courtyard lies at the core of the residence, embodying the essence of Kerala’s traditional architecture. This lush, green oasis enhances natural ventilation and lighting while fostering a seamless connection between the indoors and outdoors. Tropical plants within the courtyard emphasize the design's commitment to blending built spaces with the natural environment.


The courtyard’s strategic placement not only ensures a serene ambiance but also serves as a unifying element, connecting different parts of the home. This open space encourages sustainable living by reducing reliance on artificial resources and embracing natural airflow and light.


Seamless Integration of Indoor and Outdoor Spaces
The layout of Nadumuttam House emphasizes semi-open and open spaces that celebrate the lush surroundings while ensuring privacy. South-facing layouts maximize the penetration of natural light and airflow, creating a sustainable and energy-efficient home. The residence is a testament to the harmony achievable when architectural design respects and celebrates the natural environment.



Sculptural Features and Functional Design
One of the standout elements of the house is the central staircase, crafted with raw cement finishes and accented in cyan blue. This feature serves as a sculptural centerpiece, bridging the residence’s levels while adding character and charm.

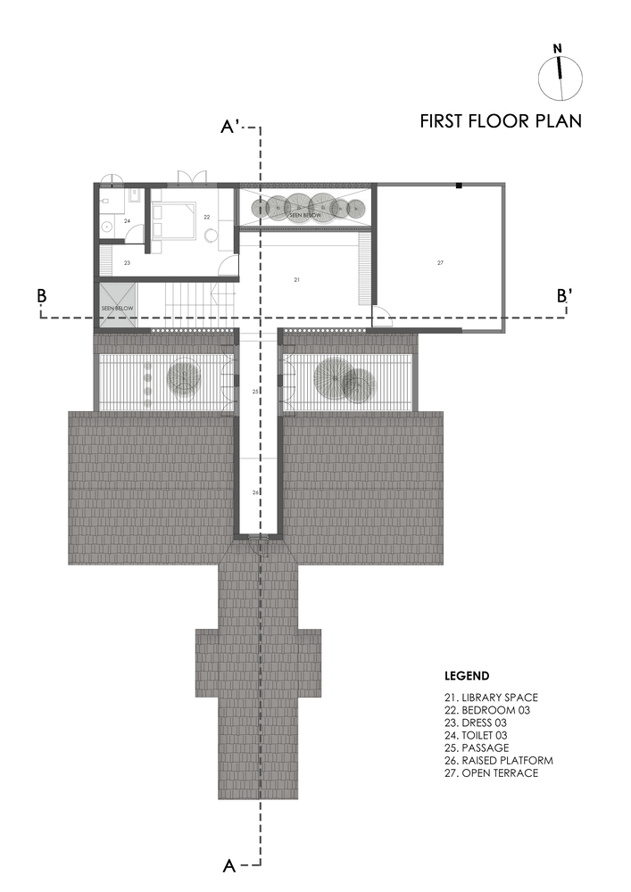
On the upper floor, a linear majlis, designed as a reading space for the homeowner—a teacher with a deep passion for books—overlooks the courtyard. This serene nook exemplifies simplicity and functionality, creating a tranquil retreat within the home.

A Testament to Timeless Values
Nadumuttam House transcends conventional residential architecture by celebrating the timeless values of unity, coexistence, and respect for the natural and cultural context. The homeowner’s vision of integrating Kerala’s cultural richness with sustainable design forms the foundation of this exceptional project.

This residence stands as a living testament to the interplay between heritage and modernity. It reflects the region’s cultural vibrancy, architectural innovation, and ecological sensitivity, creating a home that resonates with warmth, harmony, and timeless appeal.
Nadumuttam House by i2a Architects Studio showcases the beauty and relevance of Kerala vernacular architecture in contemporary residential design. Through its thoughtful integration of heritage, nature, and sustainability, the house offers a timeless narrative of cultural richness and architectural ingenuity.

All Photographs are work of Ar.Syam sreesylam
Popular Articles
Popular articles from the community
A Contemporary Take on Iranian Residential Architecture
A modern interior design in Mashhad that reinterprets brick, light, and spatial flow to create a warm, contemporary residential architecture.
Atelier Macri Concept Store Interior Design by CASE-REAL
Atelier Macri store features a "ko" counter, walnut wood details, cork displays, blending retail, gallery, and seamless customer experiences.
Flamboyant House by Juliana Camargo + Prumo Projetos
Modern Brazilian house integrating existing tree, pool, and volumes with glass, wood, and transitional spaces blending interior, exterior, and landscape seamlessly.
On the Brooks House by Monsoon Collective – A Contemporary Kerala Home Rooted in Tradition
Kerala home blending tradition and modernity with water-inspired design, brick architecture, courtyard planning, and sustainable rainwater harvesting strategies.
Similar Reads
You might also enjoy these articles
The Ken Roberts Memorial Delineation Competition (Krob)
As the most senior architectural drawing competition currently in operation anywhere in the world, it draws hundreds of entries each year, awarding the very best submissions in a series of medium-based categories.
Waterfront Redevelopment and Urban Revitalization in Mumbai: Forging a New Dawn for Darukhana
A transformative waterfront redevelopment project reimagining Darukhana’s shipbreaking heritage into an inclusive urban future.
OUT-OF-MAP: A Call for Postcards on Feminist Narratives of Public Space
Rhizoma Design and Research Lab invites artists, designers, architects, researchers, and students to reflect on how feminist perspectives can reshape public space. Selected works will be exhibited in Barcelona, October 2026. Submissions open until 15 April 2026.
Documentation Work on Buddhist Wooden Temple
Architectural syncretism and cultural hybridity: A comparative study of the Buddhist temples in Chattogram Hill tracks
Explore Architecture Competitions
Discover active competitions in this discipline
The International Standard for Design Portfolios
The Global Benchmark for Architecture Dissertation Awards
The Global Benchmark for Graduation Excellence
Challenge to reimagine the Iron Throne
Comments (0)
Please login or sign up to add comments
No comments yet. Be the first to comment!