Modern Architectural Design in Thailand: A Case Study of B/W Residence by ACA Architects
This article explores the B/W Residence by ACA Architects, showcasing modern architectural design and innovative use in Thailand.
Thailand’s architectural landscape is rapidly evolving, with modern designs that blend functionality with aesthetic elegance. One of the standout examples of contemporary architectural ingenuity is the B/W Residence designed by ACA Architects. Located in Khet Bang Khen, Thailand, this residence epitomizes the distinctive qualities of modern architectural design in the region.


Overview of B/W Residence
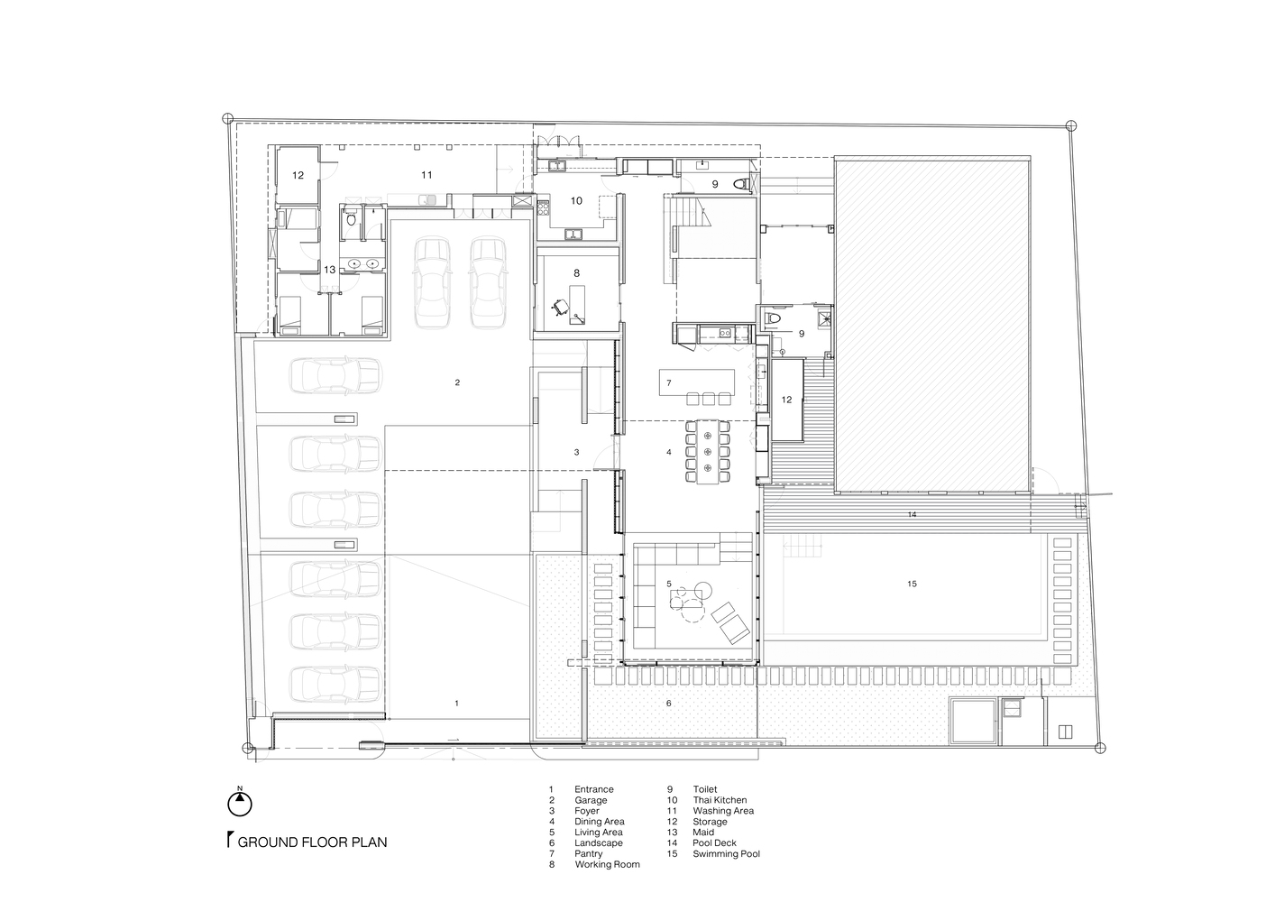
The B/W Residence is a masterful creation by ACA Architects, led by Anon Chitranukroh. Constructed on a sprawling 3,200 square meter plot, the house covers an impressive area of 1,000 square meters. The project was developed by transforming an existing structure into a modern home that highlights spaciousness, privacy, and a unique aesthetic appeal.



Architectural Design and Features
Emphasis on Space and Privacy
The design of the B/W Residence is guided by three core principles: distinct, discrete, and delicate. These principles are reflected in the use of expansive windows and open floor plans that promote a sense of openness and connection with the outdoor environment. Despite the openness, the strategic placement of structures and the use of modern materials ensure a high level of privacy from the external surroundings.


Innovative Use of Materials
The material selection in B/W Residence is particularly notable. Moving away from the warm-colored woods typical in Thai homes, the architects chose a monochromatic palette featuring modern materials like aluminum screens, steel, and glass. The use of dark-colored wood offers a contemporary twist, creating a contrast that enhances the visual appeal and supports the structure's modern character.



Integration with the Natural Environment
ACA Architects designed the residence to harmonize with its natural surroundings. The living spaces seamlessly connect with the garden and an outdoor swimming pool, embodying the ideal integration of indoor and outdoor environments. This design approach not only enhances the aesthetic value but also improves the quality of living by maximizing natural light and views.


The Impact of Modern Architectural Design in Thailand
The B/W Residence by ACA Architects is a prime example of how modern architectural design in Thailand is evolving. By respecting traditional elements while introducing innovative design solutions, ACA Architects have created a residence that is both timelessly elegant and distinctly modern. This project not only serves as a home but as a blueprint for future architectural endeavors in Thailand’s dynamic landscape.




All photographs are work of Wathan studio, Propster
Popular Articles
Popular articles from the community
Flamboyant House by Juliana Camargo + Prumo Projetos
Modern Brazilian house integrating existing tree, pool, and volumes with glass, wood, and transitional spaces blending interior, exterior, and landscape seamlessly.
A Contemporary Take on Iranian Residential Architecture
A modern interior design in Mashhad that reinterprets brick, light, and spatial flow to create a warm, contemporary residential architecture.
Solar Steam: A Climate-Responsive Architecture That Redefines the Monument
A climate-responsive memorial architecture that transforms heat, decay, and time into a living system reflecting humanity’s ecological impact.
Inverted Architecture Installation by Studio Link-Arc: Exploring the Intersection of Architecture and Living Organisms
Inverted Architecture Installation by Studio Link-Arc blends mycelium, sustainability, inverted design, ecological cycles, and urban adaptive architecture in Shenzhen.
Similar Reads
You might also enjoy these articles
Architectural Competition: Create a Luxury Waterfront Community in the UAE!
Mira Developments announces an open competition for the pre-concept design of Mira Coral Bay in Ras Al Khaimah, UAE
Parametric Design: What Can You Learn from the 1st Workshop of Beegraphy?
Discover the Fundamentals and Advanced Techniques of Parametric Design
Feast of flight factory
A new ecological order with sustainable food resources-insects
Beyond Blueprints : How Architecture Presentation Boards Define The Design Narratives?
Unveiling the Art and Strategy Behind Architectural Storytelling
Explore Architecture Competitions
Discover active competitions in this discipline
The International Standard for Design Portfolios
The Global Benchmark for Architecture Dissertation Awards
The Global Benchmark for Graduation Excellence
Challenge to design mud housing for contemporary communities
Comments (0)
Please login or sign up to add comments
No comments yet. Be the first to comment!