Modern Office Design in Shibuya: Transforming KYOYA Office by SAKUMAESHIMA
The article details the transformation of KYOYA Office in Shibuya, showcasing modern design and natural light integration by SAKUMAESHIMA.
In the bustling district of Shibuya City, Japan, the KYOYA Office stands as a hallmark of modern office design. Spearheaded by the innovative team at SAKUMAESHIMA, this 480 m² space redefines the traditional workplace into a blend of style, function, and natural light.


Revitalizing Space with Purpose
Crafting a Versatile Environment
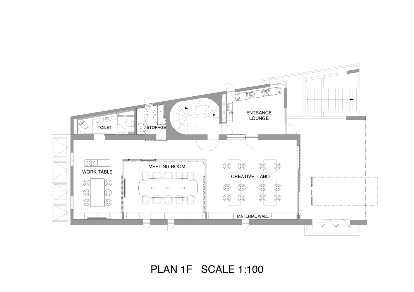
The transition of KYOYA Corporation's office into a contemporary workspace capitalizes on the existing architectural framework. This design journey transforms a former vocational school into a multifunctional office, incorporating a basement showroom, and rental areas.




Strategic Use of Natural Light
Despite its urban setting, the design maximizes natural light, particularly on the upper floors, creating an inviting and productive environment. The basement, devoid of natural light, utilizes granite and silver accents to maintain an airy feel without compromising the area's distinctive character.


Design Details That Stand Out
Flexible Workspaces for Dynamic Interactions
The second and third floors of the KYOYA Office are epitomes of modern office design in Shibuya, focusing on large, versatile tables and linden plywood fixtures. This layout supports a fluid work style, adapting to various departmental needs and fostering collaboration.


Entrance and First Floor: Gateway to Innovation
The ground floor is reimagined with a sliding glass door and a centrally located glass-partitioned conference room. This setup ensures that natural light reaches deep into the floor, making it a bright, welcoming space for meetings and work.





A New Benchmark for Office Design
The KYOYA Office by SAKUMAESHIMA is not just a workspace but a testament to modern office design in Shibuya, blending functionality with innovative design solutions. It stands as a model for future office environments in urban landscapes.



All photographs are work of Masaaki Inoue / BOUILLON
Popular Articles
Popular articles from the community
Atelier Macri Concept Store Interior Design by CASE-REAL
Atelier Macri store features a "ko" counter, walnut wood details, cork displays, blending retail, gallery, and seamless customer experiences.
A Contemporary Take on Iranian Residential Architecture
A modern interior design in Mashhad that reinterprets brick, light, and spatial flow to create a warm, contemporary residential architecture.
Louis Malle Cinema: A Limestone Cultural Landmark Revitalizing Community Life in Prayssac
Limestone cinema extension with public forecourt, blending heritage and modern design to create flexible cultural spaces and strengthen community interaction.
Solar Steam: A Climate-Responsive Architecture That Redefines the Monument
A climate-responsive memorial architecture that transforms heat, decay, and time into a living system reflecting humanity’s ecological impact.
Similar Reads
You might also enjoy these articles
Bamboo Housing Challenge 2026: Design Affordable, Sustainable Homes Using Bamboo
An international design competition by Bamboo U and IBUKU inviting architects and designers to reimagine affordable housing using bamboo — with the winning design built full-scale in Bali.
Computational Design & Education: Beegraphy Design Awards Introduces 7th Category (Featuring Jiyun's Innovative Approach)
Dive into Beegraphy’s 7th Design Awards category, where computational design meets education to create immersive, interactive learning tools, inspired by Jiyun’s work.
From Parametric Lighting to Urban Furniture: Join the 2nd Workshop in Beegraphy’s Computational Design Series
Dive into Cutting-Edge Design Techniques and Practical Applications with Industry Experts
Introducing Sphere by UNI: Pioneering a New Era in AEC Industry
Unlocking Global Potential with BIM and Agile Management
Explore Architecture Competitions
Discover active competitions in this discipline
The International Standard for Design Portfolios
The Global Benchmark for Architecture Dissertation Awards
The Global Benchmark for Graduation Excellence
Challenge to reimagine the Iron Throne
Comments (0)
Please login or sign up to add comments
No comments yet. Be the first to comment!