Mooin Apartment by KC Design Studio: A Sunken Living Room Apartment Design That Redefines Family Living in Taiwan
This article explores how Mooin Apartment by KC Design Studio uses sunken living room design to foster warmth and spatial harmony.
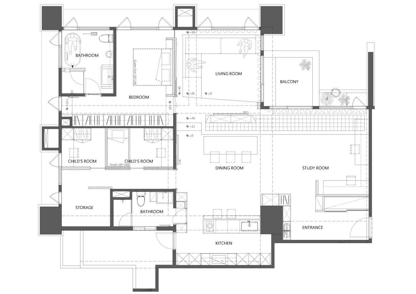
In the heart of Taiwan, the Mooin Apartment by KC Design Studio showcases an innovative approach to sunken living room apartment design, merging spatial creativity with emotional warmth. This 159-square-meter residence reflects a deep understanding of how design can foster family interaction while providing spatial diversity and visual elegance.



Designing for Togetherness
At the core of this renovation is the owner's desire to enhance family connection. KC Design Studio responded by maximizing the public space and transforming it into an open, interconnected environment. The absence of rigid partitions allows for seamless interaction among family members, encouraging togetherness through spatial fluidity.


The Sunken Living Room: Centerpiece of Interaction
The sunken living room is not just a visual statement—it is the soul of the apartment. Embedded within a flat slab base, the lowered seating area creates a distinct spatial identity, offering intimacy without confinement. The surrounding zones—including a dining booth and a study room with a daybed—are elevated in subtle layers, naturally delineating functions without using walls. This stacked design approach ensures the apartment remains cohesive while supporting varied activities and moods.


Layered Materiality and Warm Contrasts
Materiality plays a crucial role in shaping the ambiance. Smooth cement surfaces establish a minimalist foundation, while aged wood brings depth and rustic warmth. The visual contrast between the refined cement and richly textured timber is reminiscent of a carefully composed painting, imbuing the space with character and storytelling.



Light, Texture, and Rhythm
Natural light filters into the apartment through strategically placed glass bricks, whose gentle translucency diffuses daylight while preserving privacy. This architectural detail softens the apartment's atmosphere, making it feel simultaneously open and tranquil. Throughout the day, the shifting light transforms the space, creating a dynamic rhythm that mirrors the pace of family life.



An Architecture of Flow and Balance
The design employs the technique of "leaving space" to foster visual openness and movement. Wooden structural pillars are not just load-bearing; they extend the sense of space and continuity. The interplay of overlapping materials, shifting floor levels, and subtle lighting fosters a serene, layered interior that invites residents to retreat from the city's chaos into a realm of balance and purity.

A Modern Apartment Rooted in Connection
Mooin Apartment redefines what it means to live well in an urban setting. Through inventive sunken living room apartment design, KC Design Studio has created a home that is as emotionally resonant as it is architecturally refined. It is a sanctuary where materials speak, light dances, and family life flourishes in harmony with design.

Popular Articles
Popular articles from the community
Flamboyant House by Juliana Camargo + Prumo Projetos
Modern Brazilian house integrating existing tree, pool, and volumes with glass, wood, and transitional spaces blending interior, exterior, and landscape seamlessly.
Inverted Architecture Installation by Studio Link-Arc: Exploring the Intersection of Architecture and Living Organisms
Inverted Architecture Installation by Studio Link-Arc blends mycelium, sustainability, inverted design, ecological cycles, and urban adaptive architecture in Shenzhen.
A Contemporary Take on Iranian Residential Architecture
A modern interior design in Mashhad that reinterprets brick, light, and spatial flow to create a warm, contemporary residential architecture.
An Miên Lumière Cafe by xưởng xép, Ho Chi Minh City, Vietnam
An industrial-inspired café where layered steel and warm light create a dynamic, immersive environment shaped by reflection, depth, and perception.
Similar Reads
You might also enjoy these articles
Bamboo Housing Challenge 2026: Design Affordable, Sustainable Homes Using Bamboo
An international design competition by Bamboo U and IBUKU inviting architects and designers to reimagine affordable housing using bamboo — with the winning design built full-scale in Bali.
Computational Design & Education: Beegraphy Design Awards Introduces 7th Category (Featuring Jiyun's Innovative Approach)
Dive into Beegraphy’s 7th Design Awards category, where computational design meets education to create immersive, interactive learning tools, inspired by Jiyun’s work.
From Parametric Lighting to Urban Furniture: Join the 2nd Workshop in Beegraphy’s Computational Design Series
Dive into Cutting-Edge Design Techniques and Practical Applications with Industry Experts
Introducing Sphere by UNI: Pioneering a New Era in AEC Industry
Unlocking Global Potential with BIM and Agile Management
Explore Architecture Competitions
Discover active competitions in this discipline
The International Standard for Design Portfolios
The Global Benchmark for Architecture Dissertation Awards
The Global Benchmark for Graduation Excellence
Challenge to reimagine the Iron Throne
Comments (0)
Please login or sign up to add comments
No comments yet. Be the first to comment!