Nature-Inclusive Residential Tower: Beaufort Residential Tower by Orange Architects in the Netherlands
The Beaufort Residential Tower integrates sustainable architecture with nature-inclusive design, offering forest-view apartments in Zeist, Netherlands.
The Beaufort Residential Tower, designed by Orange Architects, stands as a pioneering example of a nature-inclusive residential tower in Zeist, the Netherlands. Positioned on the edge of a forest, this sculptural tower redefines contemporary apartment living by seamlessly blending architecture with its natural surroundings. The project is part of the Kerckebosch neighborhood’s redevelopment, emphasizing the integration of modern housing into a biodiverse landscape.


The Vision Behind the Nature-Inclusive Residential Tower
Orange Architects envisioned Beaufort as more than a residential building; it was designed to coexist with the forested environment. The concept was inspired by the elements of sand, tree trunk, and leaf, reflecting the sandy soil, verticality of the trees, and foliage of the woodland. These themes guided the building’s design, materiality, and relationship with the landscape.


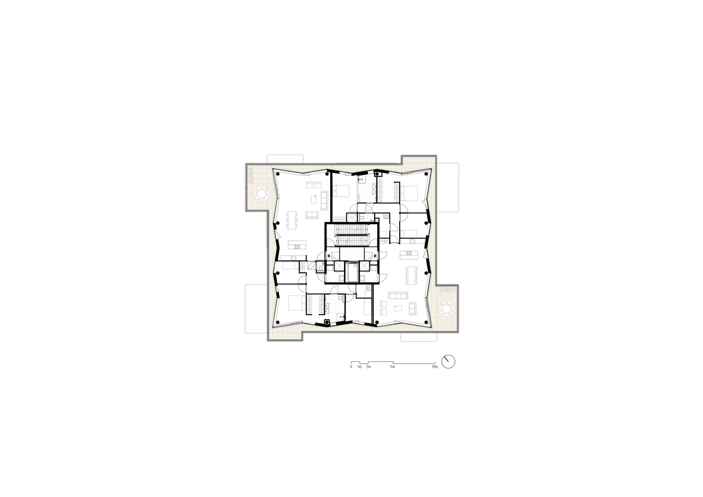
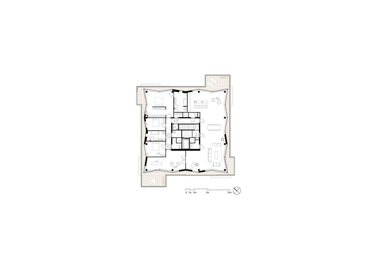
The 10-story tower contains 19 luxury apartments, including a penthouse with a 360-degree view of the forest. Each residence boasts spacious balconies and outdoor rooms that dissolve the boundaries between indoor and outdoor living, inviting residents to engage with the surrounding nature.


Architectural Concept Rooted in Nature
The nature-inclusive residential tower is characterized by a distinctive stacked design, resembling forest villas suspended in the air. The alternating arrangement of the L-shaped apartments creates an irregular pattern of balconies and terraces. This dynamic facade mirrors the organic forms found in the forest, while serving as a visual landmark marking the entrance to the Kerckebosch neighborhood.

The tower’s core structure and columns provide stability, supporting both the apartments and the semi-subterranean parking facility below. The outdoor spaces are strategically positioned, enhancing the connection with nature while offering panoramic forest views.

Sustainable Materiality and Nature-Inclusive Cladding
The tower’s facade embodies the “tree trunk” theme through sustainable Fraké timber cladding. This hardwood, known for its durability and aesthetic appeal, ensures the building blends harmoniously with the wooded landscape. Prefabricated Glass Reinforced Concrete (GRC) panels complement the timber elements, providing lightweight, easily demountable cladding that supports future adaptability.

Balcony parapets reflect the “sand” concept, with neutral tones evoking the natural ground layer of the forest. The “leaf” theme is realized in the undersides of the balconies, which feature green finishes resembling the forest canopy. This nature-inspired detailing reinforces the building’s integration with its environment.

Landscape Design and Biodiversity Enhancement
The landscape design of the nature-inclusive residential tower extends the forest to the building’s edges. A semi-underground parking garage is concealed beneath a vegetated surface, allowing greenery to cascade down the retaining walls. Bio-blocks made from turf, tree trunk reinforcements, and open paving systems ensure the parking area merges seamlessly with the forest floor.

Local plant species were selected to strengthen biodiversity, fostering habitats for wildlife. Rainwater harvested from the tower’s roof and terraces is directed into swales, supporting natural water management while nurturing plant growth. These strategies align with the project’s overarching goal of enhancing the existing ecosystem.

Seamless Indoor-Outdoor Living Experience
Each apartment within the nature-inclusive residential tower is designed to maximize natural light and forest views. Expansive floor-to-ceiling windows create a visual extension of the landscape into the living spaces. Generous balconies function as “outdoor rooms,” allowing residents to enjoy the forest’s tranquility from the comfort of their homes.

The unique rotation of apartments on each floor results in varied balcony placements, offering diverse perspectives of the forest. The threshold-free design ensures that all residents, regardless of mobility, can easily access both the apartments and outdoor spaces.

Energy Efficiency and Future Adaptability
Sustainability is at the core of the nature-inclusive residential tower. The structural grid and column layout enable flexibility, allowing the building’s interior to adapt to future residential needs. Demountable facade components ensure that materials can be reused, aligning with circular construction principles.

Energy efficiency measures include a collective geothermal heat pump system, solar panels, and triple-glazed windows. External sun shading reduces overheating, while a heat recovery ventilation system optimizes indoor air quality. These features position Beaufort as a Nearly Zero Energy Building (NZEB), setting a benchmark for sustainable residential design.

Entrance and Community-Oriented Design
The entrance to the tower is accessed via a gently sloping forest path, enhancing the sense of arrival. An inward-folding facade creates an inviting threshold, leading to a double-height lobby with views of the forest. This communal space fosters interaction among residents while maintaining a visual connection to the natural surroundings.


The semi-sunken car park integrates storage units for residents, optimizing functionality without compromising the landscape. The thoughtful design ensures that vehicular infrastructure remains discreet, preserving the site’s natural beauty.


Penthouse with Panoramic Forest Views
Crowning the nature-inclusive residential tower is an exclusive penthouse offering 360-degree views of the forested landscape. This premium residence embodies the project’s ethos of harmonizing architecture with nature. The uninterrupted views emphasize the tower’s elevated position, allowing residents to experience the changing seasons from above the tree canopy.


The Beaufort Residential Tower by Orange Architects exemplifies the future of residential design through its nature-inclusive approach. By embracing the surrounding forest, employing sustainable materials, and prioritizing biodiversity, the tower establishes a new standard for environmentally conscious living. The seamless integration of architecture and landscape not only enhances the quality of life for residents but also demonstrates how urban development can support ecological preservation.

This nature-inclusive residential tower serves as a model for future architectural projects, proving that modern housing can thrive alongside nature. It reflects a growing movement toward sustainable, adaptive, and contextually responsive design in the Netherlands and beyond.

All Photographs are works of Sebastian van Damme
Popular Articles
Popular articles from the community
Inverted Architecture Installation by Studio Link-Arc: Exploring the Intersection of Architecture and Living Organisms
Inverted Architecture Installation by Studio Link-Arc blends mycelium, sustainability, inverted design, ecological cycles, and urban adaptive architecture in Shenzhen.
Flamboyant House by Juliana Camargo + Prumo Projetos
Modern Brazilian house integrating existing tree, pool, and volumes with glass, wood, and transitional spaces blending interior, exterior, and landscape seamlessly.
Treehouse Apartment: A Warm Timber Interior Blending Craft, Play, and Contemporary Living
Warm timber apartment with integrated treehouse, combining natural materials, craftsmanship, and playful design to create a flexible, family-oriented living environment.
Louis Malle Cinema: A Limestone Cultural Landmark Revitalizing Community Life in Prayssac
Limestone cinema extension with public forecourt, blending heritage and modern design to create flexible cultural spaces and strengthen community interaction.
Similar Reads
You might also enjoy these articles
The Ken Roberts Memorial Delineation Competition (Krob)
As the most senior architectural drawing competition currently in operation anywhere in the world, it draws hundreds of entries each year, awarding the very best submissions in a series of medium-based categories.
Waterfront Redevelopment and Urban Revitalization in Mumbai: Forging a New Dawn for Darukhana
A transformative waterfront redevelopment project reimagining Darukhana’s shipbreaking heritage into an inclusive urban future.
OUT-OF-MAP: A Call for Postcards on Feminist Narratives of Public Space
Rhizoma Design and Research Lab invites artists, designers, architects, researchers, and students to reflect on how feminist perspectives can reshape public space. Selected works will be exhibited in Barcelona, October 2026. Submissions open until 15 April 2026.
Documentation Work on Buddhist Wooden Temple
Architectural syncretism and cultural hybridity: A comparative study of the Buddhist temples in Chattogram Hill tracks
Explore Architecture Competitions
Discover active competitions in this discipline
The International Standard for Design Portfolios
The Global Benchmark for Architecture Dissertation Awards
The Global Benchmark for Graduation Excellence
Challenge to reimagine the Iron Throne
Comments (0)
Please login or sign up to add comments
No comments yet. Be the first to comment!