Nature-Inspired Kindergarten Architecture: Grin Sunray Kindergarten by ARCPLUS ECADI
The Grin Sunray Kindergarten combines nature-inspired design and play to create a dreamlike educational space for children.
A Space for Childhood Dreams
The Grin Sunray Kindergarten, designed by ARCPLUS ECADI Shanghai Xian Dai Architectural Decoration & Landscape Design, reimagines early childhood learning environments through a nature-inspired approach. Located in Jing’an District, China, this 4,182-square-meter facility creates a whimsical, tree-like structure where children can explore, play, and learn in a space that mimics a "dream tree hole." The design prioritizes freedom, creativity, and sensory engagement, fostering an environment that nurtures the imaginations of its young inhabitants.




Design Concept: From Tree to Dream
The kindergarten’s design begins with the idea of a tree—a symbol of growth, exploration, and connection. This metaphorical tree is brought to life through the building’s flowing, organic forms. The atrium serves as the heart of the structure, with curved surfaces and warm wooden textures mimicking a sunlit valley surrounded by tree branches. Children interact with the space as if climbing a tree, discovering "caves" that evoke curiosity and provide small worlds for individual exploration.




Architectural Features
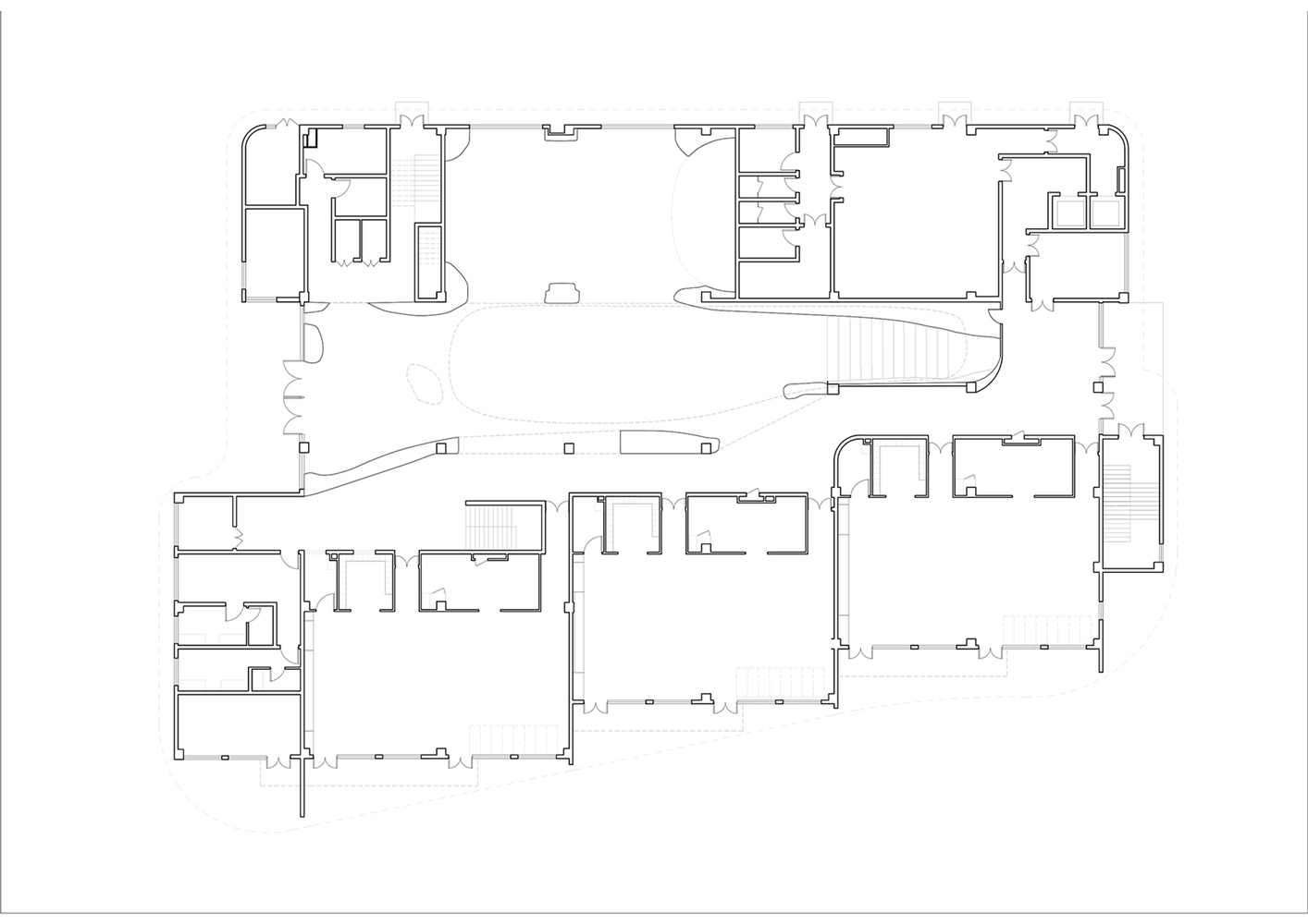
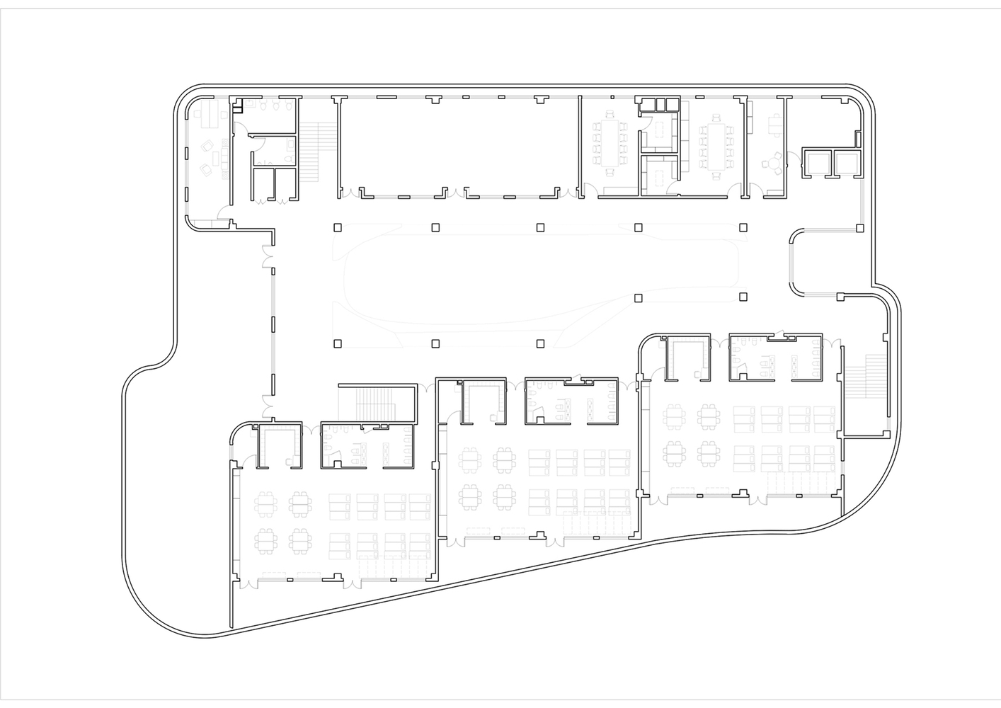
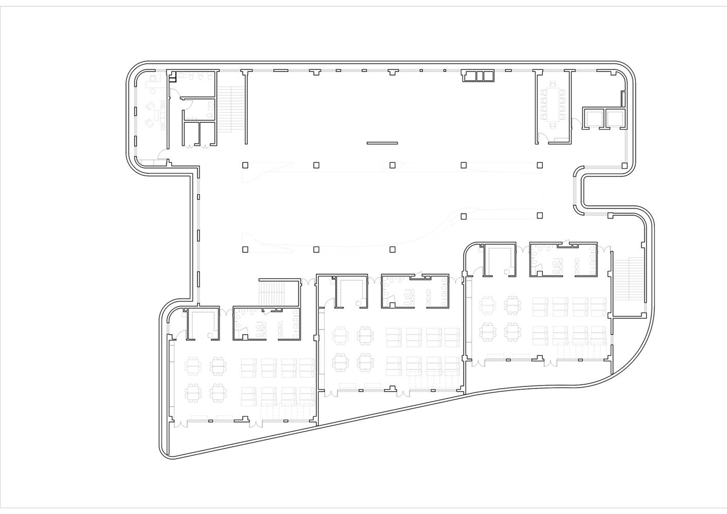
The Atrium: A Central Exploration Hub
The atrium is the kindergarten’s focal point, designed to encourage movement, exploration, and sensory interaction. Its smooth curves and wooden textures are inviting and tactile, creating a safe and warm environment for children. The space connects to corridors and classrooms through branching pathways that enhance the sense of adventure.




Caves: Spaces for Discovery
Throughout the structure, cave-like spaces of varying sizes offer opportunities for exploration. These nooks are strategically placed to encourage imaginative play, enabling children to peek out and engage with their surroundings. The caves break the mold of traditional, organized educational spaces by offering small, private areas that children can call their own.




Classrooms: A Canvas for Creativity
The classrooms are designed as square, undivided spaces in warm grey tones with minimal saturation. This neutral palette creates a "blank canvas" that allows children to decorate and arrange their environment freely. The intentional simplicity of the design emphasizes flexibility, enabling teachers and students to adapt the space to their needs and preferences.



Integration of Play and Learning
The design blurs the line between play and education, ensuring that every element of the building contributes to a child’s learning experience. Staircases with interactive windows, multifunctional halls with cavernous entrances, and walkways encourage movement and engagement. This seamless integration promotes physical, cognitive, and social development in an organic and enjoyable way.



Embracing Nature and Sensory Engagement
Nature is an integral part of the design, reflected in the building's materials, textures, and layout. Warm wooden tones, curved surfaces, and natural light mimic the comforting embrace of a tree. By incorporating sensory and tactile elements, the space allows children to experience their environment through touch, sight, and exploration, fostering a deeper connection with their surroundings.



A Space to Dream and Grow
The Grin Sunray Kindergarten is more than an educational facility—it’s a space for children to dream, explore, and grow. By creating an environment inspired by the simplicity and wonder of nature, ARCPLUS ECADI has designed a setting where children can imagine themselves climbing trees, exploring caves, and embarking on adventures. This design philosophy ensures that the building itself becomes an active participant in their learning journey.


Redefining Early Education
Through its innovative and nature-inspired design, the Grin Sunray Kindergarten sets a new standard for early childhood education architecture. It exemplifies how thoughtful design can create spaces that foster creativity, imagination, and a lifelong love of learning. By prioritizing freedom and exploration, the kindergarten invites children to see the world with fresh eyes and limitless potential.


Popular Articles
Popular articles from the community
Solar Steam: A Climate-Responsive Architecture That Redefines the Monument
A climate-responsive memorial architecture that transforms heat, decay, and time into a living system reflecting humanity’s ecological impact.
A Contemporary Take on Iranian Residential Architecture
A modern interior design in Mashhad that reinterprets brick, light, and spatial flow to create a warm, contemporary residential architecture.
Inverted Architecture Installation by Studio Link-Arc: Exploring the Intersection of Architecture and Living Organisms
Inverted Architecture Installation by Studio Link-Arc blends mycelium, sustainability, inverted design, ecological cycles, and urban adaptive architecture in Shenzhen.
An Miên Lumière Cafe by xưởng xép, Ho Chi Minh City, Vietnam
An industrial-inspired café where layered steel and warm light create a dynamic, immersive environment shaped by reflection, depth, and perception.
Similar Reads
You might also enjoy these articles
Bamboo Housing Challenge 2026: Design Affordable, Sustainable Homes Using Bamboo
An international design competition by Bamboo U and IBUKU inviting architects and designers to reimagine affordable housing using bamboo — with the winning design built full-scale in Bali.
Computational Design & Education: Beegraphy Design Awards Introduces 7th Category (Featuring Jiyun's Innovative Approach)
Dive into Beegraphy’s 7th Design Awards category, where computational design meets education to create immersive, interactive learning tools, inspired by Jiyun’s work.
From Parametric Lighting to Urban Furniture: Join the 2nd Workshop in Beegraphy’s Computational Design Series
Dive into Cutting-Edge Design Techniques and Practical Applications with Industry Experts
Introducing Sphere by UNI: Pioneering a New Era in AEC Industry
Unlocking Global Potential with BIM and Agile Management
Explore Architecture Competitions
Discover active competitions in this discipline
The International Standard for Design Portfolios
The Global Benchmark for Architecture Dissertation Awards
The Global Benchmark for Graduation Excellence
Challenge to reimagine the Iron Throne
Comments (0)
Please login or sign up to add comments
No comments yet. Be the first to comment!