Secondary School Renovation and Expansion in Gerlingen by Wulf Architekten
Explore how Wulf Architekten transformed a 1970s secondary school into a flexible, modern learning space in Gerlingen, Germany.
Wulf Architekten has redefined the mid-level secondary school in Gerlingen, Germany, with a masterful refurbishment and expansion. Originally built in the 1970s, the school has been transformed into a modern educational hub that accommodates three classes per grade and aligns with contemporary pedagogical standards. The project merges architectural preservation with innovative design, creating a cohesive and flexible learning environment that inspires both students and educators.


A Harmonious Integration of Old and New
The redesign by Wulf Architekten centers on preserving the essence of the original structure while introducing modern elements. The existing building serves as the core of the new design, enhanced by a ring of new constructions that form a "learning house." This addition minimizes surface sealing and maximizes outdoor space, providing ample room for playgrounds and open areas.


The school is situated on a sloping terrain, which has been cleverly utilized to create multi-level connections to the outdoors, enhancing accessibility and engagement with the natural environment.

Flexible Spaces for Evolving Educational Needs
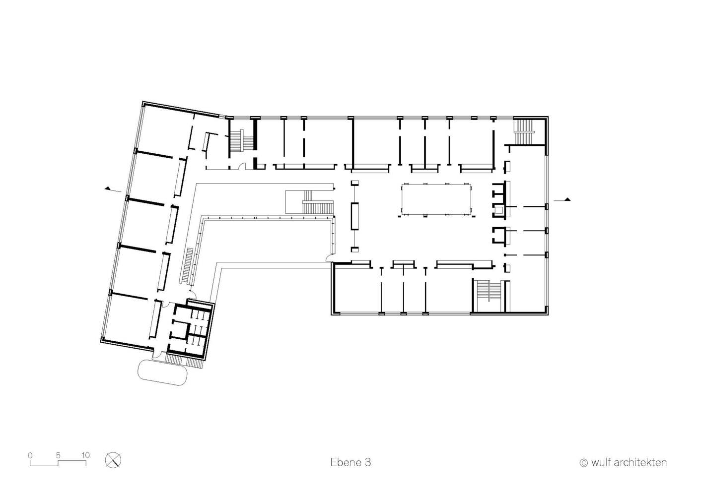
At the heart of the redesign is a commitment to flexibility and functionality. The learning house features clusters of six classrooms per floor, each surrounded by spaces for group collaboration, quiet study, or social interaction. These adaptable areas reflect the latest educational concepts, supporting diverse teaching methods and fostering a sense of community.

A three-story auditorium, flooded with natural light, serves as a central gathering space, connecting specialized classrooms to the learning clusters. This architectural feature not only promotes interaction but also offers stunning visual links between the building’s levels.

Striking Facade and Sustainable Design
The facade of the school is a striking interplay of modern aesthetics and functional design. Alternating bands of smooth precast concrete and rough stucco, punctuated by large windows, create a rhythm that blends durability with visual appeal. Subtle reliefs in the stucco add texture and charm to the exterior, reflecting a thoughtful attention to detail.


Sustainability was a key consideration in the project. The attachment of the new construction directly to the existing building minimizes land use and preserves green spaces, aligning with environmentally conscious principles.


A Modern Educational Landmark
Wulf Architekten’s renovation of the secondary school in Gerlingen exemplifies the potential of modern architecture to rejuvenate aging structures. By seamlessly integrating the old with the new, the design provides a dynamic and inspiring environment that caters to the needs of today’s students while honoring the legacy of the original building.




This project is a testament to how thoughtful architectural intervention can redefine educational spaces, creating a lasting impact on the community it serves.



All Photographs are work of Brigida González for wulf architekten
Popular Articles
Popular articles from the community
Atelier Macri Concept Store Interior Design by CASE-REAL
Atelier Macri store features a "ko" counter, walnut wood details, cork displays, blending retail, gallery, and seamless customer experiences.
The Ken Roberts Memorial Delineation Competition (Krob)
As the most senior architectural drawing competition currently in operation anywhere in the world, it draws hundreds of entries each year, awarding the very best submissions in a series of medium-based categories.
Flamboyant House by Juliana Camargo + Prumo Projetos
Modern Brazilian house integrating existing tree, pool, and volumes with glass, wood, and transitional spaces blending interior, exterior, and landscape seamlessly.
Louis Malle Cinema: A Limestone Cultural Landmark Revitalizing Community Life in Prayssac
Limestone cinema extension with public forecourt, blending heritage and modern design to create flexible cultural spaces and strengthen community interaction.
Similar Reads
You might also enjoy these articles
The Ken Roberts Memorial Delineation Competition (Krob)
As the most senior architectural drawing competition currently in operation anywhere in the world, it draws hundreds of entries each year, awarding the very best submissions in a series of medium-based categories.
Waterfront Redevelopment and Urban Revitalization in Mumbai: Forging a New Dawn for Darukhana
A transformative waterfront redevelopment project reimagining Darukhana’s shipbreaking heritage into an inclusive urban future.
OUT-OF-MAP: A Call for Postcards on Feminist Narratives of Public Space
Rhizoma Design and Research Lab invites artists, designers, architects, researchers, and students to reflect on how feminist perspectives can reshape public space. Selected works will be exhibited in Barcelona, October 2026. Submissions open until 15 April 2026.
Documentation Work on Buddhist Wooden Temple
Architectural syncretism and cultural hybridity: A comparative study of the Buddhist temples in Chattogram Hill tracks
Explore Architecture Competitions
Discover active competitions in this discipline
The International Standard for Design Portfolios
The Global Benchmark for Architecture Dissertation Awards
The Global Benchmark for Graduation Excellence
Challenge to reimagine the Iron Throne
Comments (0)
Please login or sign up to add comments
No comments yet. Be the first to comment!