Small Apartment Interior Design: In Between Micro Flow Space Residence by Degree Design
In Between Micro Flow Space Residence redefines small apartment interior design, using light, materials, and spatial fluidity to create an expansive experience.
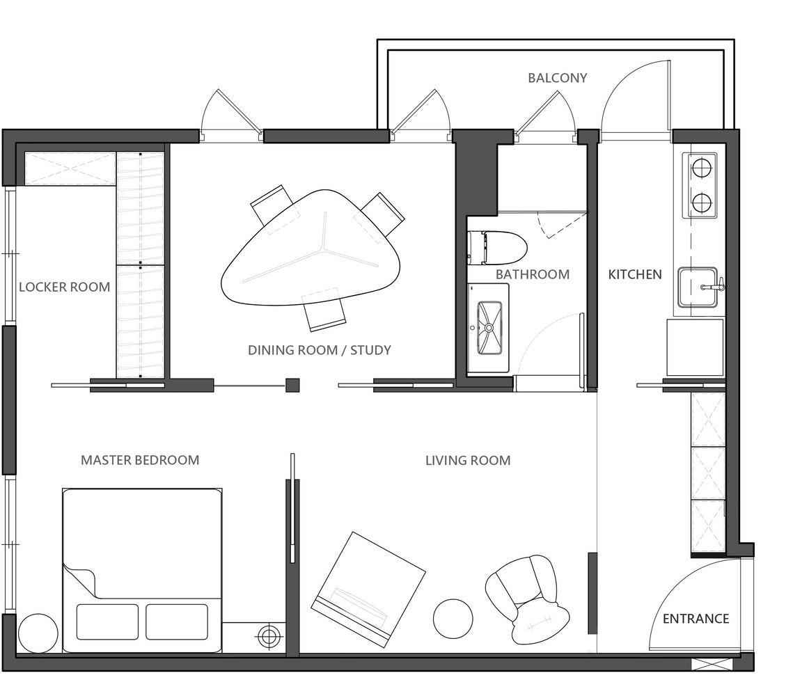
In Between Micro Flow Space Residence, designed by Degree Design, exemplifies the art of small apartment interior design. Located in Taiwan, this 48 m² residence redefines spatial perception by seamlessly blending functionality, aesthetics, and fluidity. The design concept transforms constraints into opportunities, creating a dynamic living environment where movement, light, and materiality interact to shape an ever-evolving spatial experience.


The Philosophy of Flowing Spaces
The design narrative of this apartment revolves around the idea of micro-flow—an architectural philosophy that embraces movement and transformation within compact living spaces. Rather than rigid separations, the residence fosters a sense of continuity through carefully orchestrated elements that dissolve traditional spatial boundaries. The interplay between transparency and opacity, solid and void, interior and exterior, allows the home to breathe and adapt to its inhabitants' needs.



A Modern Minimalist Palette
The interior adopts an achromatic palette of black, white, and gray, serving as a modern backdrop that amplifies natural light and spatial depth. Handmade textured paint introduces tactile warmth, softening the stark contrast of monochrome tones. Asymmetrical cabinets and open shelving enhance the visual rhythm, creating dynamic interactions between light and material surfaces.


Maximizing Light and Spatial Perception
One of the defining features of this small apartment interior design is its strategic use of transparency. A low partition wall at the entrance ensures that sightlines remain unobstructed, allowing natural light to flow freely across the space. This subtle intervention preserves both openness and privacy, ensuring a seamless transition between different functional zones.

In the heart of the apartment, a travertine column serves as a sculptural focal point. This architectural element acts as a bridge, visually and physically connecting distinct areas while reinforcing the material authenticity of the space. The raw texture of travertine introduces a sense of groundedness, juxtaposing the apartment’s ethereal ambiance.

Spatial Zoning Through Material Contrast
Flooring transitions play a crucial role in defining zones within the compact layout. The use of different materials for flooring subtly demarcates functional spaces without the need for physical partitions. This method enhances spatial legibility while maintaining a sense of openness, a fundamental principle in small apartment interior design.


The strategic placement of furniture and built-in elements contributes to the overall fluidity. Storage solutions are integrated seamlessly within the architecture, eliminating visual clutter and maximizing usable space. By embracing asymmetry in cabinetry design, the apartment achieves a balanced composition that feels organic rather than rigidly structured.


A Living Space in Constant Transformation
The essence of this design lies in its adaptability. The residence does not conform to a fixed arrangement but rather evolves with its occupants. Light, shadow, and reflections animate the interior throughout the day, subtly altering the perception of space. The design invites occupants to engage with their surroundings, fostering an intimate relationship between the built environment and daily life.


This approach aligns with the broader philosophy that home is not a static entity but a living, breathing space that coexists with time. The design celebrates movement, emphasizing that real life is not about reaching a final destination but about embracing the journey.
In Between Micro Flow Space Residence by Degree Design is a testament to the potential of small apartment interior design. Through a delicate balance of transparency, materiality, and spatial fluidity, the residence transcends its compact footprint to offer a sophisticated and dynamic living experience. By challenging conventional notions of confinement, the design proves that small spaces can be expansive in perception and rich in experience.

All Photographs are works of Ivan Chuang
Popular Articles
Popular articles from the community
Louis Malle Cinema: A Limestone Cultural Landmark Revitalizing Community Life in Prayssac
Limestone cinema extension with public forecourt, blending heritage and modern design to create flexible cultural spaces and strengthen community interaction.
The Ken Roberts Memorial Delineation Competition (Krob)
As the most senior architectural drawing competition currently in operation anywhere in the world, it draws hundreds of entries each year, awarding the very best submissions in a series of medium-based categories.
Solar Steam: A Climate-Responsive Architecture That Redefines the Monument
A climate-responsive memorial architecture that transforms heat, decay, and time into a living system reflecting humanity’s ecological impact.
An Miên Lumière Cafe by xưởng xép, Ho Chi Minh City, Vietnam
An industrial-inspired café where layered steel and warm light create a dynamic, immersive environment shaped by reflection, depth, and perception.
Similar Reads
You might also enjoy these articles
The Ken Roberts Memorial Delineation Competition (Krob)
As the most senior architectural drawing competition currently in operation anywhere in the world, it draws hundreds of entries each year, awarding the very best submissions in a series of medium-based categories.
Waterfront Redevelopment and Urban Revitalization in Mumbai: Forging a New Dawn for Darukhana
A transformative waterfront redevelopment project reimagining Darukhana’s shipbreaking heritage into an inclusive urban future.
OUT-OF-MAP: A Call for Postcards on Feminist Narratives of Public Space
Rhizoma Design and Research Lab invites artists, designers, architects, researchers, and students to reflect on how feminist perspectives can reshape public space. Selected works will be exhibited in Barcelona, October 2026. Submissions open until 15 April 2026.
Documentation Work on Buddhist Wooden Temple
Architectural syncretism and cultural hybridity: A comparative study of the Buddhist temples in Chattogram Hill tracks
Explore Architecture Competitions
Discover active competitions in this discipline
The International Standard for Design Portfolios
The Global Benchmark for Architecture Dissertation Awards
The Global Benchmark for Graduation Excellence
Challenge to reimagine the Iron Throne
Comments (0)
Please login or sign up to add comments
No comments yet. Be the first to comment!