Stories Residential Building: Amsterdam's Pioneering Green Timber Tower
A sustainable timber residential tower in Amsterdam combining flexible living, communal spaces, and lush vertical gardens to create a healthy, climate-responsive urban habitat.
Stories Residential Building by Olaf Gipser Architects redefines sustainable urban living in Amsterdam with its bold material innovation, community-centric design, and climate-responsive architecture. Completed in 2021 through a collaborative effort between Olaf Gipser Architects, the Self-build Cooperative BSH20A, contractor Heutink Groep, and Smartland landscape architecture, this ambitious project stands as a pioneering model for collective self-build developments and timber-hybrid construction in the Netherlands.


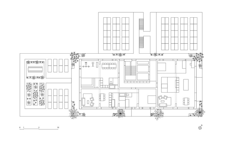
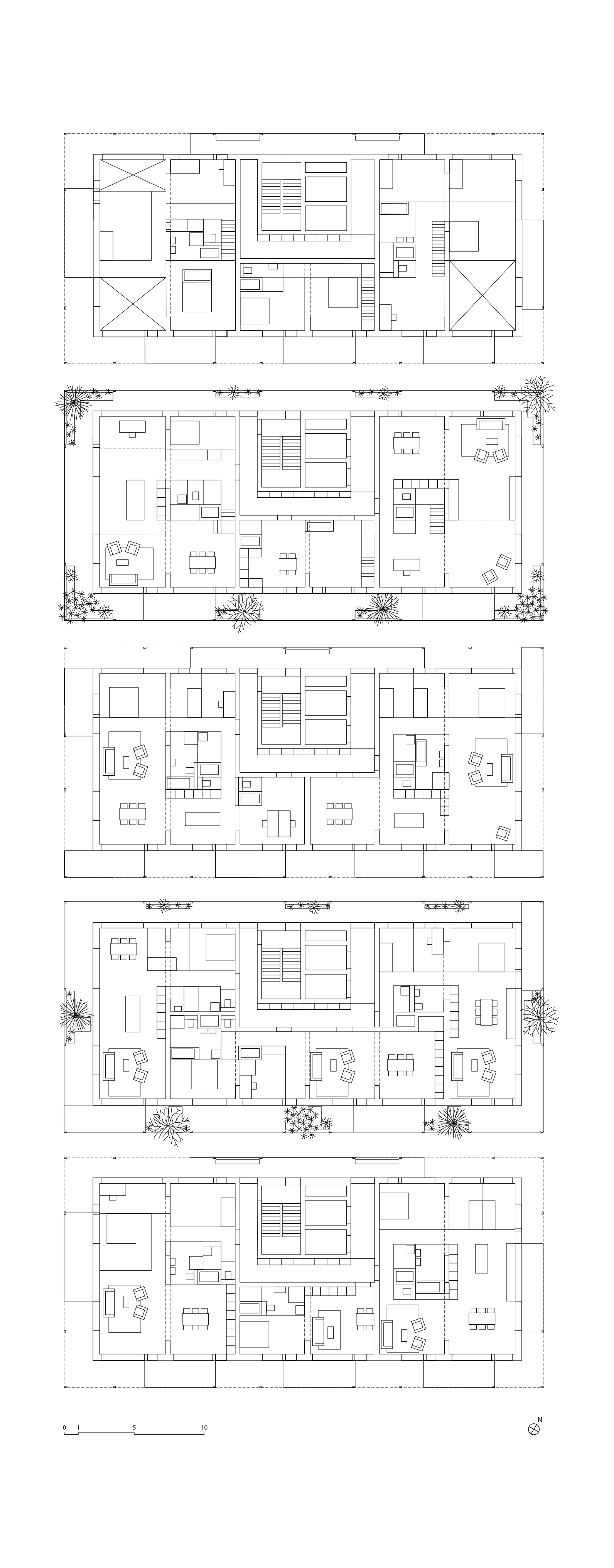
Anchored in the post-industrial landscape of Buiksloterham, Amsterdam-Noord, Stories rises as a 45-meter-high, 12-storey residential tower crafted largely from early-adopted cross-laminated timber (CLT) and PEFC-certified timber. The project embraces Open Building principles to ensure long-term adaptability, durability, and a future-ready living environment. With its negative carbon balance and progressive construction approach, the building addresses the urgent challenges of sustainable densification, nature inclusion, and healthy communal living in contemporary cities.

The building accommodates 29 flexible apartments, including adaptable work-living units, alongside six commercial spaces, a parking garage, and generous shared amenities such as a gym, sauna, collective kitchen, and expansive urban farming terraces. These communal spaces support a socially connected lifestyle while enhancing resident well-being.

Structurally, Stories is a celebration of timber innovation. While the plinth and core employ prefab concrete for stability, the remainder of the tower is fully expressed through CLT load-bearing portals and wide-span bays. This system allows for highly flexible floor plans, enabling configurations from one to six apartments per level. Varying floor heights and occasional double-height spaces add further spatial richness to the homes.


A defining architectural element is the deep white steel façade, which wraps the building in a generous framework of private balconies, winter gardens, and vertical green terraces. Beyond expanding living space, these elements act as passive cooling devices and privacy buffers. Integrated into the façade are 57 double-height planting units, each supporting trees, shrubs, grasses, and habitat for local fauna. These vertical gardens cultivate a lush microclimate, enhance biodiversity, and give the building a shifting seasonal expression.


Clad in hydrothermally modified spruce panels treated for weathering and fire safety, the façade combines natural warmth with resilient performance. Over time, the vegetation and materials have matured, creating an architectural ecosystem that blends urban living with nature.


One of the project’s most remarkable achievements is its environmental performance. With nearly 1,000 m³ of timber, the building stores more carbon than the concrete and steel it uses, resulting in an impressive carbon balance of –300 tons of CO₂. This achievement positioned Stories as a leading reference in sustainable housing and played a key role in the Green Deal Timber Construction for the Amsterdam Metropolitan Region, which aims to make 20% of all new homes timber-based by 2025.


Since its completion, Stories has been widely celebrated for its vision, receiving multiple awards including recognition at the Dutch Design Awards 2022. The jury emphasized the project's ability to address urgent issues—sustainable materials, ecological integration, collective living, and urban density—while maintaining an understated yet elegant architectural language. Residents also praise its healthy indoor climate, flexible layouts, and the strong sense of community fostered by shared spaces and the building’s biophilic identity.


Through its inventive use of timber, inclusive design approach, and integration of nature at all scales, the Stories Residential Building stands as a landmark in contemporary ecological architecture—showcasing how forward-thinking design can shape a resilient, community-driven, and sustainable urban future.



All the Photographs are works of MWA Hart Nibbrig, Luuk Kramer, Heutink Groep BV
Popular Articles
Popular articles from the community
The Ken Roberts Memorial Delineation Competition (Krob)
As the most senior architectural drawing competition currently in operation anywhere in the world, it draws hundreds of entries each year, awarding the very best submissions in a series of medium-based categories.
Gads Hill Early Learning Center by JGMA: Adaptive Reuse Shaping Community-Focused Educational Architecture
Adaptive reuse transforms fragmented structure into vibrant early learning center with playful façade, natural light, and community-focused sustainable design.
Inverted Architecture Installation by Studio Link-Arc: Exploring the Intersection of Architecture and Living Organisms
Inverted Architecture Installation by Studio Link-Arc blends mycelium, sustainability, inverted design, ecological cycles, and urban adaptive architecture in Shenzhen.
Split House: A Compact Urban Home Blending Privacy, Light, and Flexible Living in Japan
Compact Japanese home featuring DOMA space, flexible café potential, passive lighting, privacy zoning, and sustainable urban living design.
Similar Reads
You might also enjoy these articles
The Ken Roberts Memorial Delineation Competition (Krob)
As the most senior architectural drawing competition currently in operation anywhere in the world, it draws hundreds of entries each year, awarding the very best submissions in a series of medium-based categories.
Waterfront Redevelopment and Urban Revitalization in Mumbai: Forging a New Dawn for Darukhana
A transformative waterfront redevelopment project reimagining Darukhana’s shipbreaking heritage into an inclusive urban future.
OUT-OF-MAP: A Call for Postcards on Feminist Narratives of Public Space
Rhizoma Design and Research Lab invites artists, designers, architects, researchers, and students to reflect on how feminist perspectives can reshape public space. Selected works will be exhibited in Barcelona, October 2026. Submissions open until 15 April 2026.
Documentation Work on Buddhist Wooden Temple
Architectural syncretism and cultural hybridity: A comparative study of the Buddhist temples in Chattogram Hill tracks
Explore Architecture Competitions
Discover active competitions in this discipline
The International Standard for Design Portfolios
The Global Benchmark for Architecture Dissertation Awards
The Global Benchmark for Graduation Excellence
Challenge to reimagine the Iron Throne
Comments (0)
Please login or sign up to add comments
No comments yet. Be the first to comment!