Sustainable School Renovation Architecture in Utrecht: Primary School Lux by EVA Architecten
A sustainable renovation project that redefines educational architecture through spatial clarity, energy performance, and thoughtful design in Utrecht.
Revitalizing Education through Architecture
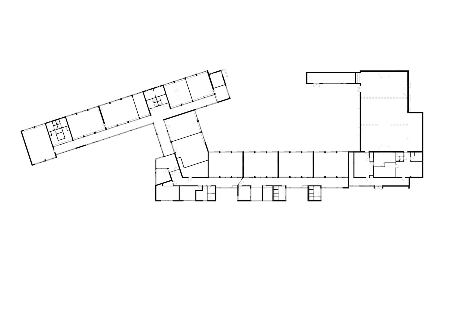
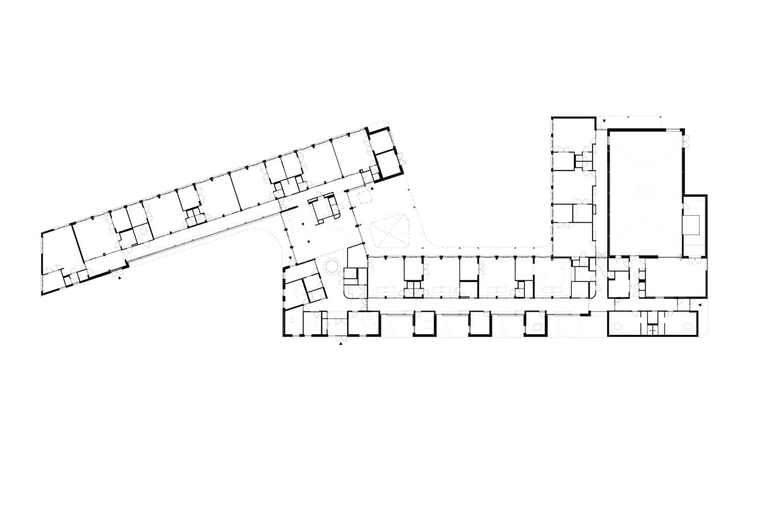
In the heart of Utrecht’s Zuilen district, EVA Architecten has reimagined Primary School Lux as a beacon of sustainable school renovation architecture. Originally constructed in 1973, the building no longer met the spatial and functional demands of contemporary special education. Rather than demolishing and rebuilding, the architects opted for a sensitive renovation—transforming outdated facilities into a forward-thinking educational environment that balances functionality, sustainability, and design integrity.


A Site-Specific Renovation Strategy
The original single-story structure sprawled across the site in two low-lying wings, creating a layout that lacked spatial clarity and a recognizable entrance. EVA Architecten’s approach was rooted in the existing cross-sectional logic of the building. By integrating all new mechanical installations into the lower corridor zones along Stauntonstraat, they preserved the group rooms while introducing an insulated architectural shell. This strategy enabled both functional upgrades and expressive design interventions without losing the building's foundational rhythm.


Connecting Spaces with Architectural Expression
The renovated façade wraps around the school like a fluid, elastic band—doubling as an eave, a canopy, and a connective tissue between interior and exterior. This architectural gesture enhances visual coherence and strengthens the relationship between indoor learning spaces and outdoor patios. Where previously additions overshadowed the façade, the redesign places emphasis on the interstitial spaces—patios that now serve as transitional zones between classrooms and the public realm.


At the junction where both building wings meet, the architects created a vibrant new heart for the school. This meeting space opens up to two outdoor areas and is crowned by a canopy that links the two wings physically and visually. Not only does this canopy serve as a covered play area, but it also marks the school’s new main entrance—distinct, welcoming, and proudly oriented toward the street.


Adaptive Interiors for Modern Educational Needs
Internally, the renovation pays close attention to the dynamics of special education. Group rooms have been refined to span two structural grids, accommodating smaller group sizes. Each learning space is linked to a third grid containing ancillary rooms, such as side spaces and integrated toilets. This configuration allows teachers to maintain constant oversight while supporting differentiated learning.


Specialized care services—including speech therapy and play supervision—are housed within the existing extensions near the entrance. Adjacent to this area is the team room, located beside the school's new central hub, reinforcing collaboration among staff.


Sustainable Systems and Energy Performance
Sustainability lies at the core of the renovation strategy. The building employs an air heat pump system combined with underfloor heating, supplemented by preheated air circulation for each group room. The gymnasium benefits from a Frenger ceiling system that offers both heating and cooling, paired with independent ventilation. These upgrades, along with enhancements to the thermal envelope, ensure the school meets the Dutch Building Decree 2012 standards for new construction under the ENG criteria.


A Contemporary Model for Educational Architecture
Primary School Lux stands as a compelling example of sustainable school renovation architecture. By leveraging the structure's existing framework, EVA Architecten has crafted a thoughtful, resilient, and future-oriented environment for learning. Through its refined spatial organization, expressive material palette, and energy-efficient systems, the school offers a contemporary vision of what educational architecture can and should be—adaptive, inclusive, and environmentally responsible.




All Photographs are works of Sebastian van Damme
Popular Articles
Popular articles from the community
On the Brooks House by Monsoon Collective – A Contemporary Kerala Home Rooted in Tradition
Kerala home blending tradition and modernity with water-inspired design, brick architecture, courtyard planning, and sustainable rainwater harvesting strategies.
Louis Malle Cinema: A Limestone Cultural Landmark Revitalizing Community Life in Prayssac
Limestone cinema extension with public forecourt, blending heritage and modern design to create flexible cultural spaces and strengthen community interaction.
Atelier Macri Concept Store Interior Design by CASE-REAL
Atelier Macri store features a "ko" counter, walnut wood details, cork displays, blending retail, gallery, and seamless customer experiences.
Treehouse Apartment: A Warm Timber Interior Blending Craft, Play, and Contemporary Living
Warm timber apartment with integrated treehouse, combining natural materials, craftsmanship, and playful design to create a flexible, family-oriented living environment.
Similar Reads
You might also enjoy these articles
The Ken Roberts Memorial Delineation Competition (Krob)
As the most senior architectural drawing competition currently in operation anywhere in the world, it draws hundreds of entries each year, awarding the very best submissions in a series of medium-based categories.
Waterfront Redevelopment and Urban Revitalization in Mumbai: Forging a New Dawn for Darukhana
A transformative waterfront redevelopment project reimagining Darukhana’s shipbreaking heritage into an inclusive urban future.
OUT-OF-MAP: A Call for Postcards on Feminist Narratives of Public Space
Rhizoma Design and Research Lab invites artists, designers, architects, researchers, and students to reflect on how feminist perspectives can reshape public space. Selected works will be exhibited in Barcelona, October 2026. Submissions open until 15 April 2026.
Documentation Work on Buddhist Wooden Temple
Architectural syncretism and cultural hybridity: A comparative study of the Buddhist temples in Chattogram Hill tracks
Explore Architecture Competitions
Discover active competitions in this discipline
The International Standard for Design Portfolios
The Global Benchmark for Architecture Dissertation Awards
The Global Benchmark for Graduation Excellence
Challenge to reimagine the Iron Throne
Comments (0)
Please login or sign up to add comments
No comments yet. Be the first to comment!