Translucent Facade Workspace Design in Dalston: A Case Study on Bradbury Works
This article explores the innovative design of Bradbury Works, a Victorian terrace transformed into a modern translucent facade workspace in Dalston.
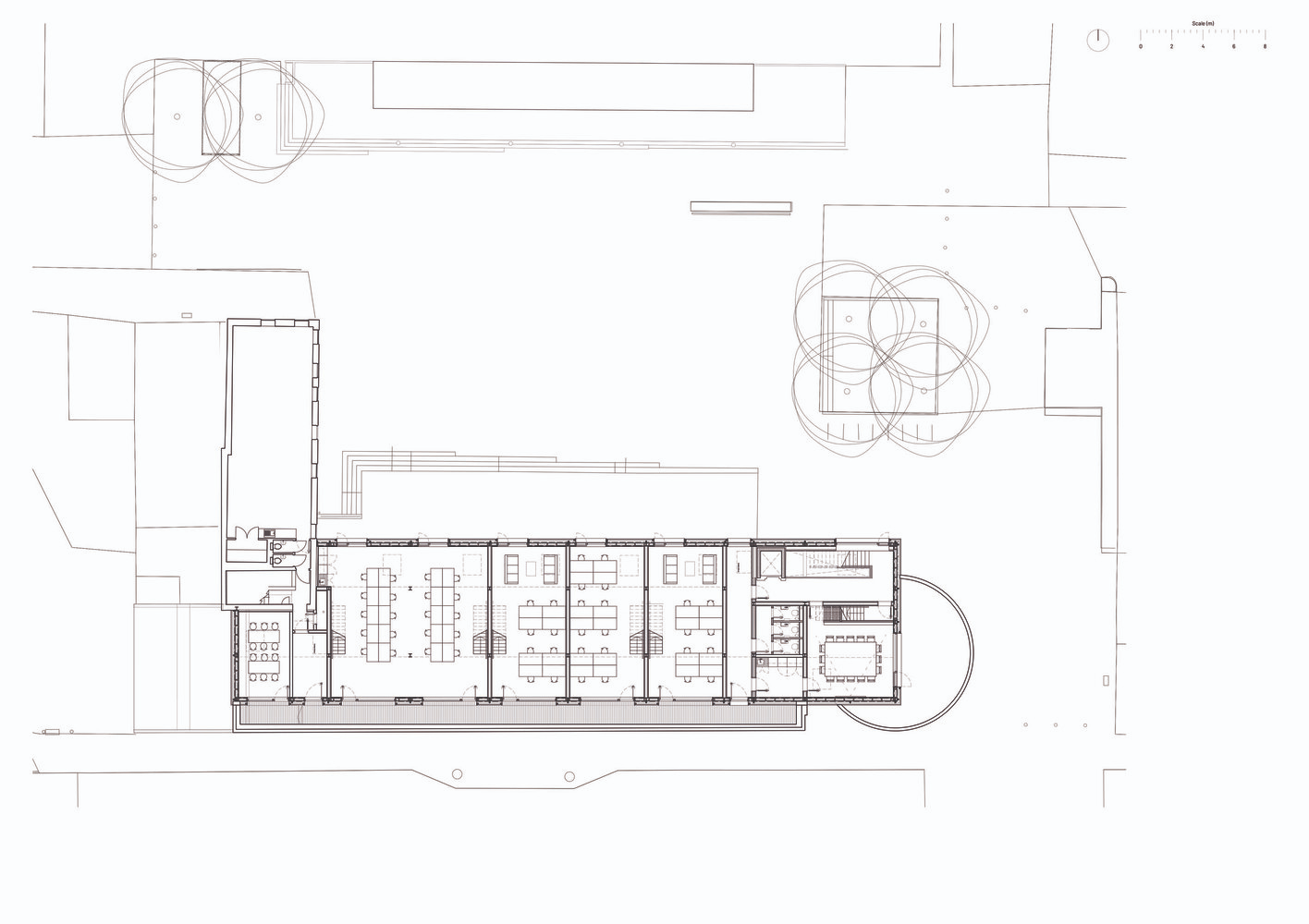
Bradbury Works in Dalston, United Kingdom, represents a pivotal advancement in commercial architecture, focusing on the integration of traditional structures with modern workspace solutions. This project, led by [Y/N] Studio, is a prime example of translucent facade workspace design, showcasing the renovation of a Victorian terrace into a thriving business environment.







The Essence of Commercial Renovation
The renovation at Bradbury Works illustrates a sensitive approach to Victorian terrace commercial renovation. By preserving the historical essence of the original masonry while introducing a two-story extension, the project harmonizes past and present architectural styles. The provision of affordable workspaces alongside retail units revitalizes the existing community-focused public square.








Innovations in Workspace Design
[Y/N] Studio's approach to creating flexible workspaces within the Bradbury Works is a testament to innovative workspace design. The incorporation of translucent building elements by RODECA and the strategic use of space encourage natural light and foster a collaborative environment. These elements are central to modern architectural practices in commercial renovations.









The Role of Translucent Facades
The hallmark of this project is its translucent facade, which encapsulates the spirit of contemporary design while maintaining the integrity of the Victorian architecture. This feature not only enhances the aesthetic appeal of the building but also promotes an energy-efficient workspace. The facade's ability to reflect the sky and surrounding environment during the day and reveal the interior activities at night adds a dynamic element to the Dalston landscape.



The Future of Workspace Architecture
Bradbury Works serves as a benchmark for future projects in translucent facade workspace design. By blending historical elements with modern design principles, [Y/N] Studio sets a new standard for commercial renovations. This project not only revitalizes a neighborhood but also provides a blueprint for sustainable and innovative workspace design in urban settings.














All photographs are work of French + Tye
Popular Articles
Popular articles from the community
Flamboyant House by Juliana Camargo + Prumo Projetos
Modern Brazilian house integrating existing tree, pool, and volumes with glass, wood, and transitional spaces blending interior, exterior, and landscape seamlessly.
On the Brooks House by Monsoon Collective – A Contemporary Kerala Home Rooted in Tradition
Kerala home blending tradition and modernity with water-inspired design, brick architecture, courtyard planning, and sustainable rainwater harvesting strategies.
Treehouse Apartment: A Warm Timber Interior Blending Craft, Play, and Contemporary Living
Warm timber apartment with integrated treehouse, combining natural materials, craftsmanship, and playful design to create a flexible, family-oriented living environment.
Inverted Architecture Installation by Studio Link-Arc: Exploring the Intersection of Architecture and Living Organisms
Inverted Architecture Installation by Studio Link-Arc blends mycelium, sustainability, inverted design, ecological cycles, and urban adaptive architecture in Shenzhen.
Similar Reads
You might also enjoy these articles
The Ken Roberts Memorial Delineation Competition (Krob)
As the most senior architectural drawing competition currently in operation anywhere in the world, it draws hundreds of entries each year, awarding the very best submissions in a series of medium-based categories.
Waterfront Redevelopment and Urban Revitalization in Mumbai: Forging a New Dawn for Darukhana
A transformative waterfront redevelopment project reimagining Darukhana’s shipbreaking heritage into an inclusive urban future.
OUT-OF-MAP: A Call for Postcards on Feminist Narratives of Public Space
Rhizoma Design and Research Lab invites artists, designers, architects, researchers, and students to reflect on how feminist perspectives can reshape public space. Selected works will be exhibited in Barcelona, October 2026. Submissions open until 15 April 2026.
Documentation Work on Buddhist Wooden Temple
Architectural syncretism and cultural hybridity: A comparative study of the Buddhist temples in Chattogram Hill tracks
Explore Architecture Competitions
Discover active competitions in this discipline
The International Standard for Design Portfolios
The Global Benchmark for Architecture Dissertation Awards
The Global Benchmark for Graduation Excellence
Challenge to reimagine the Iron Throne
Comments (0)
Please login or sign up to add comments
No comments yet. Be the first to comment!