Umasari House: A Paradigm of Modern Tropical House Design in Indonesia
Umasari House merges modern architecture with tropical design and feng shui principles, creating a spacious and balanced residence in Indonesia.
Nestled in the vibrant heart of Petitenget, Umasari House stands as a quintessential example of modern tropical house design in Indonesia. Crafted by the visionary Arkana Architects, this residence harmonizes the principles of modern architecture with the lush tropical ambiance of Indonesia, offering a refreshing take on contemporary living spaces.





Architectural Vision: Embracing Feng Shui and Modernity
The Essence of Spatial Harmony
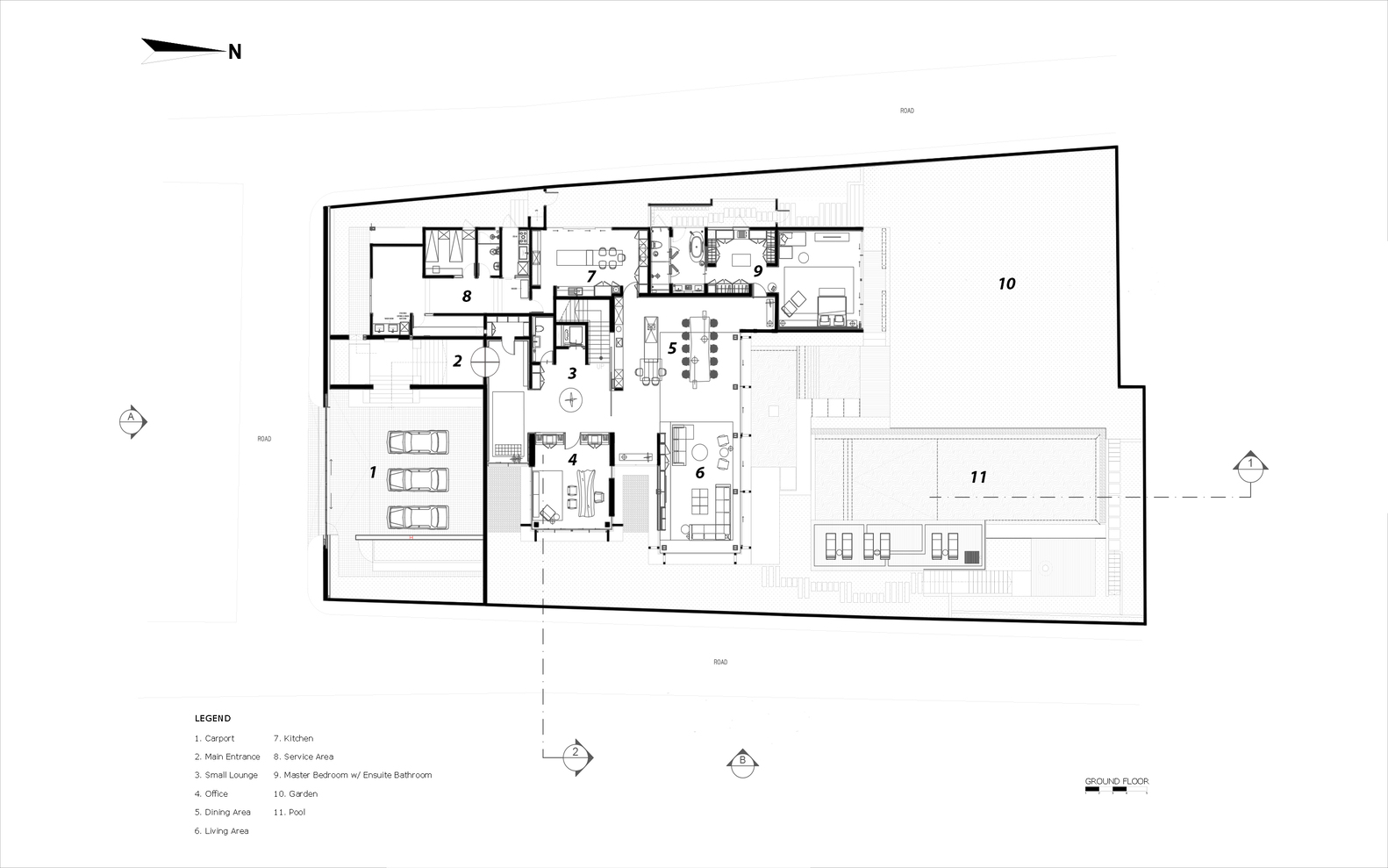
At the core of Umasari House's design philosophy is the integration of feng shui principles, aiming to create a living space that not only resonates with modern aesthetic sensibilities but also aligns with traditional spatial harmony. The meticulous layout follows the natural contours of the site, ensuring fluidity and balance throughout the home.




A Journey Through Space
The journey into Umasari House begins with a striking entrance, leading guests through a series of meticulously designed spaces. From the inviting foyer and the elegant living room to the serene private quarters and the expansive outdoor pool and garden, each element is a testament to the seamless blend of modern design and tropical elegance.





Design Challenges and Innovative Solutions
Overcoming Mass with Greenery
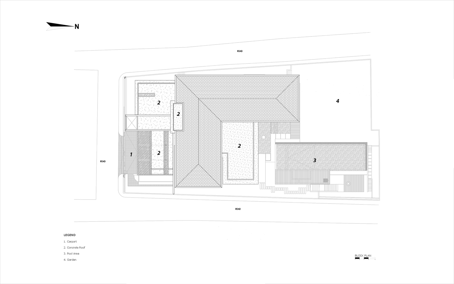
One of the primary challenges faced by Arkana Architects was designing a single-mass dwelling without it appearing overwhelmingly massive. The solution was ingeniously simple yet effective: integrating green areas within the building plan. These mini gardens not only enhance the aesthetic appeal of each room but also promote natural ventilation, creating a healthier living environment.






High Ceilings and Open Spaces
To further counteract the potential massiveness of the building, Umasari House features high ceilings in every room, including a double-height ceiling in the living area. This architectural decision amplifies the sense of spaciousness and openness, embodying the ethos of modern tropical house design.




Materiality: Merging Modernity with the Tropics
The Timeless Tropical Box
The rectangular plan of Umasari House, coupled with its avant-garde elevation, presents a modern box-like structure that is both timeless and contemporary. However, to soften the modernity and infuse a tropical vibe, Arkana Architects employed a mix of natural materials, including natural stone and ironwood, alongside expansive glass walls. This thoughtful combination articulates the tropical modern style distinctly, offering a nuanced interpretation of Bali's architectural landscape.

Redefining Tropical Living
Umasari House by Arkana Architects is more than just a residence; it's a bold statement in modern tropical house design in Indonesia. By marrying the modern with the tropical and aligning with feng shui principles, the project sets a new benchmark for residential architecture in Indonesia. It stands as a beacon of how contemporary homes can embrace traditional wisdom and tropical beauty, crafting spaces that are not only visually stunning but also spiritually balanced and environmentally integrated.






All photographs are work of Indra Wiras
Popular Articles
Popular articles from the community
Inverted Architecture Installation by Studio Link-Arc: Exploring the Intersection of Architecture and Living Organisms
Inverted Architecture Installation by Studio Link-Arc blends mycelium, sustainability, inverted design, ecological cycles, and urban adaptive architecture in Shenzhen.
Solar Steam: A Climate-Responsive Architecture That Redefines the Monument
A climate-responsive memorial architecture that transforms heat, decay, and time into a living system reflecting humanity’s ecological impact.
Atelier Macri Concept Store Interior Design by CASE-REAL
Atelier Macri store features a "ko" counter, walnut wood details, cork displays, blending retail, gallery, and seamless customer experiences.
Treehouse Apartment: A Warm Timber Interior Blending Craft, Play, and Contemporary Living
Warm timber apartment with integrated treehouse, combining natural materials, craftsmanship, and playful design to create a flexible, family-oriented living environment.
Similar Reads
You might also enjoy these articles
The Ken Roberts Memorial Delineation Competition (Krob)
As the most senior architectural drawing competition currently in operation anywhere in the world, it draws hundreds of entries each year, awarding the very best submissions in a series of medium-based categories.
Waterfront Redevelopment and Urban Revitalization in Mumbai: Forging a New Dawn for Darukhana
A transformative waterfront redevelopment project reimagining Darukhana’s shipbreaking heritage into an inclusive urban future.
OUT-OF-MAP: A Call for Postcards on Feminist Narratives of Public Space
Rhizoma Design and Research Lab invites artists, designers, architects, researchers, and students to reflect on how feminist perspectives can reshape public space. Selected works will be exhibited in Barcelona, October 2026. Submissions open until 15 April 2026.
Documentation Work on Buddhist Wooden Temple
Architectural syncretism and cultural hybridity: A comparative study of the Buddhist temples in Chattogram Hill tracks
Explore Architecture Competitions
Discover active competitions in this discipline
The International Standard for Design Portfolios
The Global Benchmark for Architecture Dissertation Awards
The Global Benchmark for Graduation Excellence
Challenge to reimagine the Iron Throne
Comments (0)
Please login or sign up to add comments
No comments yet. Be the first to comment!