Urban Courtyard Houses in South Korea: Exploring Pangyo Two Courtyards House by June Architects
Exploring Pangyo Two Courtyards House in South Korea, a unique urban home blending indoor-outdoor living with privacy and nature by June Architects.
In the bustling urban landscape of Seongnam-si, South Korea, the Pangyo Two Courtyards House emerges as a beacon of architectural innovation and natural integration. Designed by June Architects, this 297 square meter home redefines the concept of urban living by blending privacy with nature. This article dives into the design philosophy, architectural nuances, and the unique aspects of the Pangyo Two Courtyards House.


Balancing Nature and Privacy
The Concept of Half-Open Courtyards
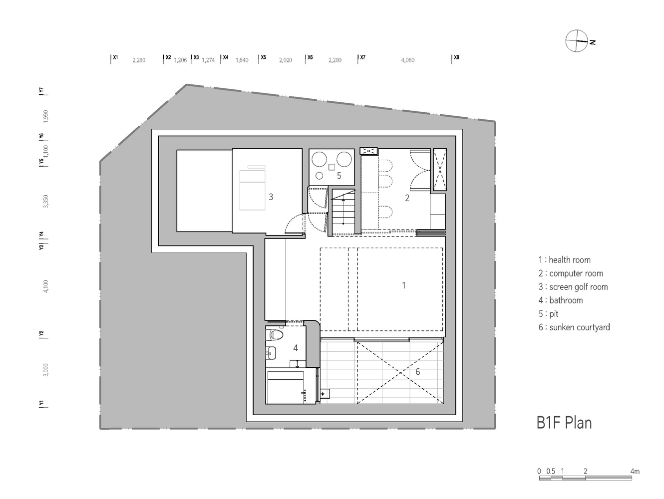
One of the main challenges in urban house design is maintaining a connection with nature while ensuring privacy. The Pangyo Two Courtyards House addresses this issue with its innovative half-open courtyard design. This approach allows the residence to embrace the outdoors, offering views of the sky and sunlight, while strategically shielding the interior from the public eye. The use of brick-mesh on the upper parts of the courtyard walls creates an elegant interplay of light and shadow, enhancing the connection with the natural world.



A Private Oasis in the City
The design includes a sunken courtyard that is completely secluded, providing a sanctuary where residents can enjoy the sky and sunlight in total privacy. This space serves as a private retreat from the urban environment, offering a rare sense of openness and freedom within the city.




Architectural Design and Space Utilization
The Unity of Indoor and Outdoor Spaces
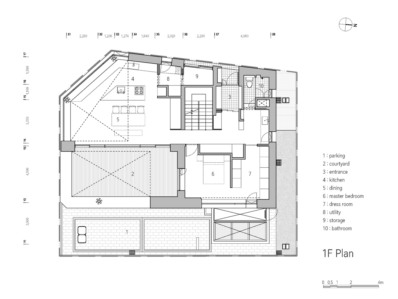
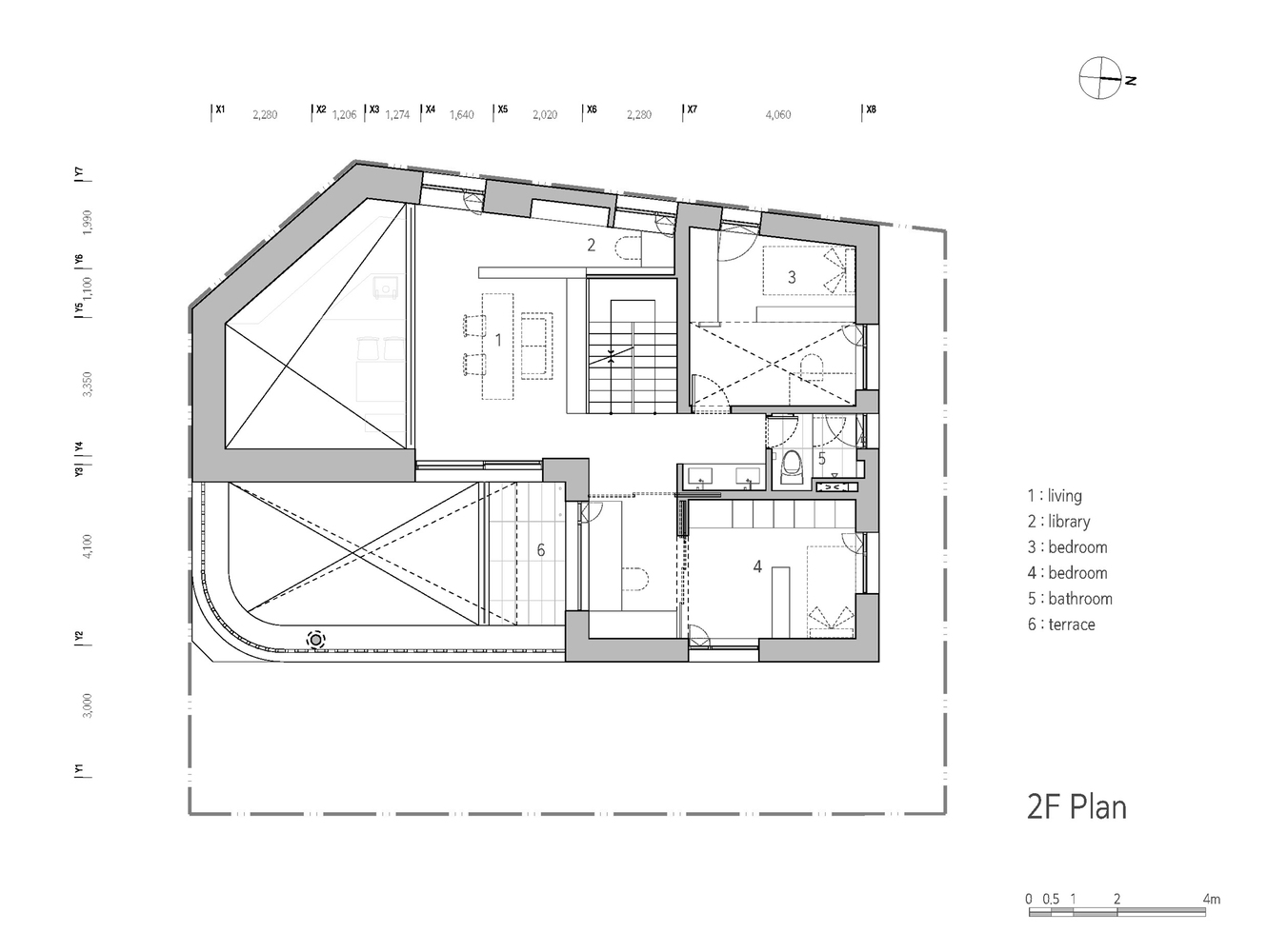
The courtyard on the first floor, with its 8.5-meter-high walls, introduces a dramatic sense of space that extends the living areas outdoors. This design not only unites the main rooms across both floors but also fosters family interaction in a shared, yet open environment. The seamless flow between indoor and outdoor areas enhances the living experience, making the home feel larger and more connected to nature.




Sculptural Elements and Order
June Architects' approach to the house's design incorporates sculptural elements to achieve a powerful yet elegant aesthetic. By refining structural components such as walls and columns, the architects have created spaces that are both functional and visually stunning, demonstrating a sophisticated understanding of form and space.


Comfort and Convenience in Design
Prioritizing Ease of Living
The layout of the Pangyo Two Courtyards House is meticulously planned for convenience, ensuring easy access to essential areas like the kitchen and laundry room. Communal spaces are designed to be inviting and comfortable, promoting family gatherings, while private areas are thoughtfully separated to ensure personal privacy. This careful consideration of the home's functionality makes it a truly comfortable place to live.
The Pangyo Two Courtyards House by June Architects stands as a model for urban courtyard houses in South Korea, offering a solution to the challenges of urban living through its innovative design. By blending the indoors with the outdoors and balancing public visibility with private tranquility, this home sets a new standard for residential architecture. It not only provides a blueprint for integrating nature into urban homes but also showcases how architectural creativity can enhance our living environments in densely populated cities.








All photographs are work of Kyungsub Shin
Popular Articles
Popular articles from the community
Inverted Architecture Installation by Studio Link-Arc: Exploring the Intersection of Architecture and Living Organisms
Inverted Architecture Installation by Studio Link-Arc blends mycelium, sustainability, inverted design, ecological cycles, and urban adaptive architecture in Shenzhen.
Flamboyant House by Juliana Camargo + Prumo Projetos
Modern Brazilian house integrating existing tree, pool, and volumes with glass, wood, and transitional spaces blending interior, exterior, and landscape seamlessly.
Solar Steam: A Climate-Responsive Architecture That Redefines the Monument
A climate-responsive memorial architecture that transforms heat, decay, and time into a living system reflecting humanity’s ecological impact.
On the Brooks House by Monsoon Collective – A Contemporary Kerala Home Rooted in Tradition
Kerala home blending tradition and modernity with water-inspired design, brick architecture, courtyard planning, and sustainable rainwater harvesting strategies.
Similar Reads
You might also enjoy these articles
The Ken Roberts Memorial Delineation Competition (Krob)
As the most senior architectural drawing competition currently in operation anywhere in the world, it draws hundreds of entries each year, awarding the very best submissions in a series of medium-based categories.
Waterfront Redevelopment and Urban Revitalization in Mumbai: Forging a New Dawn for Darukhana
A transformative waterfront redevelopment project reimagining Darukhana’s shipbreaking heritage into an inclusive urban future.
OUT-OF-MAP: A Call for Postcards on Feminist Narratives of Public Space
Rhizoma Design and Research Lab invites artists, designers, architects, researchers, and students to reflect on how feminist perspectives can reshape public space. Selected works will be exhibited in Barcelona, October 2026. Submissions open until 15 April 2026.
Documentation Work on Buddhist Wooden Temple
Architectural syncretism and cultural hybridity: A comparative study of the Buddhist temples in Chattogram Hill tracks
Explore Architecture Competitions
Discover active competitions in this discipline
The International Standard for Design Portfolios
The Global Benchmark for Architecture Dissertation Awards
The Global Benchmark for Graduation Excellence
Challenge to reimagine the Iron Throne
Comments (0)
Please login or sign up to add comments
No comments yet. Be the first to comment!