Urban Renewal Strategies in Historic Districts: A Case Study of Chengdu Pengzhou Longxing Temple Area by BIAD-ASA Studio
Exploring the transformation of Chengdu's Pengzhou Longxing Temple Area, blending urban renewal with historic preservation, culture, and modern public spaces.
In the bustling old town of Pengzhou city, a transformative urban renewal project unfolds, led by the innovative BIAD-ASA Studio. At the core of this endeavor lies the Chengdu Pengzhou Longxing Temple Area, a region steeped in history, culture, and the echoes of a thousand years. This comprehensive renewal project not only revitalizes a key historic district but also sets a benchmark for integrating modern urban planning with cultural preservation.




Reimagining Pengzhou’s Urban Core
Crafting a New Urban Center
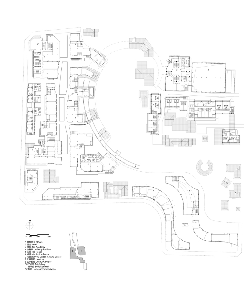
The vision behind the renewal of the Chengdu Pengzhou Longxing Temple Area was to create a vibrant new center for Pengzhou city that harmoniously blends commerce, culture, hotels, and residences. This ambitious goal required a meticulous balance of development and operating costs, ensuring a sustainable future for the area's rejuvenation.








Seamless Integration of Commercial and Cultural Functions
The project navigates the delicate balance between commercial viability and cultural significance, employing a strategy of "functional segmentation and dynamic integration". This approach ensures that the renewed district serves both its residents and the broader community, fostering a lively, culturally rich urban environment.









Preserving Tradition through Contemporary Design
Reviving Traditional Spatial Images
BIAD-ASA Studio embarked on a journey to architecturally represent the city's history, focusing on three key traditional spatial images: "Ten-side Bush", "Pitched-roofs", and "Sky-Line". Each element draws inspiration from the region's historical layout, architectural styles, and urban skyline, thoughtfully integrated into the modern design.


Ten-side Bush: Embracing Nature and Heritage
Centering around the Longxing Temple, the design revitalizes the surrounding environment, transforming abandoned factories into green spaces and reintroducing water elements to reflect the area's natural beauty.


Pitched-roofs: A Nod to Local Urban Imagery
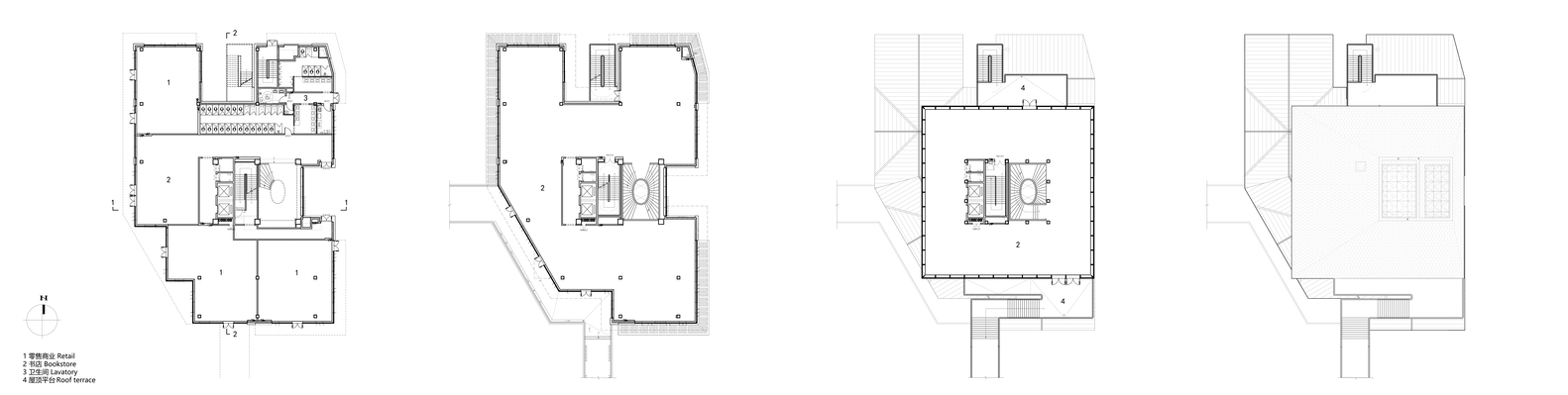
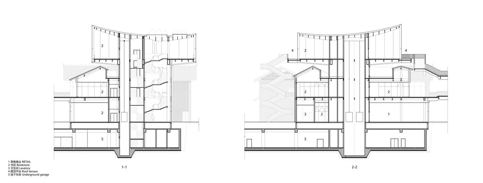
The iconic sloping roofs that once defined the local urban landscape until the 1990s are reinterpreted in the project. This design choice not only pays homage to the architectural heritage but also creates dynamic public spaces filled with walkways and platforms, offering residents and visitors a taste of traditional city life.



Sky-Line: Reshaping the Urban Silhouette
By limiting commercial buildings to three floors and emphasizing detached cultural buildings, the project recreates the traditional urban skyline, reminiscent of ancestral temples and historical structures, thus maintaining the city's unique visual identity.



Creating Multi-Dimensional Public Spaces
Landscape Integration and Public Engagement
The project pioneers the creation of three-dimensional landscape public spaces that align with traditional aesthetics while accommodating modern functions. An innovative aerial corridor and multi-level pedestrian spaces offer new perspectives and experiences, blending seamlessly with the natural and built environment.




Revitalization without Erasure
The renewal project faces the challenge of preserving Pengzhou's urban memory while meeting contemporary needs. By sorting historic buildings based on their cultural value and adopting differentiated protection measures, the project respects the past while embracing the future.



A Model for Urban Renewal
The Regional Urban Renewal of Chengdu Pengzhou Longxing Temple Area by BIAD-ASA Studio stands as a testament to the possibilities of urban renewal strategies in historic districts. Through a thoughtful blend of traditional imagery, contemporary design, and public engagement, the project breathes new life into Pengzhou's historic core, offering a vibrant, culturally rich urban space for future generations. This case study not only revitalizes a significant area of Chengdu but also provides valuable insights into sustainable urban development, cultural preservation, and the dynamic integration of commercial and cultural functions.


All photographs are work of Arch-Exist, BIAD-ASA Studio
Popular Articles
Popular articles from the community
An Miên Lumière Cafe by xưởng xép, Ho Chi Minh City, Vietnam
An industrial-inspired café where layered steel and warm light create a dynamic, immersive environment shaped by reflection, depth, and perception.
On the Brooks House by Monsoon Collective – A Contemporary Kerala Home Rooted in Tradition
Kerala home blending tradition and modernity with water-inspired design, brick architecture, courtyard planning, and sustainable rainwater harvesting strategies.
Solar Steam: A Climate-Responsive Architecture That Redefines the Monument
A climate-responsive memorial architecture that transforms heat, decay, and time into a living system reflecting humanity’s ecological impact.
Atelier Macri Concept Store Interior Design by CASE-REAL
Atelier Macri store features a "ko" counter, walnut wood details, cork displays, blending retail, gallery, and seamless customer experiences.
Similar Reads
You might also enjoy these articles
The Ken Roberts Memorial Delineation Competition (Krob)
As the most senior architectural drawing competition currently in operation anywhere in the world, it draws hundreds of entries each year, awarding the very best submissions in a series of medium-based categories.
Waterfront Redevelopment and Urban Revitalization in Mumbai: Forging a New Dawn for Darukhana
A transformative waterfront redevelopment project reimagining Darukhana’s shipbreaking heritage into an inclusive urban future.
OUT-OF-MAP: A Call for Postcards on Feminist Narratives of Public Space
Rhizoma Design and Research Lab invites artists, designers, architects, researchers, and students to reflect on how feminist perspectives can reshape public space. Selected works will be exhibited in Barcelona, October 2026. Submissions open until 15 April 2026.
Documentation Work on Buddhist Wooden Temple
Architectural syncretism and cultural hybridity: A comparative study of the Buddhist temples in Chattogram Hill tracks
Explore Architecture Competitions
Discover active competitions in this discipline
The International Standard for Design Portfolios
The Global Benchmark for Architecture Dissertation Awards
The Global Benchmark for Graduation Excellence
Challenge to reimagine the Iron Throne
Comments (0)
Please login or sign up to add comments
No comments yet. Be the first to comment!