Wat Bo House By UAD Architects – Contemporary Residential Design in Siem Reap, CambodiaWat Bo House By UAD Architects – Contemporary Residential Design in Siem Reap, Cambodia

Wat Bo House By UAD Architects – Contemporary Residential Design in Siem Reap, Cambodia

UNI Editorial
UNI Editorial published Story under Architecture, Housing on

Nestled in the historic and culturally rich Wat Bo Village of Siem Reap, Wat Bo House by UAD Architects exemplifies a thoughtful integration of contemporary residential design with the heritage and creative energy of its surroundings. This 590 m² private residence, completed in 2025, serves as a serene oasis for a young couple who sought to settle in this storied neighborhood while embracing its architectural legacy.

Article image
Article image

The design philosophy of Wat Bo House balances simplicity, functionality, and timelessness, creating a home that resonates with both modern living and local identity. The architects selected authentic, durable materials such as natural grey granite tiles, concrete, and wood to ground the project in authenticity while ensuring long-lasting performance.

Article image
Article image

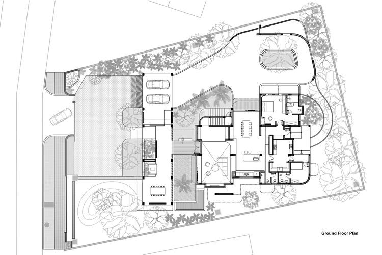
Spatial Organization and Layout The residence is organized into two main blocks connected by a covered walkway, positioned amidst lush gardens and a tranquil fishpond. This layout blurs the boundaries between indoors and outdoors, fostering a seamless connection with nature while providing privacy from neighboring properties. The main building is set deep within the site, allowing the surrounding courtyards and gardens to act as buffers that reduce noise and enhance comfort.

Article image
Article image

The lower floor accommodates social spaces, leisure zones, service areas, and a guest bedroom. A single-story front building frames the entrance, and an open garage doubles as a multi-use terrace for relaxation and viewing the garden. A carefully designed pathway guides visitors inward to the central family living area.

Article image
Article image

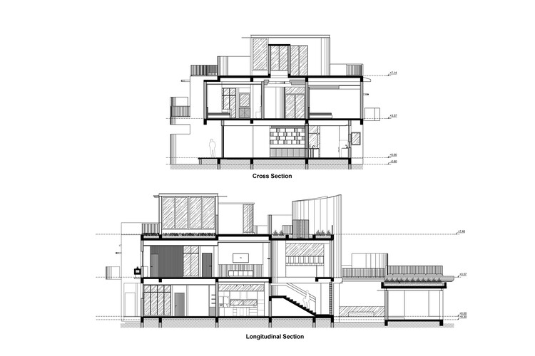
The upper levels feature three bedrooms, a spacious front terrace, and a rooftop gym enveloped by greenery. Strategic openings in the building’s volumes balance solids and voids, allowing natural airflow and providing dynamic views of the surrounding vegetation, including wild almond, ta meng, date palm, and fan palm trees.

Article image
Article image

Materiality and Architectural Features Wat Bo House emphasizes material authenticity and a strong connection to its environment. The façade surfaces gently reflect natural light, creating dynamic shadows that change throughout the day. Hidden gardens, terraces, and layered voids provide constantly shifting perspectives, enhancing the sense of discovery and spatial depth. The fishpond and greenery reinforce a connection to nature, making the home a calming retreat.

Article image
Article image

Sustainability and Comfort The design strategically incorporates natural ventilation and passive cooling, optimizing comfort in Siem Reap’s tropical climate. The integration of green spaces and open courtyards ensures a healthy, tranquil, and environmentally conscious living experience, in line with modern sustainable architecture principles.

Article image
Article image

Conclusion Wat Bo House by UAD Architects is a masterful example of contemporary residential architecture in Cambodia. By harmoniously blending modern design with local heritage, natural materials, and lush landscaping, the home offers a private, serene sanctuary while respecting the cultural context of Wat Bo Village. This project highlights the power of architecture to connect people, place, and nature.

Article image
Article image

All the photographs are works of Oudompheaktra Ang

UNI Editorial

UNI Editorial

Where architecture meets innovation, through curated news, insights, and reviews from around the globe.

Share your ideas with the world

Share your ideas with the world

Write about your design process, research, or opinions. Your voice matters in the architecture community.

Comments (0)

No comments yet. Be the first to comment!

Similar Reads

You might also enjoy these articles

publishedStory1 day ago
The Ken Roberts Memorial Delineation Competition (Krob)
publishedStory3 weeks ago
Waterfront Redevelopment and Urban Revitalization in Mumbai: Forging a New Dawn for Darukhana
publishedStory3 weeks ago
OUT-OF-MAP: A Call for Postcards on Feminist Narratives of Public Space
publishedStory1 month ago
Documentation Work on Buddhist Wooden  Temple

Explore Architecture Competitions

Discover active competitions in this discipline

UNI Editorial
Search in