Adaptive Reuse School Architecture: Herojus School by G.Natkevicius & Partners Transforms Industrial Heritage into a Creative Learning HubAdaptive Reuse School Architecture: Herojus School by G.Natkevicius & Partners Transforms Industrial Heritage into a Creative Learning Hub

Adaptive Reuse School Architecture: Herojus School by G.Natkevicius & Partners Transforms Industrial Heritage into a Creative Learning Hub

UNI Editorial
UNI Editorial published News under Architecture on

Revitalizing Industrial Heritage into a Progressive School Environment

In the heart of Kaunas, Lithuania, the Herojus School stands as a bold testament to adaptive reuse school architecture. Designed by the Architectural Bureau G.Natkevicius & Partners, this educational space breathes new life into the historic “Spindulys” printing press building—an iconic industrial site that operated from 1928 until 2009. Although not deemed architecturally significant in its original form, the building carried immense cultural and economic value as the former location of both important print productions and national coin minting.

Article image
Article image
Article image

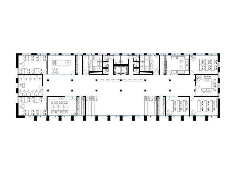
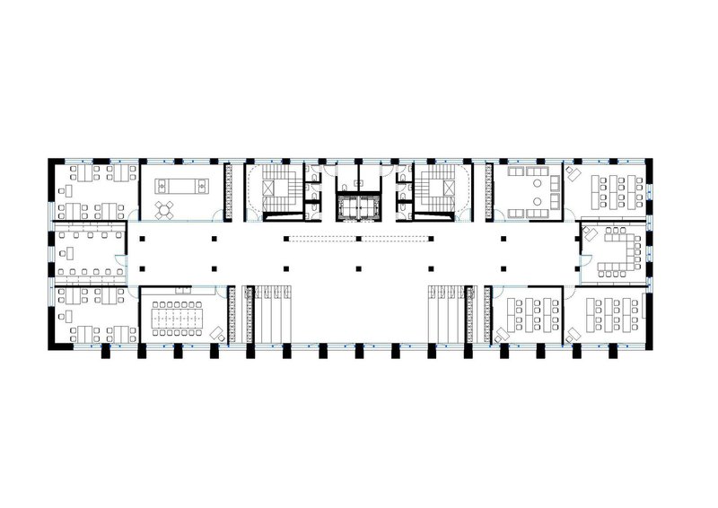
Industrial Identity Preserved Through Adaptive Reuse

Instead of demolition, the architects chose to preserve the structural volume and essence of the original interwar-era industrial building. The transformation retained the characteristic industrial skeleton, including its spatial layout and material palette, while adapting the space for modern educational needs. This strategic decision reinforced the urban and historical identity of Kaunas, maintaining continuity with the city’s industrial narrative.

Article image
Article image
Article image
Article image

A Modern School Without Walls—Spatially and Socially

Herojus School defies conventional educational typologies. In alignment with its pedagogical philosophy, the design fosters a democratic, non-hierarchical, and multifunctional environment. There is no principal’s office, no bell signaling class transitions, and no rigid classroom boundaries. Instead, students and faculty share open-plan zones where learning, creativity, and community engagement coexist.

Article image
Article image
Article image

The building’s interior architecture mirrors this flexibility. Spaces such as the amphitheater serve as learning areas, performance stages, dining rooms, and play zones. The lobby invites informal gatherings, parent meetings, dance sessions, and artistic expression. Every inch of the school is utilized with a dynamic intent, ensuring that no space remains unused or static.

Article image
Article image
Article image

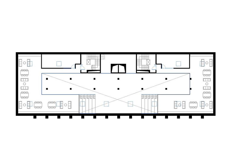
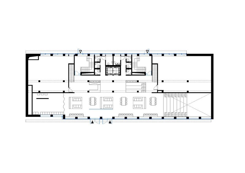
Seamless Public Integration and Community Engagement

A vital component of the redesign was to open the first floor to the public. The architects ensured that the school is not an isolated institution but an extension of the city’s urban rhythm. Sports facilities, communal halls, and the amphitheater host events, markets, performances, and seminars—blurring the line between academic and civic life. The school functions as an urban forum where learning and living are interconnected.

Article image
Article image
Article image

Industrial Aesthetics with a Contemporary Edge

The school's revitalized façades are clad in smooth and volumetric galvanized steel plates. Each panel varies slightly in texture and pattern, capturing reflections of seasonal light and surroundings. This tactile industrial finish also continues indoors, especially in the amphitheater and communal areas, reinforcing the aesthetic continuity between the school’s history and its future.

Article image
Article image

These material choices are more than stylistic—they align with the school’s belief that children thrive in environments made of authentic, tactile materials. The galvanized steel, concrete, and exposed elements offer a raw but honest context, helping children develop spatial awareness and a sense of place grounded in the real world.

Article image
Article image

Architectural and Pedagogical Synergy

Herojus School is a successful example of how adaptive reuse school architecture can harmonize built heritage with future-forward educational ideologies. Rather than erasing the past, the school celebrates it while fostering an innovative, child-centric learning culture. The architects' vision not only revitalized a forgotten structure but also positioned it as a vibrant center of academic and civic life—where students, educators, parents, and the public converge in shared growth and creativity.

Article image
Article image
Article image
Article image
Article image
Article image
Article image

All Photographs are works of Lukas Mykolaitis 

UNI Editorial

UNI Editorial

Where architecture meets innovation, through curated news, insights, and reviews from around the globe.

Share your ideas with the world

Share your ideas with the world

Write about your design process, research, or opinions. Your voice matters in the architecture community.

Comments (0)

No comments yet. Be the first to comment!

Similar Reads

You might also enjoy these articles

publishedNews3 weeks ago
Bamboo Housing Challenge 2026: Design Affordable, Sustainable Homes Using Bamboo
publishedNews1 year ago
Computational Design & Education: Beegraphy Design Awards Introduces 7th Category (Featuring Jiyun's Innovative Approach)
publishedNews1 year ago
From Parametric Lighting to Urban Furniture: Join the 2nd Workshop in Beegraphy’s Computational Design Series
publishedNews2 years ago
Introducing Sphere by UNI: Pioneering a New Era in AEC Industry

Explore Architecture Competitions

Discover active competitions in this discipline

UNI Editorial
Search in