Berners and Wells Building Architecture: Revitalizing Fitzrovia with Modern Mixed-Use Design
The Berners and Wells Building in Fitzrovia combines historic preservation with modern mixed-use architecture, redefining urban connectivity.
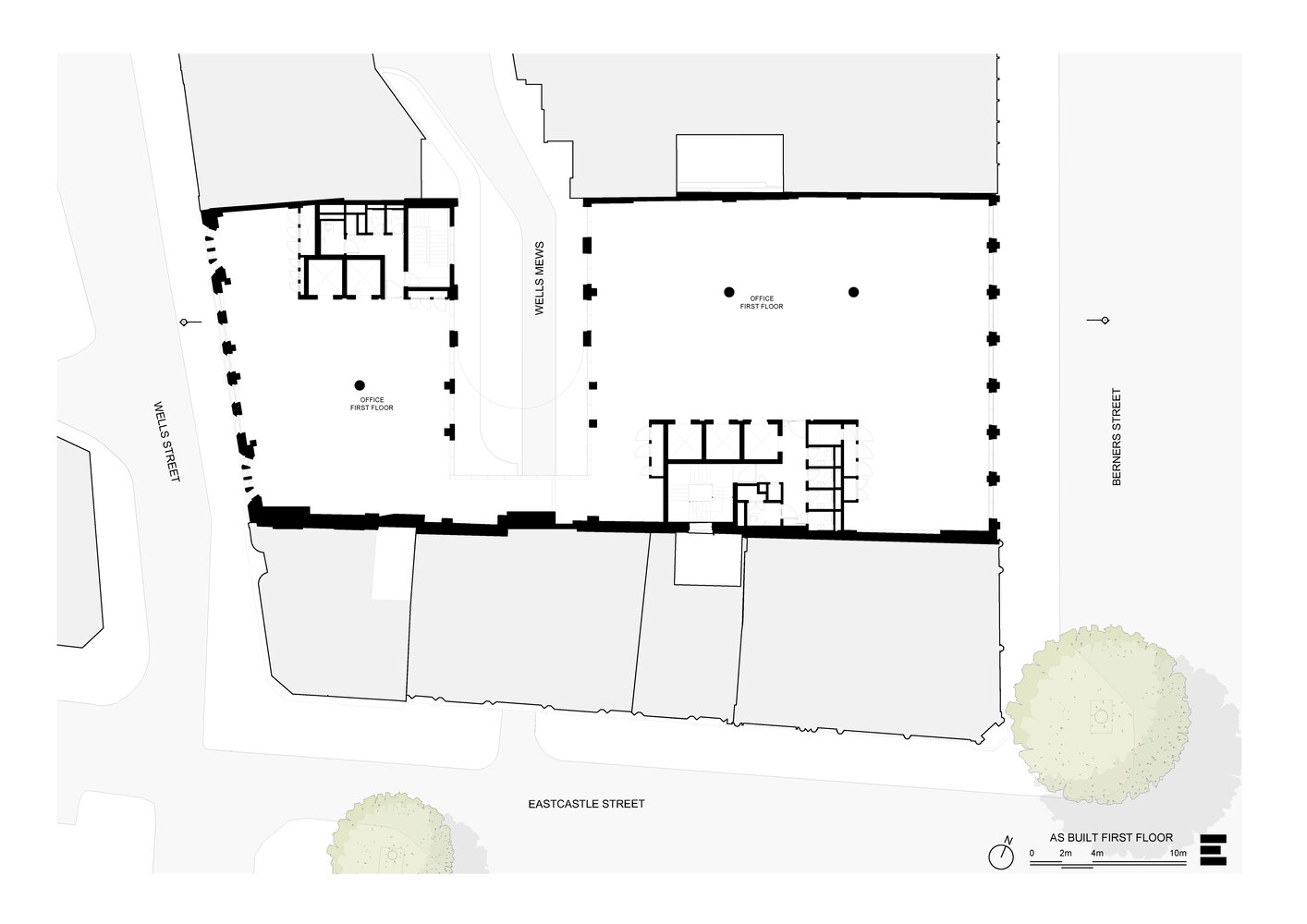
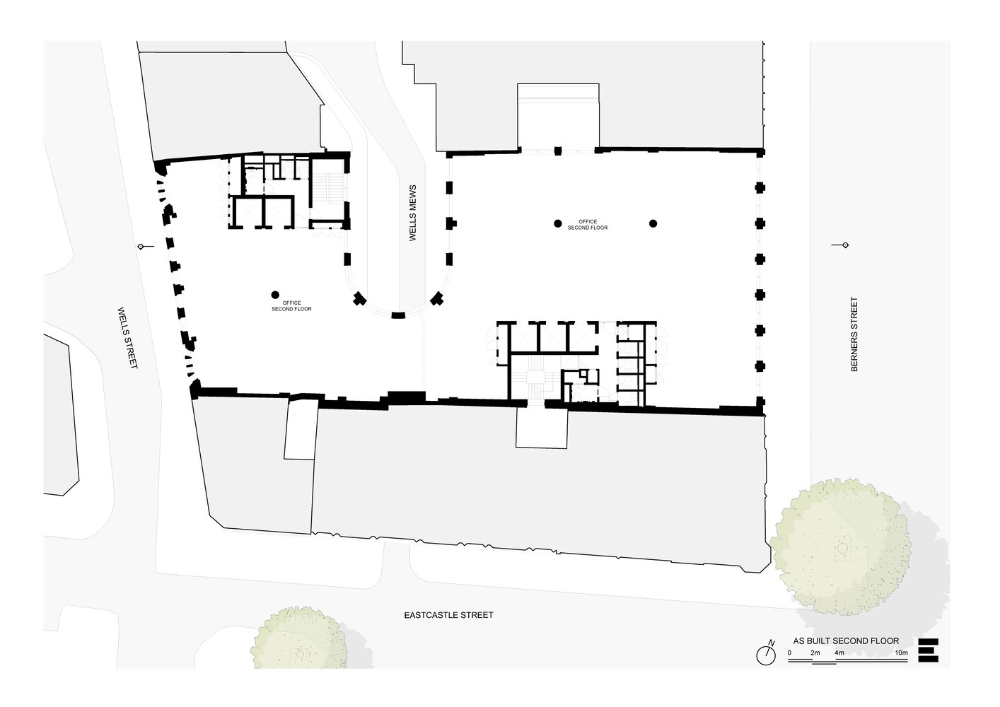
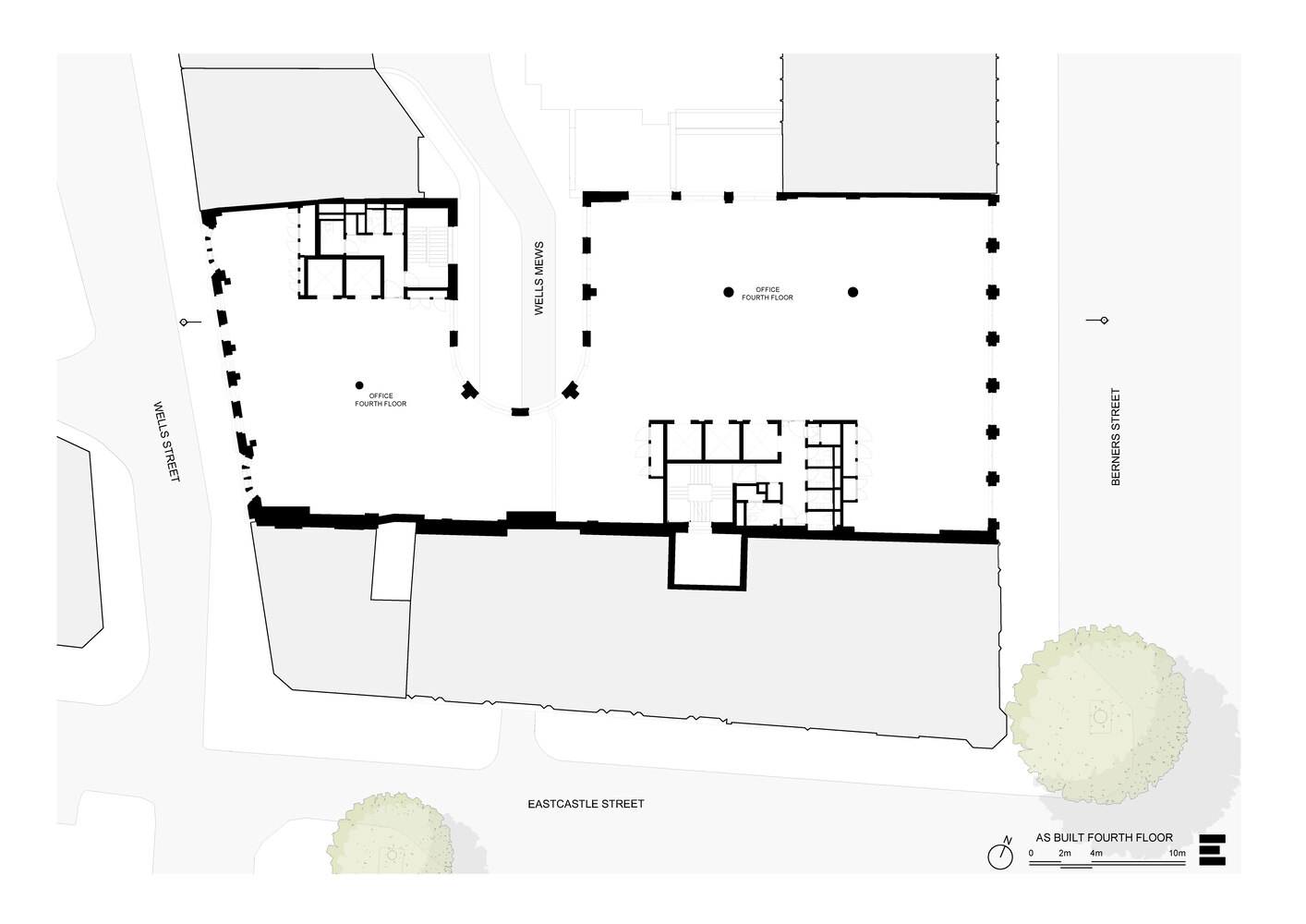
The Berners and Wells Building, designed by Emrys Architects, represents a bold and innovative step forward in mixed-use architecture. Located in Fitzrovia, central London, this ambitious development merges over 7,000 square meters of flexible office and retail space with significant enhancements to the surrounding public realm. Completed in 2023, the project exemplifies how modern design can respect and integrate into a historic urban context while offering futureproofed functionality.




A Blend of Heritage and Contemporary Design
The building’s design thoughtfully balances contemporary architectural flair with the historic character of Fitzrovia. A key feature is the retention and extension of the Edwardian façade on Wells Street, a vital aspect of the area's conservation appeal. The fourth floor, raised in matching brickwork and flanked by rebuilt chimneys, aligns seamlessly with the original structure, creating a cohesive aesthetic. The upper levels feature a lightweight glass and bronze envelope that steps back to respect the neighboring townscape, forming roof terraces that offer informal meeting spaces.




The striking colonnade of white faience columns, accented with teal-glazed brick detailing, grounds the structure, creating a grand entrance that enhances the street's visual appeal. These elongated proportions echo the nearby Grade II* listed Sanderson Hotel, fostering architectural harmony.



Public Art Integration
Emrys Architects collaborated with renowned artist Tess Jaray to incorporate public art into the building’s design. Tess’s work includes intricate patterns adorning the curved façade and entranceway roundels, adding a layer of cultural richness to the project. This integration of art into architecture elevates the building’s significance as a landmark destination within Fitzrovia.



Urban Permeability and Enhanced Public Spaces
The project’s design approach prioritizes urban permeability and pedestrian engagement. The entrance from Eastcastle Street into Wells Mews has been widened, while the building line has been adjusted to create a broader and more inviting space. These changes dramatically improve visibility and accessibility, setting the foundation for Castle Court as a vibrant public destination. Inspired by successful urban models like St. Christopher's Place, the design reimagines Wells Mews as a dynamic space for interaction and connectivity.



Flexible Mixed-Use Spaces
The Berners and Wells Building offers flexible spaces tailored to meet modern demands for sustainability, comfort, and functionality. The lower two floors feature adaptable retail units that activate the street, while the upper levels provide user-oriented office accommodations. The simultaneous development across two urban blocks enabled the architects to bridge Wells Mews, linking the buildings and enriching the area with new opportunities for interaction and engagement.



Sustainability and Craftsmanship
Every aspect of the design emphasizes sustainability and meticulous craftsmanship. The use of materials like Portland stone and teal-glazed brick not only grounds the structure but also complements its historic surroundings. By blending traditional elements with modern techniques, the design creates a space that feels timeless yet forward-looking.







A Futureproofed Icon
The Berners and Wells Building showcases Emrys Architects’ ability to navigate complex urban challenges while delivering innovative, sustainable solutions. Its integration of modern design, public art, and flexible mixed-use spaces creates a landmark that redefines the possibilities of urban architecture. The project not only revitalizes Fitzrovia’s streetscape but also sets a benchmark for future developments in central London.






All Photographs are work of Alan Williams
Popular Articles
Popular articles from the community
Gads Hill Early Learning Center by JGMA: Adaptive Reuse Shaping Community-Focused Educational Architecture
Adaptive reuse transforms fragmented structure into vibrant early learning center with playful façade, natural light, and community-focused sustainable design.
Inverted Architecture Installation by Studio Link-Arc: Exploring the Intersection of Architecture and Living Organisms
Inverted Architecture Installation by Studio Link-Arc blends mycelium, sustainability, inverted design, ecological cycles, and urban adaptive architecture in Shenzhen.
Solar Steam: A Climate-Responsive Architecture That Redefines the Monument
A climate-responsive memorial architecture that transforms heat, decay, and time into a living system reflecting humanity’s ecological impact.
Similar Reads
You might also enjoy these articles
The Ken Roberts Memorial Delineation Competition (Krob)
As the most senior architectural drawing competition currently in operation anywhere in the world, it draws hundreds of entries each year, awarding the very best submissions in a series of medium-based categories.
Waterfront Redevelopment and Urban Revitalization in Mumbai: Forging a New Dawn for Darukhana
A transformative waterfront redevelopment project reimagining Darukhana’s shipbreaking heritage into an inclusive urban future.
OUT-OF-MAP: A Call for Postcards on Feminist Narratives of Public Space
Rhizoma Design and Research Lab invites artists, designers, architects, researchers, and students to reflect on how feminist perspectives can reshape public space. Selected works will be exhibited in Barcelona, October 2026. Submissions open until 15 April 2026.
Documentation Work on Buddhist Wooden Temple
Architectural syncretism and cultural hybridity: A comparative study of the Buddhist temples in Chattogram Hill tracks
Explore Architecture Competitions
Discover active competitions in this discipline
The International Standard for Design Portfolios
The Global Benchmark for Architecture Dissertation Awards
The Global Benchmark for Graduation Excellence
Challenge to reimagine the Iron Throne
Comments (0)
Please login or sign up to add comments
No comments yet. Be the first to comment!