Chaoreum Hair Salon: Redefining Modern Salon Interior Design in Busan
Chaoreum Hair Salon in Busan redefines modern salon interior design with industrial materials, soft tones, and natural light integration.
Located in the vibrant neighborhood of Jeonpo-dong, Busan, Chaoreum Hair Salon designed by HAhi Studio represents a new direction in modern salon interior design. Moving beyond conventional beauty salons, this project creates a space that enhances personal experiences while embracing the unique identity of its urban surroundings. The interior merges industrial elements with soft aesthetic touches, reflecting the evolution of contemporary salon spaces.

A Fusion of Industrial and Trendy Design
Chaoreum Hair Salon stands at the intersection of Busan’s industrial character and its emerging cultural scene. Surrounded by a blend of hardware stores and fashionable retail spaces, the salon's design draws inspiration from its eclectic environment. HAhi Studio embraced this context by using raw materials, metal accents, and bold structural forms while softening the ambiance with neutral tones and natural light.

The design language incorporates vertical and horizontal lines to create a streamlined visual effect. Thin furniture profiles and custom fixtures made from black glass and metal channels enhance the sense of openness, ensuring the interior does not feel heavy or confined. These elements reflect the modern salon interior design philosophy, which emphasizes both style and functionality.

Material Palette Balancing Warmth and Coolness
The interior materials reflect a thoughtful blend of contrasts. Vintage-style flooring and walls ground the space with texture, while trendy tiles and steel elements introduce a contemporary edge. The color palette, composed of gray and ivory tones, achieves a careful balance—avoiding excessive warmth while preventing the coolness of industrial materials from becoming too stark.
Reflective surfaces, including mirrors and black glass, amplify the natural light, enhancing the perception of spaciousness. These choices are central to modern salon interior design, where the goal is to create an environment that is both visually appealing and welcoming.

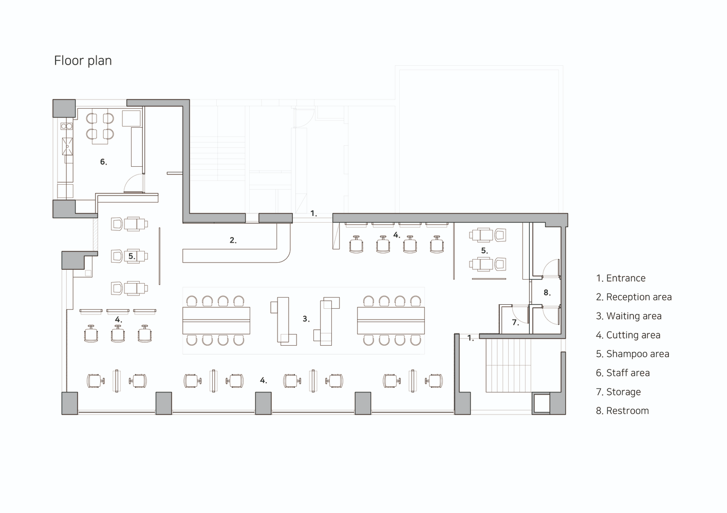
Spatial Layout for an Immersive Experience
The salon’s layout is carefully orchestrated to provide a seamless customer journey. Upon entering, guests are greeted by the waiting area, which is integrated into the central treatment space. This approach fosters fluid movement through the interior, encouraging engagement with the design elements at every step.

A defining feature is the large pillar in the treatment area, created by merging system channels with hairline panels. This structural element not only aligns with the vertical grid aesthetic but also anchors the open-plan layout. The grid-patterned ceiling, featuring exposed concrete and lighting rails, echoes the clean lines of the furniture and further unifies the space.

Integrating Nature with Urban Aesthetics
Natural elements play a subtle yet crucial role in Chaoreum Hair Salon’s design. Large windows replace the heavy frames of the previous structure, drawing in daylight and offering views of the bustling streetscape. This visual connection to the outside world enriches the salon experience, blending raw industrial materials with the softness of natural light.

By integrating nature into the design, HAhi Studio achieves one of the key goals of modern salon interior design—creating a sensory experience that enhances customer comfort and satisfaction.

Reflecting the Cultural Energy of Jeonpo-dong
Jeonpo-dong is a district known for its dynamic blend of old and new, attracting the younger MZ generation with its evolving aesthetic landscape. Chaoreum Hair Salon captures this cultural essence, fusing industrial hardware influences with cutting-edge design trends. The salon’s bold yet refined atmosphere reflects the neighborhood’s vibrancy, positioning it as both a beauty destination and a design landmark.

A Benchmark for Modern Salon Interior Design
Chaoreum Hair Salon by HAhi Studio exemplifies the future of modern salon interior design. By integrating industrial materials with soft design elements and natural light, the space achieves a perfect balance between aesthetics and functionality. This project redefines the salon experience, transforming it into an environment that uplifts both personal style and architectural expression. As beauty spaces evolve to prioritize individuality and sensory engagement, Chaoreum Hair Salon stands as a blueprint for innovative interior design in the wellness sector.

All Photographs are works of Taehun Gwon
Popular Articles
Popular articles from the community
Atelier Macri Concept Store Interior Design by CASE-REAL
Atelier Macri store features a "ko" counter, walnut wood details, cork displays, blending retail, gallery, and seamless customer experiences.
Solar Steam: A Climate-Responsive Architecture That Redefines the Monument
A climate-responsive memorial architecture that transforms heat, decay, and time into a living system reflecting humanity’s ecological impact.
Inverted Architecture Installation by Studio Link-Arc: Exploring the Intersection of Architecture and Living Organisms
Inverted Architecture Installation by Studio Link-Arc blends mycelium, sustainability, inverted design, ecological cycles, and urban adaptive architecture in Shenzhen.
Fifth NRE Jazz Club – De Bever Architecten: Eindhoven’s Revitalized Cultural Hub
Historic gas factory transformed into Fifth NRE Jazz Club blending modern sustainability, jazz culture, dining, and heritage architecture seamlessly.
Similar Reads
You might also enjoy these articles
The Ken Roberts Memorial Delineation Competition (Krob)
As the most senior architectural drawing competition currently in operation anywhere in the world, it draws hundreds of entries each year, awarding the very best submissions in a series of medium-based categories.
Waterfront Redevelopment and Urban Revitalization in Mumbai: Forging a New Dawn for Darukhana
A transformative waterfront redevelopment project reimagining Darukhana’s shipbreaking heritage into an inclusive urban future.
OUT-OF-MAP: A Call for Postcards on Feminist Narratives of Public Space
Rhizoma Design and Research Lab invites artists, designers, architects, researchers, and students to reflect on how feminist perspectives can reshape public space. Selected works will be exhibited in Barcelona, October 2026. Submissions open until 15 April 2026.
Documentation Work on Buddhist Wooden Temple
Architectural syncretism and cultural hybridity: A comparative study of the Buddhist temples in Chattogram Hill tracks
Explore Architecture Competitions
Discover active competitions in this discipline
The International Standard for Design Portfolios
The Global Benchmark for Architecture Dissertation Awards
The Global Benchmark for Graduation Excellence
Challenge to reimagine the Iron Throne
Comments (0)
Please login or sign up to add comments
No comments yet. Be the first to comment!