Cork-Clad Sustainable House in Creixell by Alventosa Morell Arquitectes
A cork-clad sustainable house in Spain showcases minimalist living, eco-friendly design, and intelligent spatial planning by Alventosa Morell Arquitectes.
A Compact, Eco-Conscious Design Rooted in Simplicity
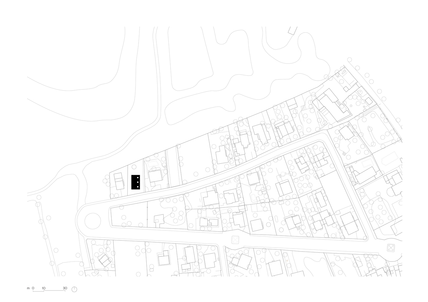
In the quiet town of Creixell, Spain, Casa CG by Alventosa Morell Arquitectes redefines what it means to downsize with dignity. Designed for a couple seeking a lifestyle change, this 2130 m² home reflects a conscious departure from the excesses of their previous residence. The clients desired a smaller, more manageable space that remained visually engaging, energy-efficient, and affordable. In response, the architects created a minimalist structure with a rectangular footprint and an asymmetrical roof, wrapped entirely in natural cork—making it both sustainable and contextually responsive.



Thermal Performance and Material Innovation
The defining element of Casa CG is its cork cladding, which serves multiple functions. Beyond lending the house a warm, earthy aesthetic that harmonizes with the surrounding pine forest, cork significantly enhances thermal inertia. This natural material acts as a highly effective insulator, helping the house maintain a stable internal temperature while minimizing energy consumption. The choice of cork aligns perfectly with the project’s modest budget and ecological ethos, offering an accessible yet high-performance alternative to conventional cladding.



Intelligent Use of Volume and Light
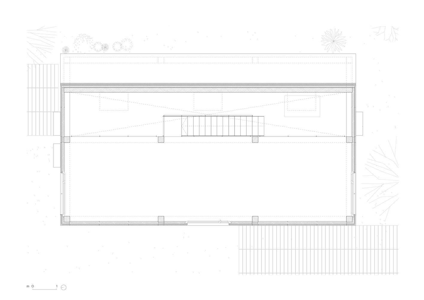
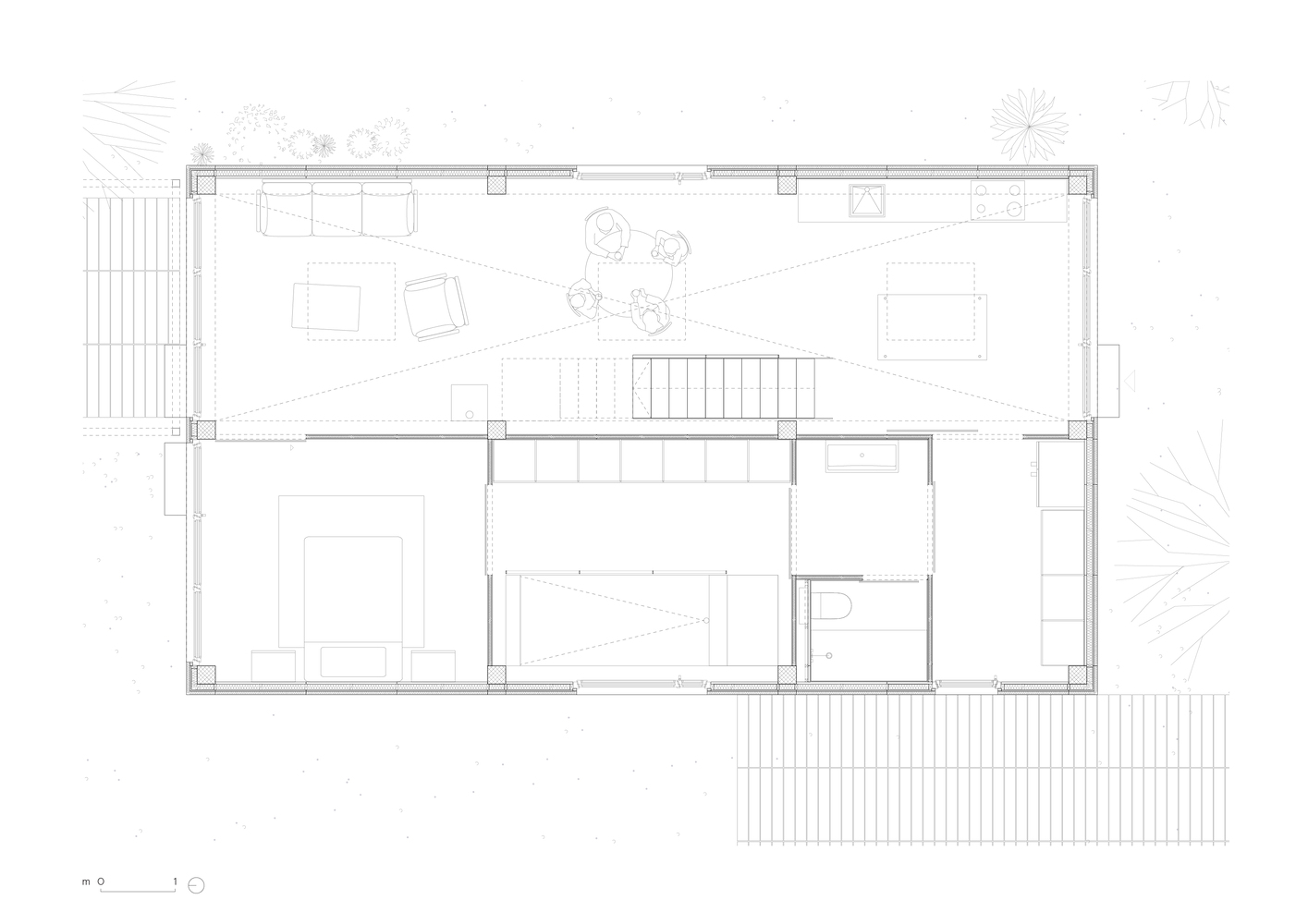
Casa CG’s architectural intelligence lies in its compact but layered use of space. By raising only one side of the building to include a mezzanine, the design gains functional area at minimal additional cost. This gesture creates a multi-purpose loft while maintaining a low profile that complements the landscape. The ground floor is fully open-plan, with the kitchen, dining, and living areas oriented to maximize natural light through windows on three sides. Beneath the mezzanine, the bedroom and bathroom occupy a quieter, more private zone, promoting spatial balance between social and personal functions.



A Harmonious Interior Strategy
The house’s interior is defined by restrained materiality. Thin wooden partitions soften the structural presence of concrete, maintaining a visual and tactile warmth that makes the home feel both welcoming and modern. This strategic combination of raw and refined materials enhances the architectural dialogue between permanence and comfort. Every centimeter is thoughtfully utilized, creating a seamless flow between rooms while avoiding any sense of confinement.



Contextual Integration and Sustainable Living
From a distance, Casa CG almost disappears into its surroundings. Its cork-clad façade mirrors the rough texture and muted tones of the neighboring forest, making the home feel as though it grew out of the landscape rather than being imposed upon it. This visual harmony is not just an aesthetic achievement—it is a statement about building responsibly within nature. The project exemplifies how small-scale housing can integrate sustainability, functionality, and design quality without sacrificing character.



An Architectural Model for Future Downsizing
Casa CG stands as a powerful model for sustainable living in compact dwellings. Alventosa Morell Arquitectes demonstrate how creative planning, climate-conscious material choices, and volumetric nuance can transform a modest brief into an elegant architectural solution. As urban populations grow and ecological concerns intensify, cork-clad sustainable houses like Casa CG offer an inspiring template for responsible residential architecture in the 21st century.



Popular Articles
Popular articles from the community
Solar Steam: A Climate-Responsive Architecture That Redefines the Monument
A climate-responsive memorial architecture that transforms heat, decay, and time into a living system reflecting humanity’s ecological impact.
Split House: A Compact Urban Home Blending Privacy, Light, and Flexible Living in Japan
Compact Japanese home featuring DOMA space, flexible café potential, passive lighting, privacy zoning, and sustainable urban living design.
Fifth NRE Jazz Club – De Bever Architecten: Eindhoven’s Revitalized Cultural Hub
Historic gas factory transformed into Fifth NRE Jazz Club blending modern sustainability, jazz culture, dining, and heritage architecture seamlessly.
Similar Reads
You might also enjoy these articles
Bamboo Housing Challenge 2026: Design Affordable, Sustainable Homes Using Bamboo
An international design competition by Bamboo U and IBUKU inviting architects and designers to reimagine affordable housing using bamboo — with the winning design built full-scale in Bali.
Computational Design & Education: Beegraphy Design Awards Introduces 7th Category (Featuring Jiyun's Innovative Approach)
Dive into Beegraphy’s 7th Design Awards category, where computational design meets education to create immersive, interactive learning tools, inspired by Jiyun’s work.
From Parametric Lighting to Urban Furniture: Join the 2nd Workshop in Beegraphy’s Computational Design Series
Dive into Cutting-Edge Design Techniques and Practical Applications with Industry Experts
Explore Architecture Competitions
Discover active competitions in this discipline
The International Standard for Design Portfolios
The Global Benchmark for Architecture Dissertation Awards
The Global Benchmark for Graduation Excellence
Challenge to reimagine the Iron Throne
Comments (0)
Please login or sign up to add comments
No comments yet. Be the first to comment!