Discover the Future of Sustainable Architecture with YANMAR TOKYO Commercial Building
Explore YANMAR TOKYO Commercial Building's sustainable design, blending maritime aesthetics, green spaces, and Japanese cultural homage.
The innovative YANMAR TOKYO Commercial and Office Building, a beacon of sustainable design seamlessly integrated with corporate aesthetics designed by Nikken Sekkei. Positioned on the east side of Tokyo Station, this architectural marvel acts as a pivotal branding hub for Yanmar, a global technology leader in "food production" and "energy conversion."




Exploring Maritime-inspired Design
Unveil the unique ship-like design of YANMAR TOKYO, paying homage to Yaesu's historic canal and Yanmar's maritime legacy. The structure, resembling a bow and sail, sets a distinctive tone for the corporate landscape.




Green Oasis Amidst Tokyo's Bustle
Delve into the heart of Tokyo's bustling environment as we uncover the large-scale greenery integrated into YANMAR TOKYO's exterior. Explore how the hydroponic system and Circadian LED lighting contribute to a biophilic public space, creating a serene oasis within the urban sprawl.




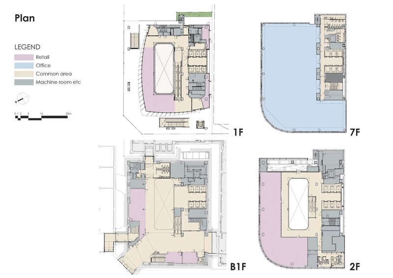
Japanese Culture Celebration
Embark on a cultural journey through the first-floor gallery and second-floor restaurant, dedicated to celebrating Japanese culture, especially its rich history of rice farming. Understand how YANMAR TOKYO transforms into a living showroom, showcasing cutting-edge technologies and energy-efficient products.






Setting New Standards in Corporate Spaces
Unravel the strategic positioning of YANMAR TOKYO as it sets new standards for office buildings in front of Tokyo Station. Learn about its three-story atrium, the use of natural materials, and a seismic isolation structure that redefine corporate spaces. Witness the integration of environmentally conscious features, including wall solar panels, wind power generation, and a natural ventilation system.






Join the Journey: Join us in this exploration of the YANMAR TOKYO Commercial Building, where sustainable architecture meets corporate innovation, shaping the future of urban landscapes. Discover the harmony of eco-friendly practices and cutting-edge design principles that define the essence of this iconic office building.
All Photographs are the work of Kawasumi・Kobayashi Kenji Photograph Office
Popular Articles
Popular articles from the community
Atelier Macri Concept Store Interior Design by CASE-REAL
Atelier Macri store features a "ko" counter, walnut wood details, cork displays, blending retail, gallery, and seamless customer experiences.
Louis Malle Cinema: A Limestone Cultural Landmark Revitalizing Community Life in Prayssac
Limestone cinema extension with public forecourt, blending heritage and modern design to create flexible cultural spaces and strengthen community interaction.
The Ken Roberts Memorial Delineation Competition (Krob)
As the most senior architectural drawing competition currently in operation anywhere in the world, it draws hundreds of entries each year, awarding the very best submissions in a series of medium-based categories.
An Miên Lumière Cafe by xưởng xép, Ho Chi Minh City, Vietnam
An industrial-inspired café where layered steel and warm light create a dynamic, immersive environment shaped by reflection, depth, and perception.
Similar Reads
You might also enjoy these articles
Bamboo Housing Challenge 2026: Design Affordable, Sustainable Homes Using Bamboo
An international design competition by Bamboo U and IBUKU inviting architects and designers to reimagine affordable housing using bamboo — with the winning design built full-scale in Bali.
Computational Design & Education: Beegraphy Design Awards Introduces 7th Category (Featuring Jiyun's Innovative Approach)
Dive into Beegraphy’s 7th Design Awards category, where computational design meets education to create immersive, interactive learning tools, inspired by Jiyun’s work.
From Parametric Lighting to Urban Furniture: Join the 2nd Workshop in Beegraphy’s Computational Design Series
Dive into Cutting-Edge Design Techniques and Practical Applications with Industry Experts
Introducing Sphere by UNI: Pioneering a New Era in AEC Industry
Unlocking Global Potential with BIM and Agile Management
Explore Architecture Competitions
Discover active competitions in this discipline
The International Standard for Design Portfolios
The Global Benchmark for Architecture Dissertation Awards
The Global Benchmark for Graduation Excellence
Challenge to reimagine the Iron Throne
Comments (0)
Please login or sign up to add comments
No comments yet. Be the first to comment!