Exploring Modern Japanese House Design: A Case Study of Stage in Hayama by Takanori Ineyama Architects
Explore the Stage in Hayama, a modern Japanese house that blends traditional design with innovative architecture and natural scenery.
Japanese architecture has long been admired for its emphasis on simplicity, natural materials, and integration with nature. Modern Japanese house design continues to evolve these traditions, merging them with contemporary needs and technologies. One striking example of this evolution is the Stage in Hayama, a residential project by Takanori Ineyama Architects located in Hayama-cho, Kanagawa Prefecture.



Unique Features of Stage in Hayama
Architectural Concept and Design
The Stage in Hayama was conceived as a family home that enjoys the serenity and beauty of its garden-rich environment. Positioned on the northern part of the site to avoid a cliff on the south, the building utilizes its location to maximize natural lighting and views. The residence is a testament to the thoughtful integration of building and landscape, a hallmark of modern Japanese house design.



Structural Innovations
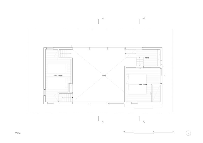
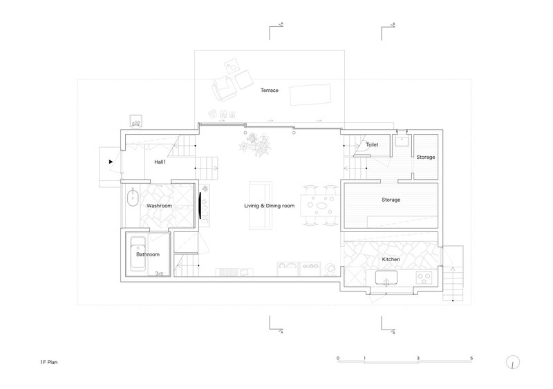
Central to the design of the Stage in Hayama are its living spaces, elevated one meter above the first floor, creating a layered effect that enhances the interior's connection to the outdoors. This arrangement allows for expansive views and sunlight penetration, thanks to a towering 4.5-meter high window facade. Structural integrity is maintained by wooden main structures supported by steel columns and beams, showcasing a blend of traditional and modern materials.






Interior Layout and Materials
The interior of the Stage in Hayama reflects a minimalist aesthetic with functional spaces arranged around the central living area. The use of different materials in wall finishes provides varying atmospheres throughout the home, adapting to the orientation of furniture and the natural light’s play across surfaces.






Integration with Nature
A key feature of modern Japanese house design is its seamless integration with the natural surroundings. The Stage in Hayama exemplifies this with its garden-facing design and large windows that invite the outside in. The thoughtful positioning against a backdrop of mature trees uses the concept of 'shakkei' or borrowed scenery, enhancing the home's aesthetic and emotional appeal.



The Future of Modern Japanese House Design
The Stage in Hayama by Takanori Ineyama Architects is a beacon of modern Japanese house design, offering insights into how contemporary architecture in Japan continues to evolve while respecting traditional values. This project not only serves its occupants by creating a functional and serene living space but also pushes the boundaries of design aesthetics in residential architecture.






All photographs are work of Koichi Torimura
Popular Articles
Popular articles from the community
Atelier Macri Concept Store Interior Design by CASE-REAL
Atelier Macri store features a "ko" counter, walnut wood details, cork displays, blending retail, gallery, and seamless customer experiences.
Flamboyant House by Juliana Camargo + Prumo Projetos
Modern Brazilian house integrating existing tree, pool, and volumes with glass, wood, and transitional spaces blending interior, exterior, and landscape seamlessly.
Solar Steam: A Climate-Responsive Architecture That Redefines the Monument
A climate-responsive memorial architecture that transforms heat, decay, and time into a living system reflecting humanity’s ecological impact.
A Contemporary Take on Iranian Residential Architecture
A modern interior design in Mashhad that reinterprets brick, light, and spatial flow to create a warm, contemporary residential architecture.
Similar Reads
You might also enjoy these articles
Bamboo Housing Challenge 2026: Design Affordable, Sustainable Homes Using Bamboo
An international design competition by Bamboo U and IBUKU inviting architects and designers to reimagine affordable housing using bamboo — with the winning design built full-scale in Bali.
Computational Design & Education: Beegraphy Design Awards Introduces 7th Category (Featuring Jiyun's Innovative Approach)
Dive into Beegraphy’s 7th Design Awards category, where computational design meets education to create immersive, interactive learning tools, inspired by Jiyun’s work.
From Parametric Lighting to Urban Furniture: Join the 2nd Workshop in Beegraphy’s Computational Design Series
Dive into Cutting-Edge Design Techniques and Practical Applications with Industry Experts
Introducing Sphere by UNI: Pioneering a New Era in AEC Industry
Unlocking Global Potential with BIM and Agile Management
Explore Architecture Competitions
Discover active competitions in this discipline
The International Standard for Design Portfolios
The Global Benchmark for Architecture Dissertation Awards
The Global Benchmark for Graduation Excellence
Challenge to reimagine the Iron Throne
Comments (0)
Please login or sign up to add comments
No comments yet. Be the first to comment!