FW JI·The Rural Memory Museum: Rural Architecture and Cultural Preservation in Huangshan
FW JI·The Rural Memory Museum integrates rural architecture and cultural preservation, transforming a village space into a community-driven cultural landmark.
Revitalizing Tradition Through Architecture
FW JI·The Rural Memory Museum, designed by IARA, is a landmark project that blends rural architecture and cultural preservation in the heart of Fengwu Village, Yixian County, Huangshan. As part of the "IARA Rural Revitalization – Fengwu Ji" initiative, the project reinterprets local history by transforming an underutilized village space into a vibrant cultural hub. This project stands as a modern reimagining of a traditional ancestral hall, providing both a community gathering space and a repository of rural heritage.




Site Context and Historical Continuity
The museum occupies a site once home to an old residence, which later became a village square. However, due to its incompatibility with local climatic conditions, the square saw minimal use. Rather than introducing a completely new structure, the design respects historical imprints by constructing the museum on the foundations of the original house. This approach not only honors the past but also seamlessly integrates the museum into the rural fabric, maintaining the continuity of the village’s spatial identity.





Architectural Approach: Merging Old and New
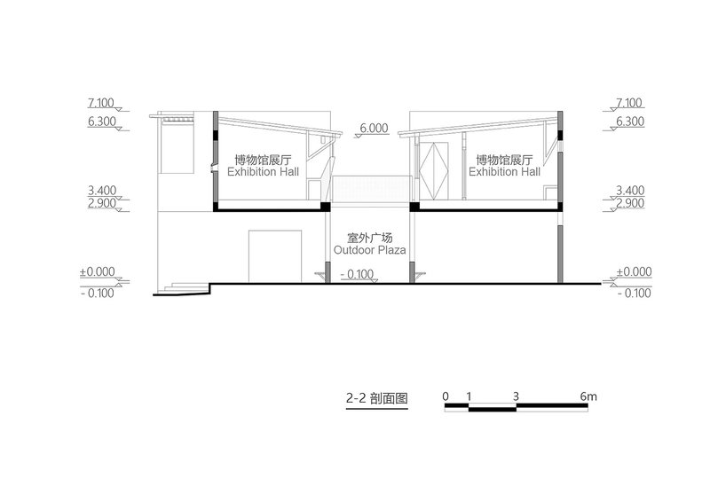
The design strategy of FW JI·The Rural Memory Museum employs a spatial weaving technique that interlaces contemporary architectural language with traditional materials. The structure is elevated, with the museum occupying the second floor while the ground level remains open, providing a semi-outdoor communal area that shelters villagers from wind and rain. This adaptive reuse of space enhances the village’s social life, reinforcing its role as a cultural and spiritual center.



The museum follows the traditional Hui-style courtyard house concept, enclosing an inner courtyard that fosters natural ventilation and daylighting. Grey tiles, white walls, and wooden structures reference the regional architectural vernacular, but with a modern twist. The white walls are crafted using a unique blend of local river sand, cement, and lime, hand-washed to achieve a weathered texture that reflects the passage of time. Wooden panels undergo a surface-charring process to create a carbonized layer, enhancing both durability and fire resistance while giving the structure an aged aesthetic.




Light and Space: A Symbolic Narrative
Natural light plays a crucial role in shaping the museum’s atmosphere. The second-floor exhibition space, known as the "Rural Memory Hall," features hidden skylights that introduce diffused lighting, creating a tranquil and introspective ambiance. The exhibition, titled "Poetry of Life," weaves together personal artifacts and villagers’ stories, structured around three themes: "Birth," "Growth," and "Inheritance." This narrative approach transforms the space into an immersive storytelling environment, reconstructing the village’s history through tangible memories.


By juxtaposing light and shadow, openness and enclosure, the museum evokes an emotional connection to rural life. The architectural composition serves not only as a physical space but also as a metaphorical bridge linking past and present, individual and collective memory.

Community Integration and Social Impact
Unlike conventional museums that focus on grand historical narratives, FW JI·The Rural Memory Museum prioritizes the daily lives of ordinary villagers. It functions as a dynamic public space where cultural activities, communal gatherings, weddings, and funerals take place. Even before construction was completed, villagers had spontaneously used the site for traditional feasts, reaffirming its role as a living part of the community.


The museum’s inauguration itself was a celebration of collective memory, with villagers participating in a banquet as the opening event. This grassroots involvement underscores the project’s success in fostering a sense of belonging and continuity. More than just an architectural intervention, the museum embodies the evolving cultural identity of Fengwu Village, preserving traditions while embracing the transformations of modern rural life.


A Model for Rural Cultural Preservation
FW JI·The Rural Memory Museum exemplifies how architecture can serve as a medium for cultural preservation and rural revitalization. By respecting historical foundations, utilizing locally sourced materials, and fostering communal engagement, the project demonstrates the potential of design to reinforce social cohesion in rural contexts. This harmonious blend of tradition and innovation ensures that while old memories are honored, new narratives continue to unfold, making the museum an enduring testament to the resilience and beauty of rural heritage.








All Photographs are works of Huien Song, Yi Huang
Popular Articles
Popular articles from the community
Rede Arquitetos Builds an Open-Air School in Fortaleza That Doubles as a Neighborhood Living Room
Educar II SESC-CE folds sports, dance, and community gathering into a courtyard campus wrapped in mesh and tropical color.
Marvila Apartment Renovation in Lisbon: A Bright Minimalist Attic Transformation by KEMA Studio
Bright attic transformed into minimalist Lisbon apartment with skylights, sustainable materials, open plan layout, and industrial-inspired interior design elements.
Filtering Space: A Gradual Spatial Experience
From urban intensity to spatial calm.
Alton Cliff House: A Harmonious Retreat by f2a Architecture in Lake Country, Canada
Alton Cliff House blends corten steel, prefabrication, and sustainable design, creating a luxurious, energy-efficient retreat perched on Canadian cliffs.
Similar Reads
You might also enjoy these articles
Filtering Space: A Gradual Spatial Experience
From urban intensity to spatial calm.
The Ken Roberts Memorial Delineation Competition (Krob)
As the most senior architectural drawing competition currently in operation anywhere in the world, it draws hundreds of entries each year, awarding the very best submissions in a series of medium-based categories.
Waterfront Redevelopment and Urban Revitalization in Mumbai: Forging a New Dawn for Darukhana
A transformative waterfront redevelopment project reimagining Darukhana’s shipbreaking heritage into an inclusive urban future.
OUT-OF-MAP: A Call for Postcards on Feminist Narratives of Public Space
Rhizoma Design and Research Lab invites artists, designers, architects, researchers, and students to reflect on how feminist perspectives can reshape public space. Selected works will be exhibited in Barcelona, October 2026. Submissions open until 15 April 2026.
Explore Architecture Competitions
Discover active competitions in this discipline
The International Standard for Design Portfolios
The Global Benchmark for Architecture Dissertation Awards
The Global Benchmark for Graduation Excellence
Challenge to reimagine the Iron Throne
Comments (0)
Please login or sign up to add comments
No comments yet. Be the first to comment!