Hangzhou Wulin Art Museum: A New Epoch in Cultural Complex Urban IntegrationHangzhou Wulin Art Museum: A New Epoch in Cultural Complex Urban Integration

Hangzhou Wulin Art Museum: A New Epoch in Cultural Complex Urban Integration

UNI Editorial
UNI Editorial published Story under Architecture on

Nestled in the heart of Hangzhou’s Gongshu District, the Hangzhou Wulin Art Museum by CCTN Design emerges as a paragon of cultural complex urban integration. Spanning an impressive area of 489054 m² and completed in 2023, this architectural marvel represents a pivotal moment in blending cultural spaces with the pulsating life of the city.

Article image
Article image
Article image
Article image
Article image

Designing for Urban Synergy

Architectural Dialogue with the City

Surrounded by a vibrant tapestry of offices, commercial spaces, and residences, the museum is strategically situated to enrich Hangzhou's urban landscape. The architects, led by Youfen Wang, envisioned a structure that not only serves as a bastion for art and culture but also actively engages with its metropolitan surroundings to enhance urban vitality.

Article image
Article image
Article image
Article image
Article image

Strategic Layout for Maximum Engagement

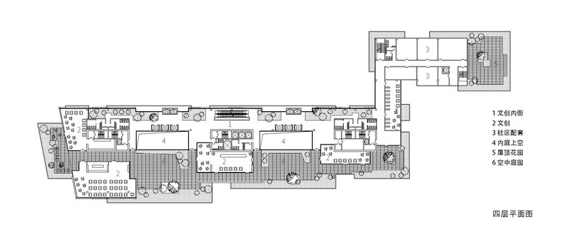
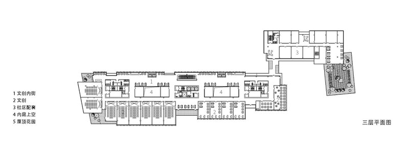
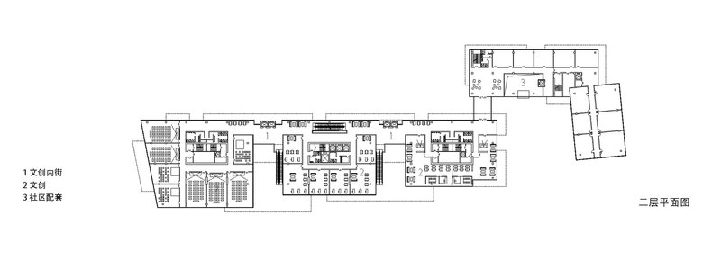
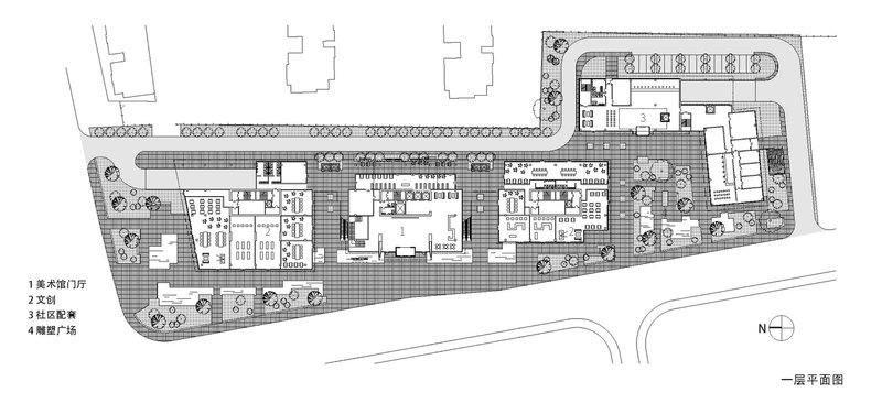
The museum’s design cleverly addresses the challenges posed by its elongated site. By allocating the main building mass towards the north and gradually tapering towards the south, CCTN Design ensures spatial harmony with nearby high-rise structures while fostering an inviting street-level environment. This thoughtful zoning nurtures interactions with local community services and green spaces, promoting a seamless blend of cultural and daily urban activities.

Article image
Article image
Article image
Article image
Article image

Fostering Public Spaces and Accessibility

Bridging Art with Daily Urban Life

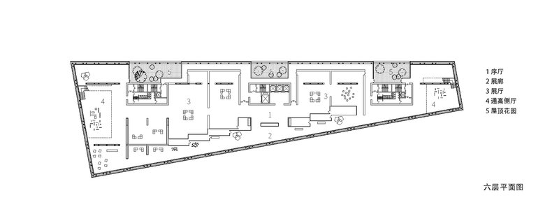
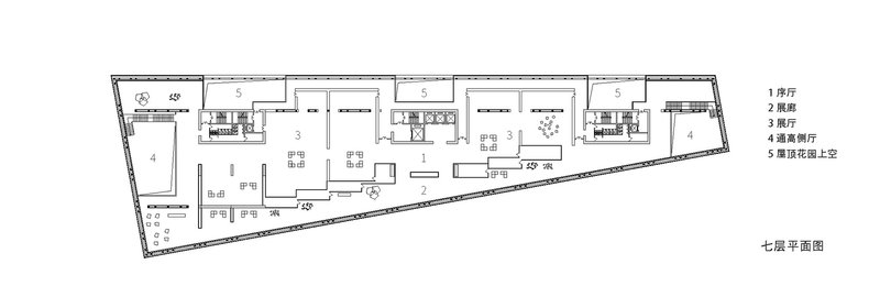
A core objective of the Hangzhou Wulin Art Museum is to make art accessible and integrated with the everyday urban experience. While the art exhibition space is situated in the building’s upper echelons, the lower zones buzz with cultural industry spaces and community services. This distribution not only maximizes the museum’s interaction with the city but also elevates the role of art in public life.

Article image
Article image
Article image
Article image
Article image

Sky Gardens: A Venue for Urban Connectivity

The introduction of sky gardens acts as a verdant link between the museum’s diverse functional areas. Accessible independently, these spaces are designed to invite the public into the museum’s embrace, offering cultural, creative, and dining experiences that draw a wider audience and enrich the urban fabric.

Article image

Embracing Green and Energy-Efficient Solutions

Innovative Architectural Solutions for Sustainability

CCTN Design’s commitment to sustainability is evident in the museum’s orientation and construction techniques. Staggered cantilevered blocks, vertical grilles, and a sophisticated double-layered curtain wall system work in concert to mitigate the effects of direct sunlight, significantly reducing energy consumption and enhancing indoor environmental quality.

Article image
Article image
Article image
Article image
Article image

Green Roofs and Energy Efficiency

The museum’s green roofs play a crucial role in its energy strategy, offering thermal insulation and supporting the city’s sponge initiative. These features, coupled with the museum’s efficient use of materials and innovative ventilation systems, underscore the project’s dedication to sustainability and its positive contribution to the urban ecosystem.

Article image
Article image
Article image
Article image
Article image

The Hangzhou Wulin Art Museum as a Model for the Future

The Hangzhou Wulin Art Museum stands as a testament to the power of cultural complex urban integration, showcasing how architecture can serve as a conduit between art, culture, and urban life. Through its innovative design, commitment to sustainability, and dynamic public spaces, the museum not only enriches the cultural landscape of Hangzhou but also sets a new standard for future developments in the realm of cultural architecture.

Article image
Article image
Article image
Article image

All photographs are work of Pei Wen

UNI Editorial

UNI Editorial

Where architecture meets innovation, through curated news, insights, and reviews from around the globe.

Share your ideas with the world

Share your ideas with the world

Write about your design process, research, or opinions. Your voice matters in the architecture community.

Comments (0)

No comments yet. Be the first to comment!

Similar Reads

You might also enjoy these articles

publishedStory1 day ago
The Ken Roberts Memorial Delineation Competition (Krob)
publishedStory3 weeks ago
Waterfront Redevelopment and Urban Revitalization in Mumbai: Forging a New Dawn for Darukhana
publishedStory3 weeks ago
OUT-OF-MAP: A Call for Postcards on Feminist Narratives of Public Space
publishedStory1 month ago
Documentation Work on Buddhist Wooden  Temple

Explore Architecture Competitions

Discover active competitions in this discipline

UNI Editorial
Search in