House of Boundary: Redefining Residential Living in South Korea Through Boundary-Focused ArchitectureHouse of Boundary: Redefining Residential Living in South Korea Through Boundary-Focused Architecture

House of Boundary: Redefining Residential Living in South Korea Through Boundary-Focused Architecture

UNI Editorial
UNI Editorial published News under Architecture on

A New Dialogue Between Urbanity and Domesticity

Located in Bitgaram-dong within the Gwangju-Jeonnam Joint Innovation City, the House of Boundary by PLAN Architects office reinterprets residential architecture by challenging traditional spatial hierarchies and engaging with its surroundings through a nuanced understanding of boundary house architecture in South Korea. Set at the edge of an expanding city, the house straddles urban density and rural openness, offering a design language that balances contrast with harmony.

Article image
Article image
Article image

Framing the Edges: A Context-Responsive Site Strategy

The site opens toward farmlands and mountain ridges while remaining proximate to commercial, institutional, and residential clusters. This physical transition from high-rise urbanity to pastoral serenity becomes the thematic driver of the design. The House of Boundary responds to this shift with a built form that is both simple and rich—brick volumes gently hug the site lines while remaining visually light and open. Bright bricks along the perimeter mimic the natural contour of the land, grounding the house without overwhelming it.

Article image
Article image
Article image

Rethinking Boundaries: Beyond Walls and Doors

Designed for a middle-aged couple and their two children, the house moves beyond the conventional front-door-centered layout. Entry is through a 2.6-meter-wide wooden door that leads to a courtyard—a threshold space adorned with plants, warm textures, and a translucent roof. This courtyard doesn't merely serve as an entry but as an emotional and architectural buffer, seamlessly transitioning visitors from the chaos of the city to the calm of home.

Article image
Article image
Article image

Interiors that Celebrate Light, Movement, and Freedom

Inside, spatial boundaries dissolve with soft material transitions and layered lighting strategies. In the living room, a double-layered ceiling of translucent polycarbonate and traditional Korean hanji paper diffuses natural light, casting ever-changing shadows across the walls and floor. These shifting patterns lend a poetic rhythm to daily life—an atmospheric quality that continues as one moves through the house.

Article image
Article image
Article image

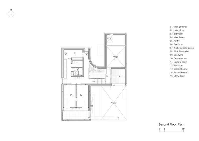
The staircase, positioned centrally, becomes more than circulation—it is an experience. Horizontal windows carved into the stair wall open up views to the backyard and distant landscape, making vertical movement dynamic and connected to the outdoors.

Article image
Article image
Article image

Blurring Vertical and Horizontal Boundaries

Rather than relying on traditional construction hierarchies—where upper levels rest visibly on lower ones—the house offers segmented, interdependent forms. Walls on the second floor appear suspended or offset, allowing both artificial and natural light to filter through cracks and openings, forming varied impressions throughout the day. A curved wall on the upper level features a skylight that diffuses soft daylight, with shadows gently crawling across surfaces, marking time and season.

Article image
Article image
Article image
Article image

A Critique of Conventional Living

The House of Boundary presents a subtle yet powerful critique of residential norms in South Korea. It questions fixed uses of space, rigid structural hierarchies, and a single-point entry system. Instead, it nurtures fluidity, privacy, and spatial equality—creating a home that mirrors the family’s ethos of non-hierarchical, open-ended living.

Article image
Article image
Article image

Each boundary—whether physical, visual, or emotional—is treated as a design opportunity rather than a limit. This boundary-focused architectural approach not only enhances the daily experience of its residents but also contributes to the evolution of residential design in the country.

Article image
Article image
Article image

Towards a More Sensitive Architecture

Through thoughtful spatial transitions, curated material palettes, and a deep respect for both nature and user experience, PLAN Architects office’s House of Boundary becomes a benchmark in boundary house architecture in South Korea. It signals a movement toward homes that are not isolated objects but active participants in their context—bridging nature, city, and personal life through meaningful design.

Article image
Article image
Article image
Article image

All Photographs are works of Yoon, joon hwan

UNI Editorial

UNI Editorial

Where architecture meets innovation, through curated news, insights, and reviews from around the globe.

Share your ideas with the world

Share your ideas with the world

Write about your design process, research, or opinions. Your voice matters in the architecture community.

Comments (0)

No comments yet. Be the first to comment!

Similar Reads

You might also enjoy these articles

publishedNews3 weeks ago
Bamboo Housing Challenge 2026: Design Affordable, Sustainable Homes Using Bamboo
publishedNews1 year ago
Computational Design & Education: Beegraphy Design Awards Introduces 7th Category (Featuring Jiyun's Innovative Approach)
publishedNews1 year ago
From Parametric Lighting to Urban Furniture: Join the 2nd Workshop in Beegraphy’s Computational Design Series
publishedNews2 years ago
Introducing Sphere by UNI: Pioneering a New Era in AEC Industry

Explore Architecture Competitions

Discover active competitions in this discipline

UNI Editorial
Search in