House of Cross by Chaoffice: A Modern Courtyard House Design in China
A reimagined courtyard house in rural Beijing designed for multigenerational living and modern work-life balance.
Redefining Multigenerational Living through Courtyard Architecture
Located in the rural landscape of Tongzhou, Beijing, the House of Cross by Chaoffice reimagines the traditional courtyard house design in China for contemporary, multigenerational living. Conceived during a post-pandemic shift in lifestyle, the project is a direct response to real-life needs—a fusion of domestic retreat, family hub, and functional home office. With an area of 334 square meters, the residence draws from the local architectural heritage while critically adapting to present-day constraints and desires.




Designing for a Post-Pandemic Lifestyle
In 2023, the homeowner chose to leave behind the constant travel between city and village, opting instead to settle back in their ancestral hometown. This decision marked the beginning of a project rooted in practicality rather than nostalgia. The goal was to house three generations while offering a workspace within a single-level structure, abiding by local building codes that limit eave height to 3 meters. This regulation preserved the area's flat, expansive skyline and reinforced the logic of a single-story home that embraces its surrounding openness.




A Contemporary Interpretation of the Heyuan Layout
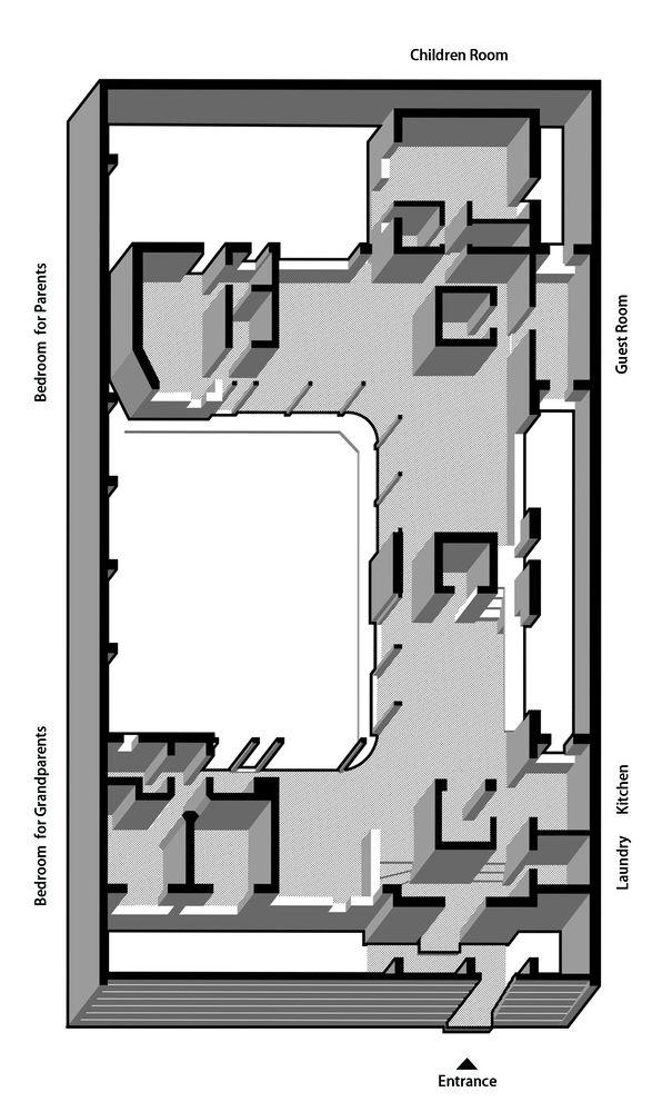
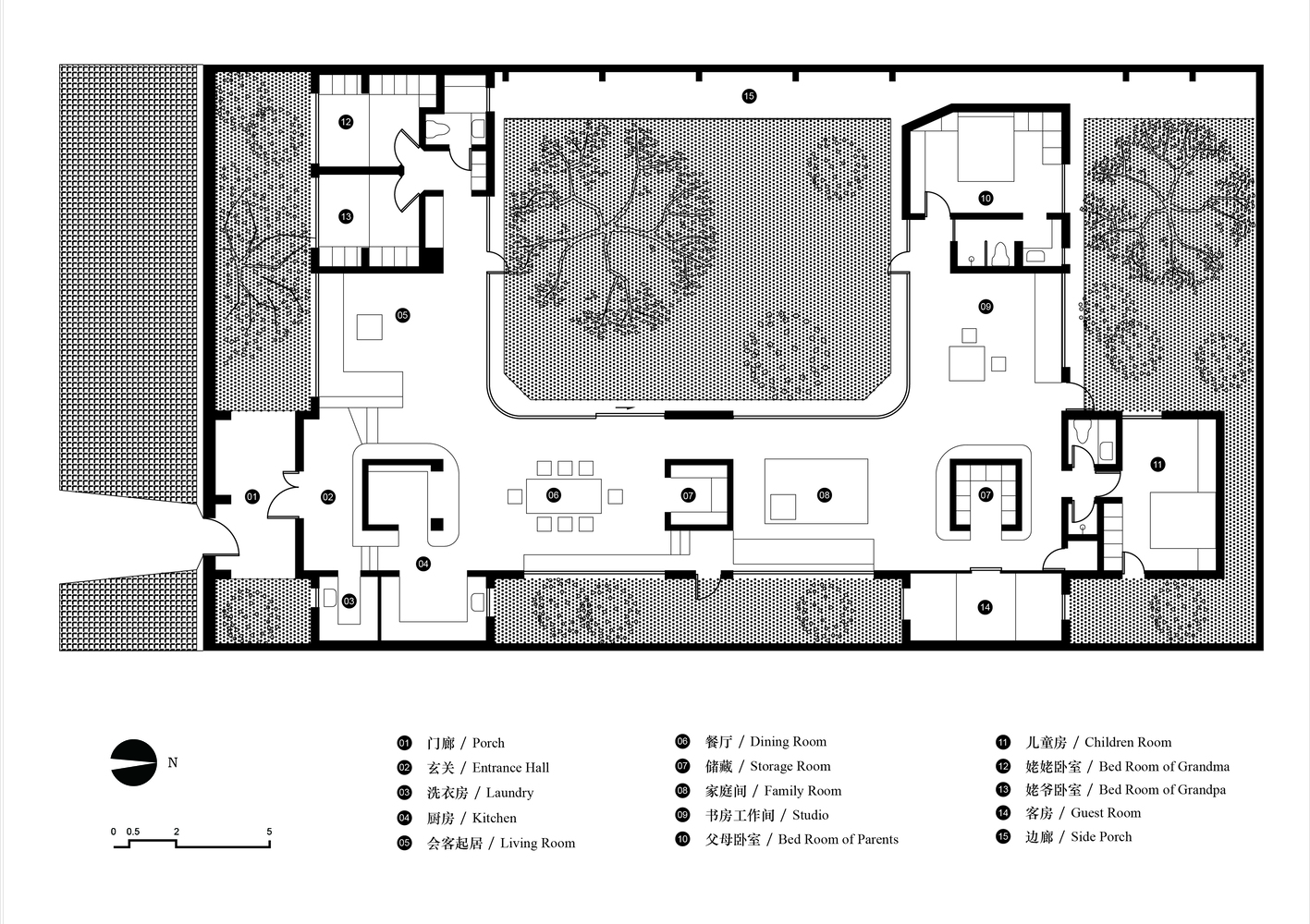
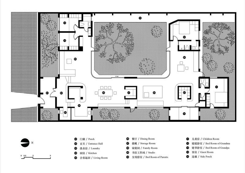
Chaoffice responded to the large 700-square-meter site by designing a 300-square-meter house that delicately balances modest scale and spatial generosity. Instead of recreating a traditional heyuan (courtyard house) in form, the architects embraced its essence—connection to the land, open circulation, and layered spatial experiences. The house’s plan takes the form of a cross, with wings branching out in all directions and meeting at a central core. This structure provides clearly defined private zones for each family member while supporting collective interaction at its center.




Cross-Shaped Form and Spatial Fluidity
The cross-shaped configuration is not just a stylistic gesture but a deeply functional one. The home is anchored by a structural core where all load-bearing elements converge, allowing the outer eaves and walls to remain free and permeable. From the air, the plan resembles a cross, with each “arm” serving a distinct residential function—grandparents’ quarters, parents’ suite, children's room, and guest space. The grandparents, in particular, appreciated the opportunity for subtle separation in their sleeping areas, a cultural nuance respected and accommodated by the design.


Creating Light-Filled and Connected Spaces
Each of the wings benefits from dual-sided natural light and visual connections across the courtyard, ensuring that no space feels isolated. The retracted placement of the north-facing main hall further opens up a backyard, enhancing the fluid relationship between interior and exterior spaces. The entire site is organized to create views that unfold from one courtyard to the next, emphasizing movement, openness, and daily rituals.


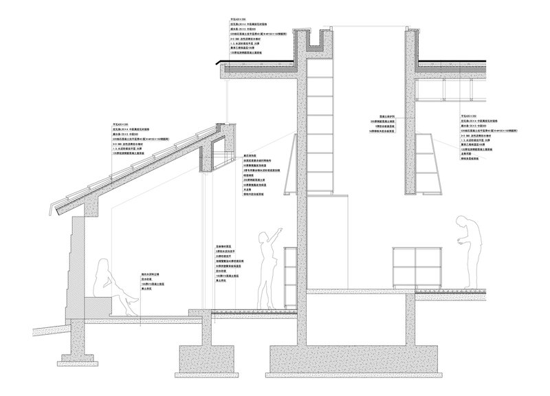
Structural Strategy as Spatial Philosophy
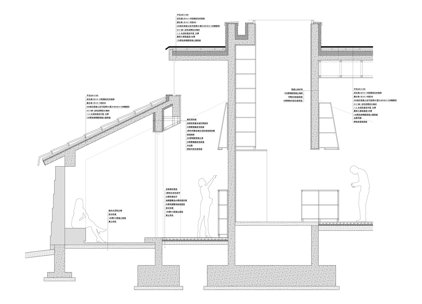
At the heart of the design lies a poetic yet precise structural philosophy. The roof’s gabled ends extend like protective wings while the core supports the weight of the structure, freeing the periphery. This central load-bearing approach allows the eaves to project outward in every direction, echoing the organic form of a mushroom. The resulting sheltered spaces create a gentle transition from interior to exterior, while maintaining thermal efficiency and a sense of psychological comfort.




Tactile Materials and a Sense of Shelter
Interior materials like wood and concrete are carefully chosen for their natural textures and thermal qualities. Glass facades face inward to the courtyard but are modest in height, capped by eaves at 2.4 meters. This thoughtful reduction in vertical glazing maintains a human scale and evokes the feeling of being nestled under a mushroom cap—a metaphor that captures the sense of shelter, intimacy, and protection essential to the home’s atmosphere.



Inward Privacy, Outward Humility
The house opens generously to its internal courtyard but remains discreet from the street. Its public face is understated—a sloping roof gently guiding visitors into a recessed entryway, protected by a perimeter brick wall that steps in alignment with the natural slope of the site. Rather than stand out, the house sits quietly in its context, embodying humility and integration within the village landscape.


A Living Model for Rural Modernity
House of Cross offers more than just an architectural solution; it proposes a viable future for rural residential life in China. By reconciling traditional spatial logic with contemporary needs, it sets a precedent for how courtyard house design in China can evolve—honoring the past while boldly embracing the present.


All the photographs are works of Yumeng Zhu
Popular Articles
Popular articles from the community
On the Brooks House by Monsoon Collective – A Contemporary Kerala Home Rooted in Tradition
Kerala home blending tradition and modernity with water-inspired design, brick architecture, courtyard planning, and sustainable rainwater harvesting strategies.
Treehouse Apartment: A Warm Timber Interior Blending Craft, Play, and Contemporary Living
Warm timber apartment with integrated treehouse, combining natural materials, craftsmanship, and playful design to create a flexible, family-oriented living environment.
Atelier Macri Concept Store Interior Design by CASE-REAL
Atelier Macri store features a "ko" counter, walnut wood details, cork displays, blending retail, gallery, and seamless customer experiences.
Inverted Architecture Installation by Studio Link-Arc: Exploring the Intersection of Architecture and Living Organisms
Inverted Architecture Installation by Studio Link-Arc blends mycelium, sustainability, inverted design, ecological cycles, and urban adaptive architecture in Shenzhen.
Similar Reads
You might also enjoy these articles
Bamboo Housing Challenge 2026: Design Affordable, Sustainable Homes Using Bamboo
An international design competition by Bamboo U and IBUKU inviting architects and designers to reimagine affordable housing using bamboo — with the winning design built full-scale in Bali.
Computational Design & Education: Beegraphy Design Awards Introduces 7th Category (Featuring Jiyun's Innovative Approach)
Dive into Beegraphy’s 7th Design Awards category, where computational design meets education to create immersive, interactive learning tools, inspired by Jiyun’s work.
From Parametric Lighting to Urban Furniture: Join the 2nd Workshop in Beegraphy’s Computational Design Series
Dive into Cutting-Edge Design Techniques and Practical Applications with Industry Experts
Introducing Sphere by UNI: Pioneering a New Era in AEC Industry
Unlocking Global Potential with BIM and Agile Management
Explore Architecture Competitions
Discover active competitions in this discipline
The International Standard for Design Portfolios
The Global Benchmark for Architecture Dissertation Awards
The Global Benchmark for Graduation Excellence
Challenge to reimagine the Iron Throne
Comments (0)
Please login or sign up to add comments
No comments yet. Be the first to comment!