Huilongguan: A 63,000 m² Sports and Cultural Centre
DAQI Architects built a sports and cultural complex for 400,000 residents in Beijing, filling a two-decade gap in public infrastructure.
Huilongguan is one of Beijing's largest residential areas: over 400,000 people in a dense suburban grid of apartment towers built in the early 2000s. For two decades, it had almost no public cultural or sports facilities. The Huilongguan Sports and Cultural Center, designed by DAQI Architects and completed in 2023, fills that gap with a 63,000 square metre complex containing a sports centre, a cultural arts centre, an outdoor stadium, and a public park. It is one of the largest community infrastructure projects built in Beijing in recent years.
The project was part of Beijing's Huitian Action Plan, a municipal programme to retrofit underserved suburban neighbourhoods with the public amenities they were built without. The architecture had to be civic, legible, and open. It also had to fit into a tight site between apartment blocks, a highway, and an existing park.
Two Buildings, One Campus



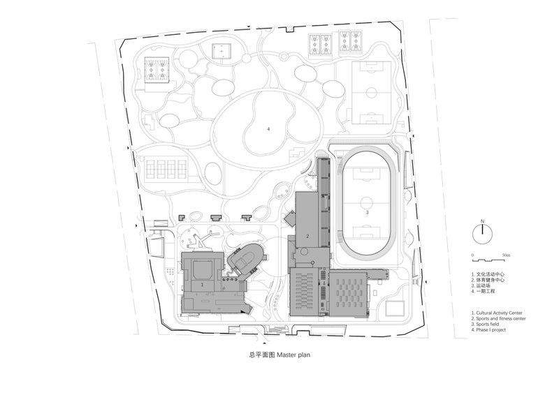
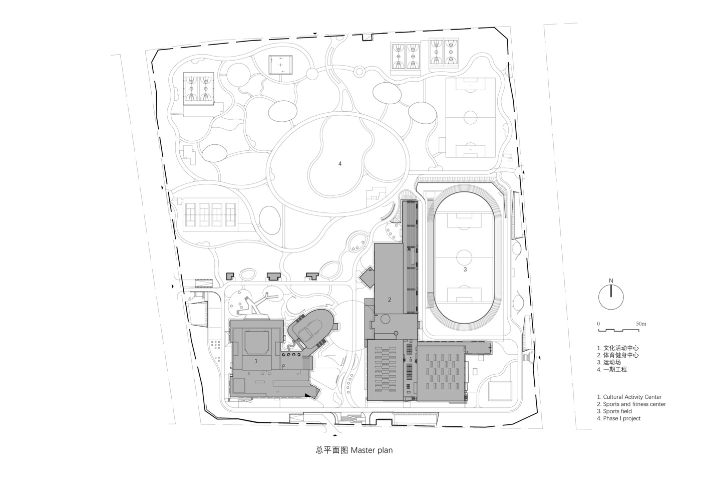
The complex is split into two main buildings: the sports and fitness centre (approximately 38,000 m²) and the cultural activity centre (approximately 25,000 m²). Between them, a public plaza, landscaped slopes, and an outdoor running track connect the complex to the adjacent park. The two buildings read as related but distinct: the sports centre is horizontal and heavy, the cultural centre is taller and more sculptural.
The campus logic matters because this is not a single building viewed from one angle. It is a piece of urban infrastructure that must be approached from many directions and used by many different groups simultaneously.
The Sports Centre: 11 Facilities Under One Roof



The sports centre contains badminton courts, a basketball arena, a 50-metre swimming pool, a skating rink, table tennis, martial arts, climbing walls, and an aerobics hall. The building is organised around a central atrium with a cylindrical timber-clad column containing escalators. The facade uses horizontal timber cladding with an oval window on one face and a series of arched openings at ground level that connect the interior to the outdoor track.



The swimming pool is a clear-span space under exposed steel trusses with blue walls. The basketball court has a yellow mural wall with Chinese calligraphy. Each sport facility has its own colour and spatial identity, which helps with wayfinding in a building this large.


The Cultural Centre: Theater, Library, Studios



The cultural centre is the more architecturally expressive of the two buildings. Its facade is a composition of white concrete panels with circular windows, concentric-circle relief sculptures, arched openings, and brick-clad base volumes. Inside, a full-height glazed cylinder contains a tree-column structure and serves as the main lobby. A grand theater, a multi-functional theater, a library, rehearsal rooms, art studios, a children's activity area, and a Quyi (traditional performance) studio are distributed across four floors.



Facade Language: Circles, Arches, and Concrete Relief



The facade is the most distinctive element of the project. The concentric-circle reliefs are cast into the concrete panels and read as oversized targets or ripples. The circular windows punch through the wall at different scales. The arched openings at ground level create covered walkways and frame views to the running track and park. The brick cladding at the base anchors the white volumes to the ground.
This is a building designed to be recognisable. In a neighbourhood of identical apartment towers, a civic building needs a face. The circles and arches give it one without resorting to spectacle.
The Outdoor Stadium and Public Space


The outdoor running track and stadium sit between the two buildings. The grandstand is a steel-truss structure with yellow V-columns, open to the air. The rooftop of the sports centre is developed as a public terrace with sculpted concrete forms, ramps, and planted areas. Multi-level outdoor corridors and platform squares connect the buildings to the park and the neighbourhood.
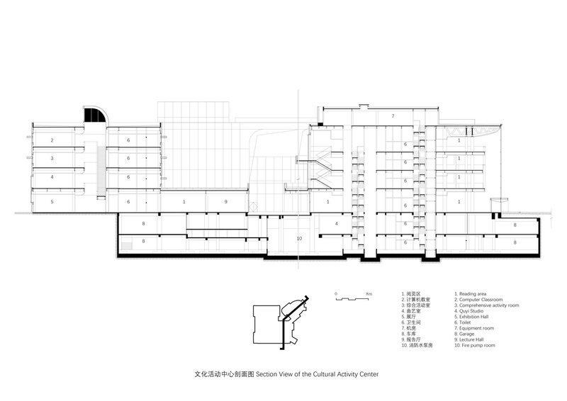
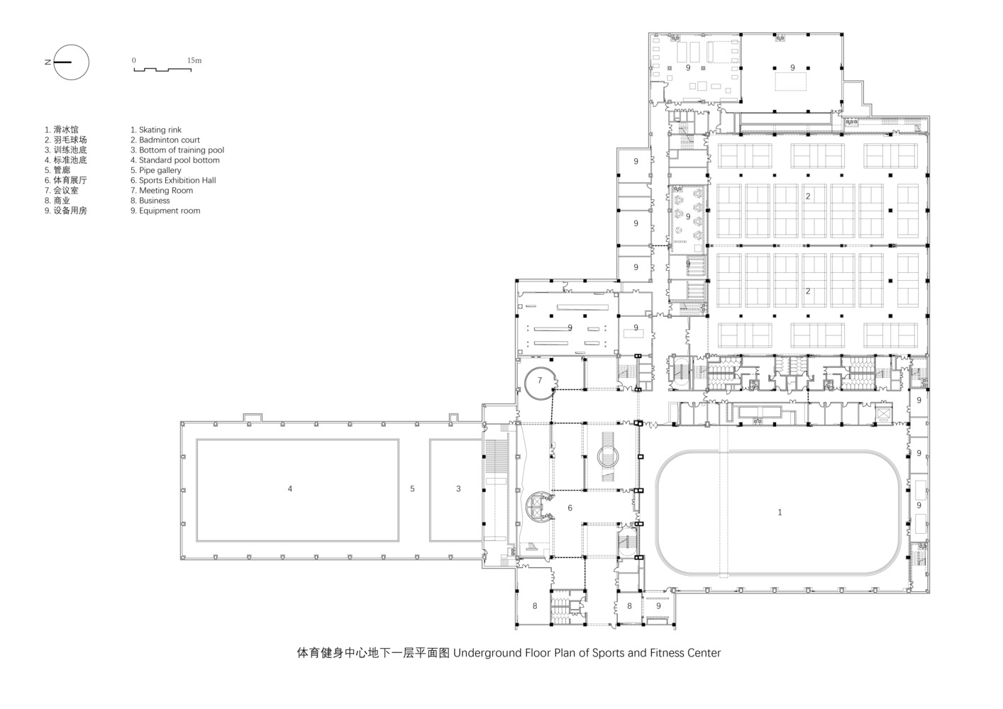
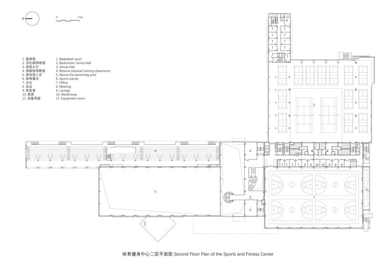
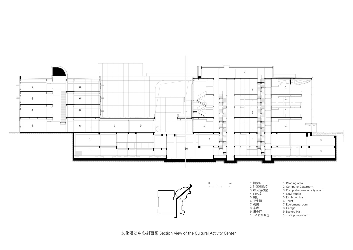
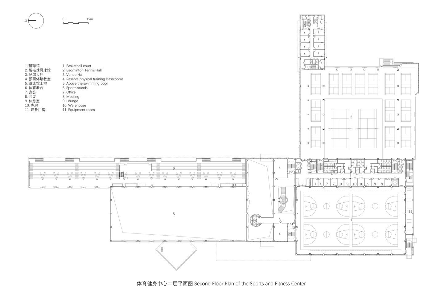
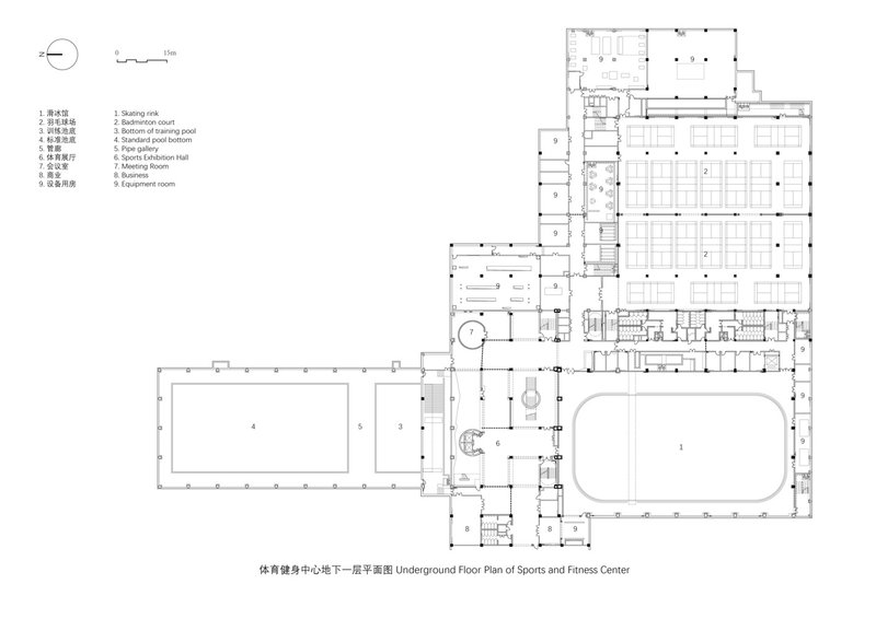
Drawings



The plans show the scale and complexity of the programme. The sports centre's underground floor contains the skating rink and pools. The upper floors stack basketball, badminton, and swimming in a compact section. The cultural centre plan shows the grand theater, the lobby cylinder, and the rehearsal and studio rooms wrapping around it.






Why This Project Matters
Public sports and cultural facilities in Chinese suburban neighbourhoods are a building type that barely existed ten years ago. Most of these areas were built as pure housing with no civic programme. Projects like Huilongguan represent a correction: the city building the infrastructure it forgot to include the first time. The architecture has to be generous, legible, and durable enough to serve hundreds of thousands of people for decades.
If you are interested in large-scale civic architecture, sports facility design, or urban retrofitting in high-density residential areas, this project is worth studying for how it organises a complex programme into a legible campus, and how its facade language creates identity in a neighbourhood that has none.
About the Studio
Share Your Own Work on uni.xyz
If you are working on public architecture, sports facilities, or community cultural centres, uni.xyz is a place to publish your work and connect with a global design community.
Project credits: Huilongguan Sports and Cultural Center by DAQI Architects. Beijing, China. 63,000 m². Completed 2023. Photographs: Ji Li.
Popular Articles
Popular articles from the community
TGK Nirasaki Plant: A Smart Factory Blending Technology, Landscape, and Wellness
Smart factory in Japan blending IoT manufacturing, scenic trail design, natural ventilation, and landscape integration to enhance user experience and sustainability.
20 Most Popular Commercial Architecture Projects of 2025
From sustainable market concepts to heritage factories, the commercial buildings and proposals that drew the most attention on uni.xyz this year.
Split House: A Compact Urban Home Blending Privacy, Light, and Flexible Living in Japan
Compact Japanese home featuring DOMA space, flexible café potential, passive lighting, privacy zoning, and sustainable urban living design.
Similar Reads
You might also enjoy these articles
Filtering Space: A Gradual Spatial Experience
From urban intensity to spatial calm.
The Ken Roberts Memorial Delineation Competition (Krob)
As the most senior architectural drawing competition currently in operation anywhere in the world, it draws hundreds of entries each year, awarding the very best submissions in a series of medium-based categories.
Waterfront Redevelopment and Urban Revitalization in Mumbai: Forging a New Dawn for Darukhana
A transformative waterfront redevelopment project reimagining Darukhana’s shipbreaking heritage into an inclusive urban future.
OUT-OF-MAP: A Call for Postcards on Feminist Narratives of Public Space
Rhizoma Design and Research Lab invites artists, designers, architects, researchers, and students to reflect on how feminist perspectives can reshape public space. Selected works will be exhibited in Barcelona, October 2026. Submissions open until 15 April 2026.
Explore Architecture Competitions
Discover active competitions in this discipline
The International Standard for Design Portfolios
The Global Benchmark for Architecture Dissertation Awards
The Global Benchmark for Graduation Excellence
Challenge to reimagine the Iron Throne
Comments (0)
Please login or sign up to add comments
No comments yet. Be the first to comment!