Ibsen House by Felipe Hess Arquitetos: A Masterpiece of Urban Residential Architecture
A stunning example of urban residential architecture, Ibsen House blends robust design, natural elements, and vertical living in São Paulo.
Introduction to Ibsen House
Ibsen House, designed by Felipe Hess Arquitetos, is a striking example of urban residential architecture located in Jardins, São Paulo, Brazil. Completed in 2023, this 800 m² residence redefines city living by balancing density, privacy, and a seamless connection with nature. Through its thoughtful design, use of materials, and spatial arrangement, the house serves as an urban refuge for a young family.




A Bold and Introspective Urban Form
The Ibsen House stands as a dense, introspective building that commands attention in its urban surroundings. Its volume is precisely adjusted, creating a strong architectural presence that turns inward, prioritizing privacy over street exposure. The façade, clad in dark and austere brick, contrasts beautifully with the lush vegetation that softens the architecture. Greenery cascades down steel cables from the roof and emerges through an open wall with a spring, adding a living, organic layer to the solid structure.





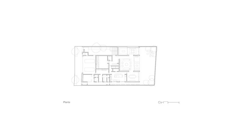
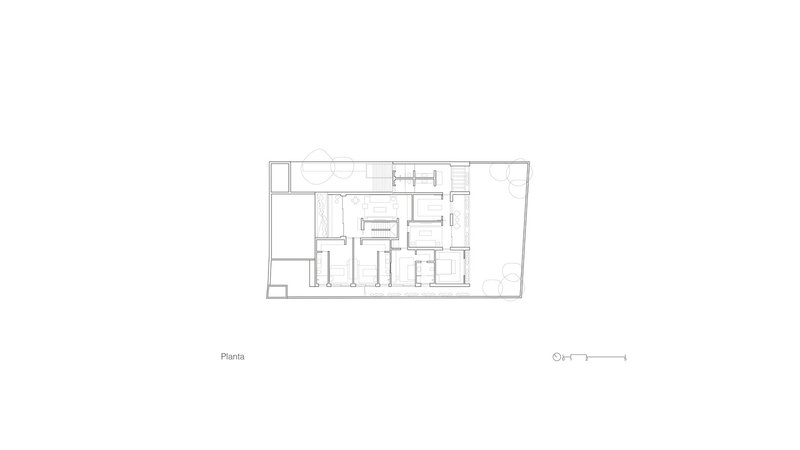
Vertical Living in a Compact Urban Lot
Faced with limited land, Felipe Hess Arquitetos adopted a vertical strategy, efficiently distributing functions across multiple levels. The ground floor hosts the social areas, including a connected living room, dining room, and kitchen that open onto the backyard garden. More private amenities such as the wine cellar and gym are tucked away to maintain a peaceful atmosphere.



On the middle floor, four suites and a family room are oriented around patios and balconies, ensuring natural light and ventilation penetrate deep into the building. At the top, the rooftop terrace becomes an urban oasis, offering panoramic views of São Paulo’s skyline and creating a dynamic leisure area where architecture and landscape design by Flávia integrate harmoniously.



Material Palette and Mexican Architectural Influence
The design of Ibsen House draws clear inspiration from Mexican architecture, particularly in its use of solid, well-defined volumes and the interplay of recesses. However, instead of vibrant colors characteristic of architects like Luis Barragán, the house opts for a subdued material palette of dark bricks and limestone, aligning with the calm, sophisticated lifestyle of its residents. This approach creates a robust architectural language that balances permanence and openness, making the house a timeless urban sanctuary.




A Seamless Blend of Architecture and Landscape
A key feature of the Ibsen House is its seamless integration of architecture and landscape. Vegetation plays an active role, climbing up façades, spilling over balconies, and softening the boundaries between indoor and outdoor spaces. The rooftop garden, in particular, becomes a focal point, where the family can retreat from the city while still enjoying its views. This carefully curated balance between built form and nature exemplifies the essence of contemporary urban residential architecture.





Urban Residential Architecture at Its Best
The Ibsen House by Felipe Hess Arquitetos stands as a refined model of urban residential architecture, where thoughtful design, materiality, and nature converge. It demonstrates how dense urban living can offer not just functionality and privacy, but also warmth, beauty, and a profound connection to nature. For architecture lovers and urban dwellers alike, Ibsen House is an inspiring example of how a home can transform and elevate the urban experience.




Popular Articles
Popular articles from the community
Alton Cliff House: A Harmonious Retreat by f2a Architecture in Lake Country, Canada
Alton Cliff House blends corten steel, prefabrication, and sustainable design, creating a luxurious, energy-efficient retreat perched on Canadian cliffs.
Split House: A Compact Urban Home Blending Privacy, Light, and Flexible Living in Japan
Compact Japanese home featuring DOMA space, flexible café potential, passive lighting, privacy zoning, and sustainable urban living design.
Free Architecture Competitions You Can Enter Right Now
No entry fees, real prizes. Here are the best free architecture competitions open for submissions in 2026.
Gads Hill Early Learning Center by JGMA: Adaptive Reuse Shaping Community-Focused Educational Architecture
Adaptive reuse transforms fragmented structure into vibrant early learning center with playful façade, natural light, and community-focused sustainable design.
Similar Reads
You might also enjoy these articles
The Ken Roberts Memorial Delineation Competition (Krob)
As the most senior architectural drawing competition currently in operation anywhere in the world, it draws hundreds of entries each year, awarding the very best submissions in a series of medium-based categories.
Waterfront Redevelopment and Urban Revitalization in Mumbai: Forging a New Dawn for Darukhana
A transformative waterfront redevelopment project reimagining Darukhana’s shipbreaking heritage into an inclusive urban future.
OUT-OF-MAP: A Call for Postcards on Feminist Narratives of Public Space
Rhizoma Design and Research Lab invites artists, designers, architects, researchers, and students to reflect on how feminist perspectives can reshape public space. Selected works will be exhibited in Barcelona, October 2026. Submissions open until 15 April 2026.
Documentation Work on Buddhist Wooden Temple
Architectural syncretism and cultural hybridity: A comparative study of the Buddhist temples in Chattogram Hill tracks
Explore Architecture Competitions
Discover active competitions in this discipline
The International Standard for Design Portfolios
The Global Benchmark for Architecture Dissertation Awards
The Global Benchmark for Graduation Excellence
Challenge to reimagine the Iron Throne
Comments (0)
Please login or sign up to add comments
No comments yet. Be the first to comment!