Industrial Architecture Renovation: Malakoff Industrial Lot by Barre Bouchetard Architecture
The Industrial Lot in Malakoff reimagines industrial architecture through sustainable design, historical preservation, and innovative reuse.
A New Vision for Industrial Architecture
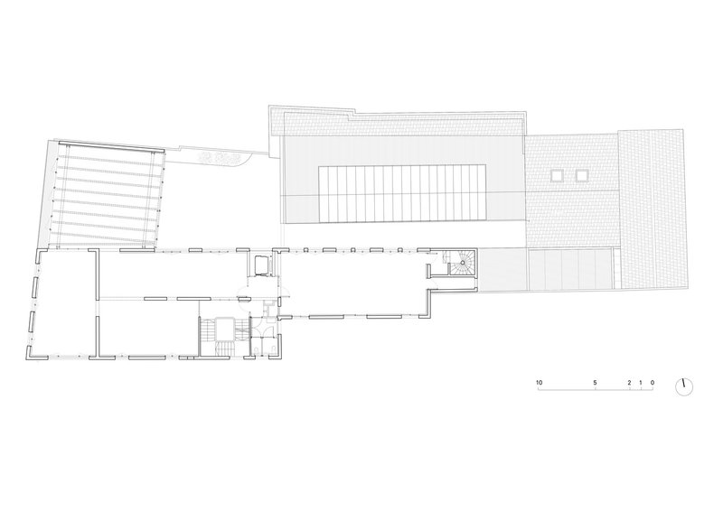
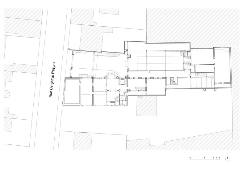
The Industrial Lot in Malakoff, designed by Barre Bouchetard Architecture, demonstrates how innovative renovation techniques can transform outdated industrial spaces into vibrant, functional environments. Situated in Malakoff, France, the 1,700 m² project retains the site's industrial heritage while meeting contemporary environmental and functional requirements. This thoughtful renovation harmonizes architectural preservation, sustainable design, and modern utility, creating a narrative that respects the site's history while preparing it for the future.



Preserving History Through Design
The original structure of the Malakoff Industrial Lot dates back to the early 20th century, showcasing layers of history through its construction phases. Barre Bouchetard Architecture embraced these layers as an essential part of the design narrative. Stripping the plaster from the original facade revealed the brickwork, restoring the identity of the production site. A 1950s extension, featuring a bridge building and elevation, was transformed with a modern curtain wall, replacing outdated asbestos cladding and revitalizing the structure’s appearance.


Cantilevered balconies were introduced above the entrance, utilizing the setback of the extension to provide outdoor spaces on every floor. These balconies not only enhance the usability of the spaces but also add an architectural rhythm to the facade, blending historical integrity with modern utility.


Architectural Interventions: Balancing Function and Aesthetics
One of the most significant challenges of the project was creating a cohesive architectural language across the diverse structures within the lot. To achieve this, the architects carefully preserved and enhanced the characteristic production spaces, such as the hall and sheds. These spaces were maintained with their original frames, while thoughtful interventions were made to improve their functionality and climate control.

The introduction of an elevator made the building fully accessible, seamlessly integrated into the facade with transparent joinery to ensure natural light permeates shared areas. The rear of the plot, home to production spaces, was adapted to accommodate new activities while respecting the original structures. Natural light was maximized through a glass central roof in the hall, complemented by lightweight peripheral roofing to preserve the existing framework.

Sustainable Strategies: Climate and Materiality
The renovation prioritizes sustainability through its material choices and climatic strategies. Steel and aluminum were used for their strength and lightness, minimizing material additions and retaining the integrity of the existing structures. Glass was selectively utilized to provide natural light and solar gains, which are balanced with external textile blinds and solar-control glazing to prevent overheating in the summer.

Natural ventilation systems were incorporated through strategically placed openings in the facade and skylights, promoting air circulation and reducing reliance on mechanical systems. The use of wood in the reconstructed sheds addresses logistical challenges while adding warmth and texture to the spaces. These measures ensure that the building achieves optimal functionality with minimal environmental impact.

Integrating Natural Light and Unique Views
The architects paid special attention to creating connections between spaces through light and views. Openings uncovered during the renovation were preserved and transformed into glazed walls with wooden joinery, framing views that link different areas of the building. These connections highlight the layered history of the site, creating a sense of unity and fluidity across the structures.


Natural light serves as a central element in the design, enhancing the quality of interior spaces while supporting passive solar heating. The interplay of light and shadow emphasizes the material textures, enriching the sensory experience of the occupants.

A Model for Industrial Renovation
The Industrial Lot in Malakoff exemplifies how industrial architecture can be revitalized to meet modern needs while preserving its historical essence. Barre Bouchetard Architecture’s approach demonstrates the potential of adaptive reuse, turning neglected industrial sites into dynamic spaces for work and creativity. By balancing environmental responsibility, architectural integrity, and functional design, the project serves as a model for sustainable industrial renovation.





All Photographs are work of Maxime Verret
Popular Articles
Popular articles from the community
Louis Malle Cinema: A Limestone Cultural Landmark Revitalizing Community Life in Prayssac
Limestone cinema extension with public forecourt, blending heritage and modern design to create flexible cultural spaces and strengthen community interaction.
Atelier Macri Concept Store Interior Design by CASE-REAL
Atelier Macri store features a "ko" counter, walnut wood details, cork displays, blending retail, gallery, and seamless customer experiences.
Solar Steam: A Climate-Responsive Architecture That Redefines the Monument
A climate-responsive memorial architecture that transforms heat, decay, and time into a living system reflecting humanity’s ecological impact.
An Miên Lumière Cafe by xưởng xép, Ho Chi Minh City, Vietnam
An industrial-inspired café where layered steel and warm light create a dynamic, immersive environment shaped by reflection, depth, and perception.
Similar Reads
You might also enjoy these articles
The Ken Roberts Memorial Delineation Competition (Krob)
As the most senior architectural drawing competition currently in operation anywhere in the world, it draws hundreds of entries each year, awarding the very best submissions in a series of medium-based categories.
Waterfront Redevelopment and Urban Revitalization in Mumbai: Forging a New Dawn for Darukhana
A transformative waterfront redevelopment project reimagining Darukhana’s shipbreaking heritage into an inclusive urban future.
OUT-OF-MAP: A Call for Postcards on Feminist Narratives of Public Space
Rhizoma Design and Research Lab invites artists, designers, architects, researchers, and students to reflect on how feminist perspectives can reshape public space. Selected works will be exhibited in Barcelona, October 2026. Submissions open until 15 April 2026.
Documentation Work on Buddhist Wooden Temple
Architectural syncretism and cultural hybridity: A comparative study of the Buddhist temples in Chattogram Hill tracks
Explore Architecture Competitions
Discover active competitions in this discipline
The International Standard for Design Portfolios
The Global Benchmark for Architecture Dissertation Awards
The Global Benchmark for Graduation Excellence
Challenge to reimagine the Iron Throne
Comments (0)
Please login or sign up to add comments
No comments yet. Be the first to comment!