Innovative Flexible Home Design: The Evolution of Phong House by Dom Architect Studio
The article delves into Phong House's flexible home design, blending traditional and modern elements for a dynamic, family-oriented living space.
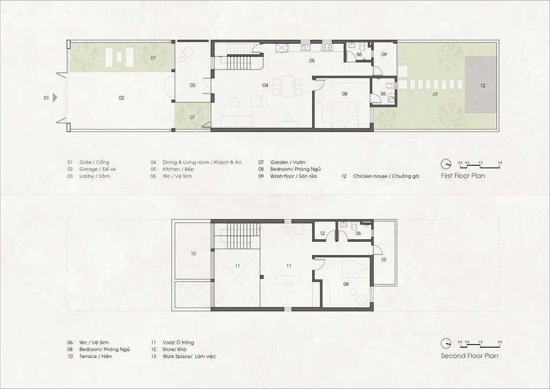
In the heart of Nghi Xuân District, Vietnam, Phong House emerges as a paragon of flexible home design, catering to the evolving needs of a young family. Conceptualized by the visionary minds at Dom Architect Studio, this 190 m² dwelling represents a new era in residential architecture.


The Foundation of Adaptability
The design brief for Phong House was clear: create a compact yet adaptable living space for a family poised to grow. With an eye towards cost-efficiency and future expansion, Dom Architect Studio crafted a home that redefines the boundaries of traditional and modern living.




Strategic Design for a Dynamic Future
Understanding the local architectural vernacular, the architects devised a structure that honors the conventional while innovating for the future. This flexible home design incorporates a modular approach, allowing the space to evolve alongside the family’s changing needs.




A Blueprint for Tomorrow
At the core of Phong House is the concept of "Structure" - a term that transcends mere construction to embody the seamless integration of indoor and outdoor elements. This principle is applied across various scales within the home, establishing a fluid connection between communal and private spaces.


Living Spaces that Grow with You
The strategic arrangement of space allows for the natural delineation of public and private areas, ensuring that future modifications, such as additional bedrooms, can be integrated effortlessly without disrupting the home’s harmony.



Maximizing Natural Elements
Phong House stands as a testament to the importance of natural ventilation and lighting in flexible home design. The intelligent placement of doors and windows facilitates air flow and maximizes light, creating an environment that is both energy-efficient and comfortable.




A Legacy of Traditional Values
Despite its forward-thinking design, Phong House retains the cultural essence of Vietnamese architecture. The home is designed to adapt to future needs while preserving the traditional characteristics valued by previous generations.


A Model of Flexible Home Design
Phong House by Dom Architect Studio is not just a residence; it's a blueprint for the future of family living. By embracing flexibility, sustainability, and cultural heritage, this home sets a new standard for residential design in the modern age.



All photographs are work of Hoang Le
Popular Articles
Popular articles from the community
On the Brooks House by Monsoon Collective – A Contemporary Kerala Home Rooted in Tradition
Kerala home blending tradition and modernity with water-inspired design, brick architecture, courtyard planning, and sustainable rainwater harvesting strategies.
Louis Malle Cinema: A Limestone Cultural Landmark Revitalizing Community Life in Prayssac
Limestone cinema extension with public forecourt, blending heritage and modern design to create flexible cultural spaces and strengthen community interaction.
Treehouse Apartment: A Warm Timber Interior Blending Craft, Play, and Contemporary Living
Warm timber apartment with integrated treehouse, combining natural materials, craftsmanship, and playful design to create a flexible, family-oriented living environment.
Inverted Architecture Installation by Studio Link-Arc: Exploring the Intersection of Architecture and Living Organisms
Inverted Architecture Installation by Studio Link-Arc blends mycelium, sustainability, inverted design, ecological cycles, and urban adaptive architecture in Shenzhen.
Similar Reads
You might also enjoy these articles
The Ken Roberts Memorial Delineation Competition (Krob)
As the most senior architectural drawing competition currently in operation anywhere in the world, it draws hundreds of entries each year, awarding the very best submissions in a series of medium-based categories.
Waterfront Redevelopment and Urban Revitalization in Mumbai: Forging a New Dawn for Darukhana
A transformative waterfront redevelopment project reimagining Darukhana’s shipbreaking heritage into an inclusive urban future.
OUT-OF-MAP: A Call for Postcards on Feminist Narratives of Public Space
Rhizoma Design and Research Lab invites artists, designers, architects, researchers, and students to reflect on how feminist perspectives can reshape public space. Selected works will be exhibited in Barcelona, October 2026. Submissions open until 15 April 2026.
Documentation Work on Buddhist Wooden Temple
Architectural syncretism and cultural hybridity: A comparative study of the Buddhist temples in Chattogram Hill tracks
Explore Architecture Competitions
Discover active competitions in this discipline
The International Standard for Design Portfolios
The Global Benchmark for Architecture Dissertation Awards
The Global Benchmark for Graduation Excellence
Challenge to reimagine the Iron Throne
Comments (0)
Please login or sign up to add comments
No comments yet. Be the first to comment!