Innovative Homeless Shelters Design: A Comprehensive Overview of Home for The Homeless by xystudio
Exploring xystudio's innovative shelter in Warsaw, offering dignity and hope to the homeless through architectural design.
In the heart of Warsaw, Poland, a groundbreaking project by xystudio, titled "Home for The Homeless," emerges as a beacon of hope and innovation in the field of social housing. Completed in 2023 and spanning an area of 2813 m², this shelter is not just a building but a sanctuary for the homeless, disabled, and sick individuals who often find themselves marginalized by society. The design philosophy, detailed by architects Filip Domaszczynski, Dorota Sibinska, and Marta Nowosielska, transcends traditional shelter concepts, offering a holistic approach to recovery, dignity, and community integration.



Design Philosophy and Context
The project's inception traces back to xystudio's involvement with Sister Małgorzata Chmielewska's Foundation Chleb Życia, highlighting a deep-rooted commitment to addressing homelessness with empathy and architectural innovation. The shelter's design was informed by the pressing need for modern, accessible facilities that could replace outdated shelters and cater to the complex needs of its inhabitants. The pandemic underscored the necessity for adaptable spaces, leading to the inclusion of a second entrance, isolation rooms, and ample outdoor areas for medical tents.








Architectural Approach
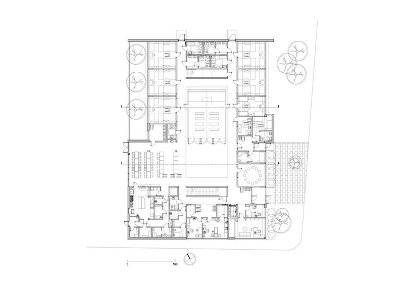
Challenged by the site's industrial backdrop, xystudio crafted a simple, geometric structure that harmonizes with its surroundings through a concrete base and apertures that mimic the rhythm of the natural world. The use of brick-colored mosaic plaster for the elevation draws inspiration from the rusty, coral tones found in the neighborhood, seamlessly integrating the building into its context. The preservation of trees, especially an old pear tree symbolizing survival and hope, underscores the project's commitment to creating a healing environment.





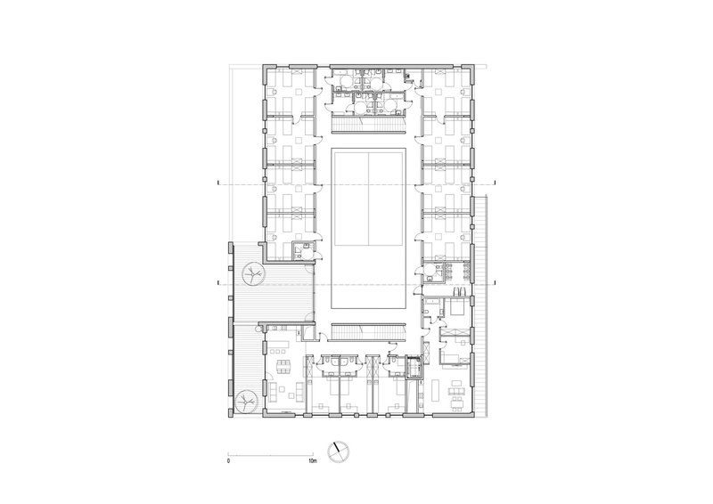
Interior Design and Layout
Home for The Homeless accommodates 80 residents, offering a blend of communal living spaces and private areas to foster both social interaction and personal solitude. The shelter's heart is the CLT-constructed chapel, providing a serene space for reflection and community gatherings. The interior design is characterized by daylight-filled rooms, bright colors, and modest, cost-effective materials, ensuring a safe and welcoming atmosphere. A mural by Marcin Czaja and Anna Wardęga-Czaja adds a touch of calmness and connection to nature.





Accessibility and Sustainability
The building's layout prioritizes accessibility for people with disabilities, featuring wide corridors, contrasting colors for safety, and adapted facilities. The strategic use of prestressed concrete beams and prefabricated chipboard shapes for the roof enhances the structure's acoustics and lightness, reducing energy costs through natural illumination.



Community Impact
Home for The Homeless stands as a testament to the power of architecture in fostering community, dignity, and hope among the most vulnerable. The shelter's open square and absence of fences invite the surrounding community to engage with the residents, breaking down barriers and nurturing bonds through shared spaces and activities. The project exemplifies how thoughtful design can transform lives, providing a model for future homeless shelters worldwide.
xystudio's Home for The Homeless is a pioneering project that redefines the architecture of social housing. Through its empathetic design, sustainable practices, and community-focused approach, the shelter not only provides a haven for those in need but also challenges societal perceptions of homelessness, advocating for inclusivity, dignity, and a brighter future for all.





All Photographs are the work of Piotr Krajewski, Filip Domaszczyński
Popular Articles
Popular articles from the community
Solar Steam: A Climate-Responsive Architecture That Redefines the Monument
A climate-responsive memorial architecture that transforms heat, decay, and time into a living system reflecting humanity’s ecological impact.
Treehouse Apartment: A Warm Timber Interior Blending Craft, Play, and Contemporary Living
Warm timber apartment with integrated treehouse, combining natural materials, craftsmanship, and playful design to create a flexible, family-oriented living environment.
Atelier Macri Concept Store Interior Design by CASE-REAL
Atelier Macri store features a "ko" counter, walnut wood details, cork displays, blending retail, gallery, and seamless customer experiences.
An Miên Lumière Cafe by xưởng xép, Ho Chi Minh City, Vietnam
An industrial-inspired café where layered steel and warm light create a dynamic, immersive environment shaped by reflection, depth, and perception.
Similar Reads
You might also enjoy these articles
Bamboo Housing Challenge 2026: Design Affordable, Sustainable Homes Using Bamboo
An international design competition by Bamboo U and IBUKU inviting architects and designers to reimagine affordable housing using bamboo — with the winning design built full-scale in Bali.
Computational Design & Education: Beegraphy Design Awards Introduces 7th Category (Featuring Jiyun's Innovative Approach)
Dive into Beegraphy’s 7th Design Awards category, where computational design meets education to create immersive, interactive learning tools, inspired by Jiyun’s work.
From Parametric Lighting to Urban Furniture: Join the 2nd Workshop in Beegraphy’s Computational Design Series
Dive into Cutting-Edge Design Techniques and Practical Applications with Industry Experts
Introducing Sphere by UNI: Pioneering a New Era in AEC Industry
Unlocking Global Potential with BIM and Agile Management
Explore Architecture Competitions
Discover active competitions in this discipline
The International Standard for Design Portfolios
The Global Benchmark for Architecture Dissertation Awards
The Global Benchmark for Graduation Excellence
Challenge to reimagine the Iron Throne
Comments (0)
Please login or sign up to add comments
No comments yet. Be the first to comment!