KAGANHOTEL: A Fusion of Art and Hospitality by OHArchitecture
KAGANHOTEL by OHArchitecture blends art, design, and hospitality, offering an immersive experience with resident artists and unique spaces.
KAGANHOTEL, designed by OHArchitecture, is a unique hotel concept located in the vibrant Tanba district near Kyoto Station, Japan. This innovative building blends art, culture, and functionality, offering visitors more than just a place to stay—it's a space to experience art in its creation, display, and sale. The hotel’s design reflects a harmonious balance between living, working, and interacting with the arts.

The Concept Behind KAGANHOTEL
Originally serving as a dormitory for employees working in the nearby wholesale markets, KAGANHOTEL underwent a transformation into a hotel that doubles as an art experience. The district itself is known for its bustling markets and vibrant atmosphere, where ingredients are gathered and sold, providing the perfect backdrop for a hotel that combines hospitality and creativity.
OHArchitecture’s design aims to immerse guests in the world of art, offering a space where both the process and product of artistic creation can be experienced firsthand. From the moment you enter KAGANHOTEL, it’s clear that the experience goes beyond a typical hotel stay.


Architectural Design and Space Layout
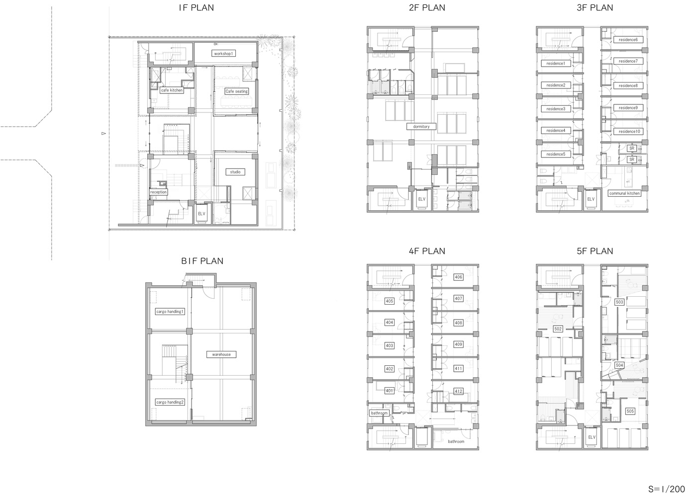
KAGANHOTEL spans a total area of 2,021 square meters, spread across five floors above ground and one below. The design, led by architects Kosuke Okuda and Tatsuya Horii, incorporates elements inspired by the wholesale market’s architectural features. The building itself is a modern reinterpretation of the market’s "hanging box" construction, which gives the space a dynamic and open feel.

Floor Breakdown:
- 1st Floor: Entrance hall, gallery, and studio space
- 2nd Floor: Hotel dormitory rooms
- 3rd Floor: Artist residences
- 4th Floor: Hotel rooms (single bedrooms)
- 5th Floor: Hotel rooms (double and triple-bed rooms)
- B1F: Studio and warehouse space
The integration of different functional areas within one building fosters a unique interaction between guests and artists. The third floor, specifically, is home to resident artists who create artwork that can be displayed in the gallery or even purchased by guests during their stay.


Immersive Art Experience
One of the most innovative aspects of KAGANHOTEL is its focus on creating an immersive art experience for guests. The hotel’s third floor hosts artists who not only live in the space but also work in the basement-level studios. The art produced here is occasionally displayed in guest rooms or the gallery, allowing guests to witness the creation of art up close.
This "hands-on experience" concept offers guests the opportunity to engage with art in an interactive way, whether it’s observing an artist at work, purchasing a piece of art, or simply spending time in the art-filled hotel rooms. Art is not just displayed—it becomes a part of the experience, inviting guests to immerse themselves in the creative process.


The Art Market Concept
The design of KAGANHOTEL is inspired by the structure of the nearby wholesale markets. The market’s open-air concept and the stacking of goods in boxes influenced the layout of the building. The hanging boxes create an elevated space where different functions can be adjusted to suit various uses, such as galleries, studios, or cafés.
In the hotel, these "boxes" are incorporated into the design to create flexible, open spaces. The first floor, for example, can be transformed into a gallery or studio space, while the guest rooms on the fifth floor feature “art spaces” designed to highlight the art displayed within them. The rooms are painted white to create a neutral canvas, allowing the artwork to shine and become the focal point of the room.

A Space for Art Lovers and Creators
KAGANHOTEL’s innovative design not only provides a unique lodging experience but also fosters a community of artists and art lovers. The integration of art into the hotel’s physical and cultural fabric makes it an ideal destination for those seeking more than just a conventional hotel stay.
The experience of living with art—whether it’s witnessing its creation or bringing home a piece—makes KAGANHOTEL stand out as a beacon of creativity. The hotel is not just a place to sleep; it is a space for reflection, interaction, and connection with the arts.


A New Era in Hotel Design
KAGANHOTEL by OHArchitecture redefines what a hotel can be. It’s a space where art, architecture, and hospitality intersect, providing guests with a truly unique and immersive experience. With its innovative design and focus on the intersection of art and everyday life, KAGANHOTEL serves as a cultural hub, where creativity thrives and visitors can engage with art in meaningful ways.


All Photographs are works of Atsushi Shiotani
Popular Articles
Popular articles from the community
TGK Nirasaki Plant: A Smart Factory Blending Technology, Landscape, and Wellness
Smart factory in Japan blending IoT manufacturing, scenic trail design, natural ventilation, and landscape integration to enhance user experience and sustainability.
Rede Arquitetos Builds an Open-Air School in Fortaleza That Doubles as a Neighborhood Living Room
Educar II SESC-CE folds sports, dance, and community gathering into a courtyard campus wrapped in mesh and tropical color.
Alton Cliff House: A Harmonious Retreat by f2a Architecture in Lake Country, Canada
Alton Cliff House blends corten steel, prefabrication, and sustainable design, creating a luxurious, energy-efficient retreat perched on Canadian cliffs.
Free Architecture Competitions You Can Enter Right Now
No entry fees, real prizes. Here are the best free architecture competitions open for submissions in 2026.
Similar Reads
You might also enjoy these articles
Filtering Space: A Gradual Spatial Experience
From urban intensity to spatial calm.
The Ken Roberts Memorial Delineation Competition (Krob)
As the most senior architectural drawing competition currently in operation anywhere in the world, it draws hundreds of entries each year, awarding the very best submissions in a series of medium-based categories.
Waterfront Redevelopment and Urban Revitalization in Mumbai: Forging a New Dawn for Darukhana
A transformative waterfront redevelopment project reimagining Darukhana’s shipbreaking heritage into an inclusive urban future.
OUT-OF-MAP: A Call for Postcards on Feminist Narratives of Public Space
Rhizoma Design and Research Lab invites artists, designers, architects, researchers, and students to reflect on how feminist perspectives can reshape public space. Selected works will be exhibited in Barcelona, October 2026. Submissions open until 15 April 2026.
Explore Architecture Competitions
Discover active competitions in this discipline
The International Standard for Design Portfolios
The Global Benchmark for Architecture Dissertation Awards
The Global Benchmark for Graduation Excellence
Challenge to reimagine the Iron Throne
Comments (0)
Please login or sign up to add comments
No comments yet. Be the first to comment!