Kugami Terrace Sunset Café: A Coastal Café Architecture Integrating Nature and Community in Iwami, Japan
A minimalist coastal café and gallery in Iwami integrates architecture, nature, and community to revive a shrinking beachside town.
New Coastal Destination
Designed by REPLUS Co., Ltd, the Kugami Terrace Sunset Café and Small Gallery exemplifies thoughtful coastal café architecture. Situated in Iwami Town on Japan’s scenic San’in Kaigan Geopark coastline, the building harmonizes cultural memory, landscape sensitivity, and minimal intervention. More than just a café, it’s a space for slow living, quiet observation, and community enrichment, overlooking the Sea of Japan.



Architecture Rooted in Landscape and Heritage
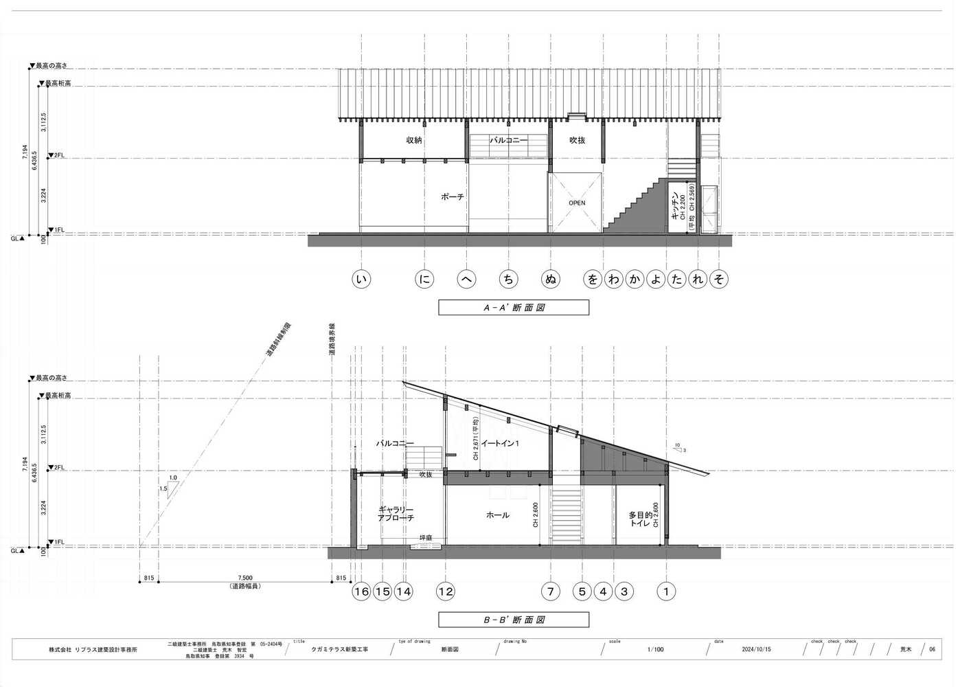
The café and gallery sit on a site of natural and historical richness, but also one facing demographic and infrastructural decline. Once bustling with guesthouses and local commerce, the area has seen significant depopulation. This project aims to revitalize it through architecture that does not overpower, but rather enhances the local character. The structure uses natural materials that match the regional vernacular, like burnt cedar and galvalume steel, embracing weathering as beauty rather than degradation.



A Beach House Designed for Contemplation
Positioned near a BBQ park that attracts over 2,000 annual visitors and next to surfable beaches, the café offers an elevated terrace to view the setting sun. Limited seating ensures that the building does not become a mass-tourism magnet but remains a place of intimate retreat. The design philosophy is clear: less spectacle, more serenity. The café embraces its role as a threshold between town and nature—a space to pause, reflect, and enjoy the natural rhythm of the ocean.





Integrated Gallery for Local Creative Voices
The small gallery, tucked within the building, hosts solo exhibitions by local artists. It is an intentional cultural anchor that supports community expression. A unique feature is the rear RC (reinforced concrete) wall, which serves both as the structural support for the north-facing balcony and a flexible hanging system for artwork. This architectural decision bridges utility and artistic display in a single gesture.




Structural Simplicity with Climatic Wisdom
Wind exposure along Japan’s northern coastline is significant. The building resists this with an RC structure on the ground level and a dynamic cantilevered design. The roof acts as a horizontal support structure, minimizing the need for beams and enhancing openness on the second floor. This clean structure offers a warm yet resilient architectural expression that welcomes guests while withstanding the harsh sea breeze.




Material Palette and Environmental Ethics
Interior surfaces are finished in structural plywood, offering warmth and simplicity. Exteriors use burnt cedar siding—a traditional Japanese treatment known for durability and beauty. The roof, made from galvalume steel, adds industrial contrast while resisting corrosion from sea air. The approach minimizes long-term maintenance and aligns with low-impact building practices, supporting both aesthetic longevity and material honesty.



Minimal Impact, Maximum Experience
From a design perspective, the glazed north façade eliminates traditional window sashes, embedding glass directly into wooden pillars. This detail removes barriers between viewer and view, creating an uninterrupted visual field across the sea. At 3.6 meters high, the RC balcony wall creates a sculptural elevation that feels monumental yet grounded, guiding the eye upward as visitors approach from the road.

Balancing Tourism and Local Life
Despite being a designated stop on JR West’s luxury sightseeing train “Zuifu,” Iwami has relatively few hospitality infrastructures. The Kugami Terrace Café doesn’t aim to capitalize on volume, but rather adds a small-scale, culturally sensitive attraction that complements the region’s natural and historical assets. This building is not just about revitalizing tourism; it’s about strengthening the town’s identity through architecture that respects both people and place.
Coastal Architecture with Purpose
The Kugami Terrace Sunset Café and Gallery is a masterful example of how coastal café architecture can be both functional and poetic. It acts as a community beacon, a tourist touchpoint, and a space of stillness. Through local materials, intelligent structure, and modest scale, it shows how architecture can support sustainable regional development without compromising cultural authenticity.


All photographs are works of Tomonao Nagasaka
Popular Articles
Popular articles from the community
Alton Cliff House: A Harmonious Retreat by f2a Architecture in Lake Country, Canada
Alton Cliff House blends corten steel, prefabrication, and sustainable design, creating a luxurious, energy-efficient retreat perched on Canadian cliffs.
The Ken Roberts Memorial Delineation Competition (Krob)
As the most senior architectural drawing competition currently in operation anywhere in the world, it draws hundreds of entries each year, awarding the very best submissions in a series of medium-based categories.
Gads Hill Early Learning Center by JGMA: Adaptive Reuse Shaping Community-Focused Educational Architecture
Adaptive reuse transforms fragmented structure into vibrant early learning center with playful façade, natural light, and community-focused sustainable design.
Solar Steam: A Climate-Responsive Architecture That Redefines the Monument
A climate-responsive memorial architecture that transforms heat, decay, and time into a living system reflecting humanity’s ecological impact.
Similar Reads
You might also enjoy these articles
Bamboo Housing Challenge 2026: Design Affordable, Sustainable Homes Using Bamboo
An international design competition by Bamboo U and IBUKU inviting architects and designers to reimagine affordable housing using bamboo — with the winning design built full-scale in Bali.
Computational Design & Education: Beegraphy Design Awards Introduces 7th Category (Featuring Jiyun's Innovative Approach)
Dive into Beegraphy’s 7th Design Awards category, where computational design meets education to create immersive, interactive learning tools, inspired by Jiyun’s work.
From Parametric Lighting to Urban Furniture: Join the 2nd Workshop in Beegraphy’s Computational Design Series
Dive into Cutting-Edge Design Techniques and Practical Applications with Industry Experts
Explore Architecture Competitions
Discover active competitions in this discipline
The International Standard for Design Portfolios
The Global Benchmark for Architecture Dissertation Awards
The Global Benchmark for Graduation Excellence
Challenge to reimagine the Iron Throne
Comments (0)
Please login or sign up to add comments
No comments yet. Be the first to comment!