La Bocatoma Housing Modules By Cubbil Studio: Sustainable Andean Lodging with Community Engagement
La Bocatoma Housing Modules by Cubbil Studio blends sustainable Andean design, traditional wattle-and-daub techniques, and community collaboration for immersive mountain lodging.
Nestled at the foot of the majestic Volcán el Altar in Ecuador’s Inguisay Sector, the La Bocatoma Housing Modules by Cubbil Studio redefine mountain lodging through a harmonious blend of sustainability, vernacular architecture, and community participation. Perched at 2,800 meters above sea level, these innovative structures were commissioned by the Zoila Martínez Workers' Association, which promotes community tourism, environmental responsibility, and cultural preservation.


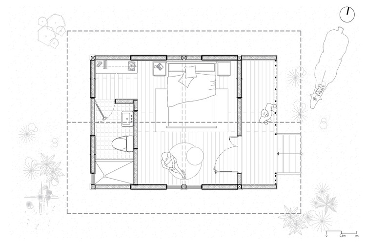
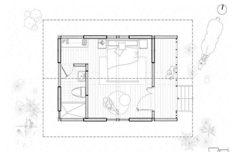
Spanning 110 m², the project consists of four thoughtfully designed mountain lodging shelters strategically located on irregular communal terrain. Each module is oriented to maximize the panoramic Andean landscape, capturing the serene songs of birds, the soothing sounds of natural springs, and expansive views of the moors. The design respects the traditional wattle and daub techniques, elevating ancestral construction methods with prefabricated panels, reinforced concrete plinths, and sustainable eucalyptus wood structures. The infill panels are made of locally sourced earth, while the roofs combine wood and moor grass to ensure thermal comfort and environmental harmony.


A key design feature is the access porch, acting as both a transitional buffer between the rugged exterior and the warm interior, and as a viewing point for the breathtaking surroundings. The interior layout focuses on rest and leisure, with dedicated bedroom spaces, wet areas, and shelving that emphasize functionality and simplicity.



Beyond aesthetics and comfort, the project emphasizes community involvement through collective mingas, bringing together local men, women, and youth to participate in construction and knowledge transfer. These collaborative efforts foster social cohesion, cultural preservation, and skill development, transforming architecture into a tool for inclusion, creativity, and sustainable living.




Cubbil Studio has thus created more than just lodging; the La Bocatoma Housing Modules stand as a model of eco-friendly Andean architecture, seamlessly integrating innovative design, traditional craftsmanship, and environmental stewardship. This project exemplifies how participatory architecture can enhance community well-being while celebrating the natural and cultural heritage of Ecuador’s highlands.




All the photographs are works of Andrés Villota
Popular Articles
Popular articles from the community
Inverted Architecture Installation by Studio Link-Arc: Exploring the Intersection of Architecture and Living Organisms
Inverted Architecture Installation by Studio Link-Arc blends mycelium, sustainability, inverted design, ecological cycles, and urban adaptive architecture in Shenzhen.
Alton Cliff House: A Harmonious Retreat by f2a Architecture in Lake Country, Canada
Alton Cliff House blends corten steel, prefabrication, and sustainable design, creating a luxurious, energy-efficient retreat perched on Canadian cliffs.
Solar Steam: A Climate-Responsive Architecture That Redefines the Monument
A climate-responsive memorial architecture that transforms heat, decay, and time into a living system reflecting humanity’s ecological impact.
Similar Reads
You might also enjoy these articles
The Ken Roberts Memorial Delineation Competition (Krob)
As the most senior architectural drawing competition currently in operation anywhere in the world, it draws hundreds of entries each year, awarding the very best submissions in a series of medium-based categories.
Waterfront Redevelopment and Urban Revitalization in Mumbai: Forging a New Dawn for Darukhana
A transformative waterfront redevelopment project reimagining Darukhana’s shipbreaking heritage into an inclusive urban future.
OUT-OF-MAP: A Call for Postcards on Feminist Narratives of Public Space
Rhizoma Design and Research Lab invites artists, designers, architects, researchers, and students to reflect on how feminist perspectives can reshape public space. Selected works will be exhibited in Barcelona, October 2026. Submissions open until 15 April 2026.
Documentation Work on Buddhist Wooden Temple
Architectural syncretism and cultural hybridity: A comparative study of the Buddhist temples in Chattogram Hill tracks
Explore Architecture Competitions
Discover active competitions in this discipline
The International Standard for Design Portfolios
The Global Benchmark for Architecture Dissertation Awards
The Global Benchmark for Graduation Excellence
Challenge to reimagine the Iron Throne
Comments (0)
Please login or sign up to add comments
No comments yet. Be the first to comment!