Meadows Primary School Architecture: A Model of Calm, Inclusive, and Functional Learning Spaces
Meadows Primary School architecture in Melbourne exemplifies inclusive, calm, and flexible design that fosters student well-being and learning.
Introduction to Meadows Primary School Architecture
Meadows Primary School architecture stands as an exemplary model of modern educational design that prioritizes the well-being and learning outcomes of its students. Designed by Project 12 Architecture, the school is located in Broadmeadows, a culturally diverse suburb in Melbourne’s northern region. This innovative architectural project, completed in 2022, introduces a new classroom building along with the renovation of existing spaces, catering to the specific needs of a multi-cultural student population.

The development emphasizes creating calm, rational, and flexible learning environments that foster both academic growth and emotional stability. The architecture reflects a sensitive approach towards accommodating students with diverse backgrounds, including English as an Additional Language (EAL) learners and children with refugee status.

The Vision Behind Meadows Primary School Architecture
The architectural vision for Meadows Primary School emerged from a deep understanding of the school’s community, which consists of students from over 30 cultural backgrounds. Project 12 Architecture worked closely with the school administration and the Victorian School Building Authority (VSBA) to design a building that transcends conventional classroom design.

The architects focused on addressing the specific academic, emotional, and social challenges faced by the students. The result is a calm and welcoming architectural solution that fosters a sense of safety, belonging, and inclusivity, helping students thrive both educationally and emotionally.

The New Classroom Building: Enhancing Learning Through Thoughtful Design
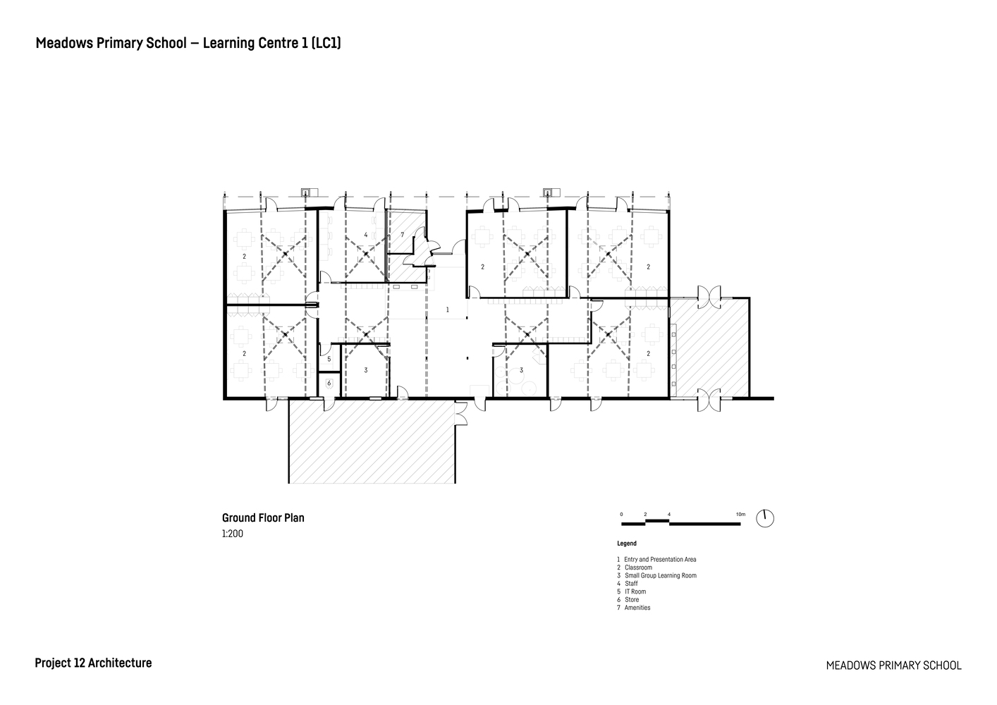
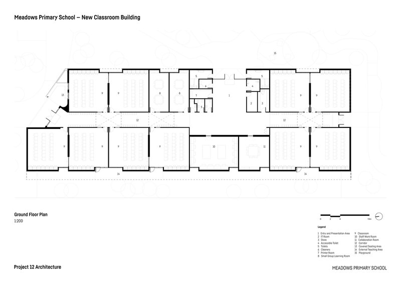
The centerpiece of the Meadows Primary School architecture project is a 10-classroom building accommodating 200 students. This contemporary structure is not only functional but also embodies simplicity and elegance. The internal layout is crafted to encourage both individual focus and collaborative learning, supporting diverse teaching methods.

Each classroom is designed with sensitivity to acoustics, minimizing noise disruptions and ensuring a calm atmosphere. Ample natural light flows through the spaces, creating a bright and positive learning environment. Visual learning aids are displayed prominently throughout the interiors, providing students with ongoing educational reinforcement.

Wide corridors serve as both transitional spaces and informal learning areas. The thoughtful use of color and natural materials subtly stimulates creativity while promoting a sense of calm. These design choices contribute to reducing student anxiety, enabling better concentration and engagement.

Flexible and Inclusive Learning Environments
Meadows Primary School architecture redefines classroom functionality by introducing adaptable spaces that support both traditional and contemporary teaching methods. Classrooms can operate independently or be combined to accommodate group activities, fostering collaborative learning. Consultation rooms and support spaces are integrated into the design, offering areas for one-on-one student support and counseling.

Recognizing the cultural and linguistic diversity of the students, the interiors are curated to be non-intimidating and culturally sensitive. The design avoids overwhelming visual elements, instead focusing on creating a secure and predictable environment where all students, regardless of their backgrounds, feel valued and supported.

Creating a Sense of Security and Belonging
The architectural language of Meadows Primary School extends beyond aesthetics to nurture a sense of security and stability. Many students come from refugee backgrounds or have experienced trauma, necessitating an environment that fosters emotional resilience. The design incorporates clear way-finding features, ensuring that children can navigate the building with ease and confidence.

Each transition between spaces is carefully planned to maintain visual and spatial coherence, reducing stress and confusion. The school’s open design philosophy encourages teachers and staff to remain visible and approachable, further enhancing the students' sense of security.

Collaborative Approach to Educational Design
The success of Meadows Primary School architecture is a testament to the collaborative approach adopted by Project 12 Architecture. The design process involved continuous dialogue with the school leadership, teaching staff, and the VSBA. This participatory method ensured that the final outcome aligned perfectly with the school's ethos and educational goals.
The entire project, from concept to completion, was executed within a remarkably short period of six months. This efficient delivery process minimized disruptions to the school’s operations, allowing the students to benefit from the new facilities promptly.

Positive Impact on Student Outcomes
Since its opening in April 2022, the new classroom building has significantly contributed to improved student experiences and learning outcomes. Teachers report that the calm and well-organized spaces have led to increased student engagement and better peer relationships. The architectural environment has created a positive ripple effect, enhancing the overall morale of both students and staff.
The Meadows Primary School architecture has redefined the concept of educational spaces, proving that thoughtful design can directly influence student success and well-being. It exemplifies how architecture can transcend its physical form to become a tool for social and educational empowerment.

A Benchmark for Future Educational Design
Meadows Primary School architecture by Project 12 Architecture serves as a benchmark for future school designs, particularly in multicultural and socially complex environments. It demonstrates that educational architecture must prioritize the mental and emotional well-being of students alongside academic performance.

By creating flexible, calm, and inclusive spaces, this project showcases how architecture can become a catalyst for positive change within a school community. Meadows Primary School stands as a beacon of innovative educational design, inspiring architects and educators to reimagine the potential of learning environments.

All Photographs are works of Derek Swalwell
Popular Articles
Popular articles from the community
Solar Steam: A Climate-Responsive Architecture That Redefines the Monument
A climate-responsive memorial architecture that transforms heat, decay, and time into a living system reflecting humanity’s ecological impact.
Atelier Macri Concept Store Interior Design by CASE-REAL
Atelier Macri store features a "ko" counter, walnut wood details, cork displays, blending retail, gallery, and seamless customer experiences.
The Ken Roberts Memorial Delineation Competition (Krob)
As the most senior architectural drawing competition currently in operation anywhere in the world, it draws hundreds of entries each year, awarding the very best submissions in a series of medium-based categories.
Similar Reads
You might also enjoy these articles
The Ken Roberts Memorial Delineation Competition (Krob)
As the most senior architectural drawing competition currently in operation anywhere in the world, it draws hundreds of entries each year, awarding the very best submissions in a series of medium-based categories.
Waterfront Redevelopment and Urban Revitalization in Mumbai: Forging a New Dawn for Darukhana
A transformative waterfront redevelopment project reimagining Darukhana’s shipbreaking heritage into an inclusive urban future.
OUT-OF-MAP: A Call for Postcards on Feminist Narratives of Public Space
Rhizoma Design and Research Lab invites artists, designers, architects, researchers, and students to reflect on how feminist perspectives can reshape public space. Selected works will be exhibited in Barcelona, October 2026. Submissions open until 15 April 2026.
Documentation Work on Buddhist Wooden Temple
Architectural syncretism and cultural hybridity: A comparative study of the Buddhist temples in Chattogram Hill tracks
Explore Architecture Competitions
Discover active competitions in this discipline
The International Standard for Design Portfolios
The Global Benchmark for Architecture Dissertation Awards
The Global Benchmark for Graduation Excellence
Challenge to design public laboratory
Comments (0)
Please login or sign up to add comments
No comments yet. Be the first to comment!