Memory of a Storehouse: Preserving History Through Adaptive Reuse Architecture
Memory of a Storehouse by Negishi Kenchiku Studio exemplifies adaptive reuse architecture, preserving historical identity while introducing modern functionality.
Revitalizing Heritage Through Thoughtful Renovation
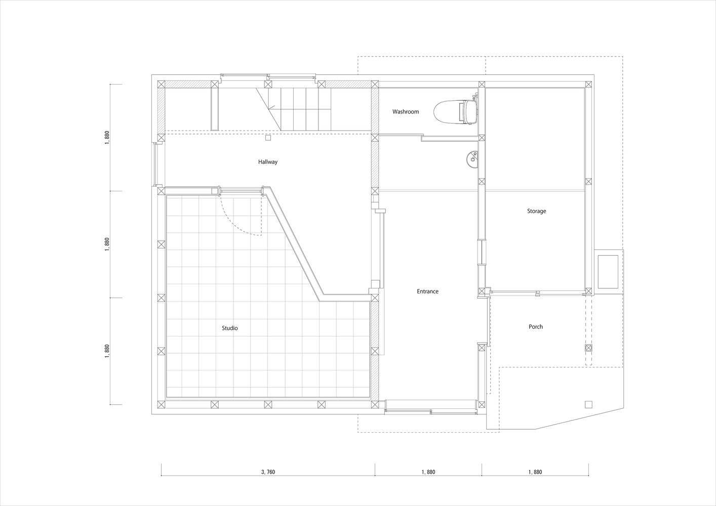
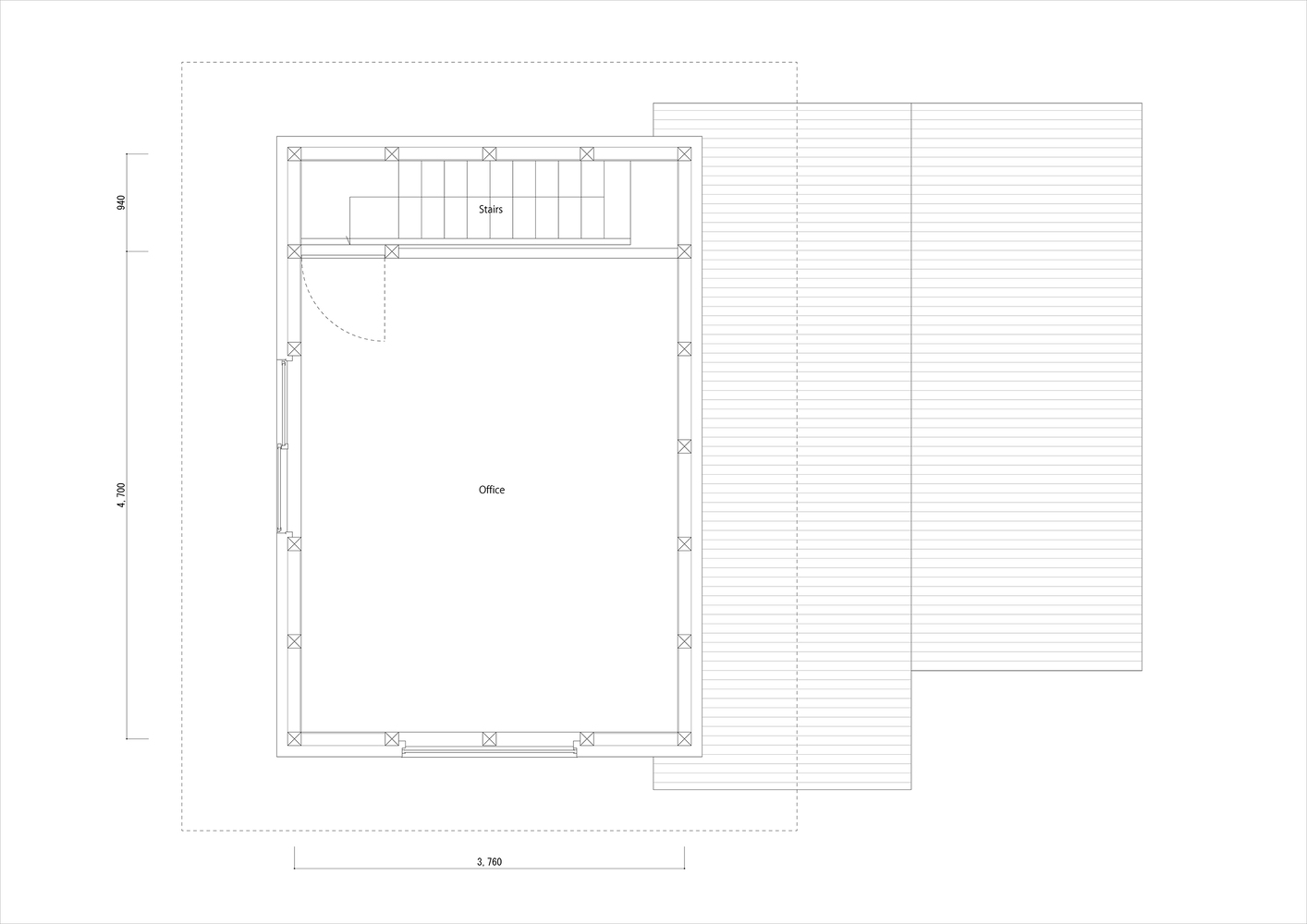
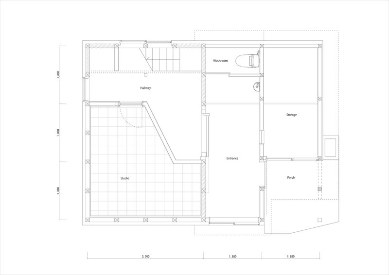
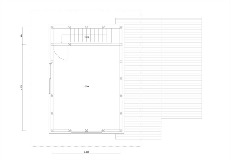
Memory of a Storehouse, designed by Negishi Kenchiku Studio, exemplifies the essence of adaptive reuse architecture by transforming an old storehouse at the foot of Mount Akagi into a functional and contemporary office space. Originally serving as an agricultural storage facility, the building had undergone multiple expansions and modifications over the years, yet retained its distinctive roof structure. This renovation preserves its historical identity while introducing modern functionality, creating a seamless dialogue between past and present.



A Design Rooted in Time and Place
Nestled in a rural setting surrounded by farmland, the storehouse represents an architectural narrative of resilience and adaptation. Though covered with galvanized iron sheets, the original silhouette remained intact, signifying its enduring presence in the landscape. By maintaining its structural integrity, the project emphasizes the importance of architectural heritage, allowing the building to continue its journey through time without erasing its past.



Preserving Memory Through Architectural Intervention
The renovation strategy was driven by the concept of retaining the storehouse’s essence while making it suitable for contemporary use. The distinctive roof structure remained untouched, serving as a symbolic anchor to its history. The external walls were renewed to enhance durability, while additional functions such as storage and a restroom were integrated into an existing extension.


Internally, the transformation was executed with a light touch, preserving key elements like the original doors and concrete block walls. New openings were strategically placed to introduce natural light, softening the transition from an industrial past to a modern workspace. The interplay between aged textures and refined interventions reflects the careful balance between conservation and evolution.


Blending Architecture with Nature
Time and nature continue to shape the storehouse’s surroundings, reinforcing its evolving narrative. The silver-toned façade reflects the changing hues of the sky and landscape, creating a dynamic visual connection with its environment. The garden, adapting with each passing season, further enhances the idea that architecture is not static but a living entity, constantly influenced by the forces around it.





The Ongoing Legacy of Adaptive Reuse Architecture
Memory of a Storehouse is more than just a renovated structure; it is a statement on the value of adaptive reuse architecture. By bridging past and present, this project illustrates how thoughtful renovations can extend the lifespan of buildings while preserving their historical significance. It demonstrates that architecture is not only about new constructions but also about sustaining memories, offering future generations a tangible connection to the past.



As owners and occupants change over time, the storehouse will continue its evolution, proving that adaptive reuse is an ongoing process. With each iteration, it carries forward the imprints of history while adapting to the needs of the present, ensuring that its memory remains an integral part of the built environment.





All Photographs are works of Shinsuke Hayakawa
Popular Articles
Popular articles from the community
Gads Hill Early Learning Center by JGMA: Adaptive Reuse Shaping Community-Focused Educational Architecture
Adaptive reuse transforms fragmented structure into vibrant early learning center with playful façade, natural light, and community-focused sustainable design.
Fifth NRE Jazz Club – De Bever Architecten: Eindhoven’s Revitalized Cultural Hub
Historic gas factory transformed into Fifth NRE Jazz Club blending modern sustainability, jazz culture, dining, and heritage architecture seamlessly.
Solar Steam: A Climate-Responsive Architecture That Redefines the Monument
A climate-responsive memorial architecture that transforms heat, decay, and time into a living system reflecting humanity’s ecological impact.
Similar Reads
You might also enjoy these articles
Bamboo Housing Challenge 2026: Design Affordable, Sustainable Homes Using Bamboo
An international design competition by Bamboo U and IBUKU inviting architects and designers to reimagine affordable housing using bamboo — with the winning design built full-scale in Bali.
Computational Design & Education: Beegraphy Design Awards Introduces 7th Category (Featuring Jiyun's Innovative Approach)
Dive into Beegraphy’s 7th Design Awards category, where computational design meets education to create immersive, interactive learning tools, inspired by Jiyun’s work.
From Parametric Lighting to Urban Furniture: Join the 2nd Workshop in Beegraphy’s Computational Design Series
Dive into Cutting-Edge Design Techniques and Practical Applications with Industry Experts
Explore Architecture Competitions
Discover active competitions in this discipline
The International Standard for Design Portfolios
The Global Benchmark for Architecture Dissertation Awards
The Global Benchmark for Graduation Excellence
Challenge to reimagine the Iron Throne
Comments (0)
Please login or sign up to add comments
No comments yet. Be the first to comment!