Minimalist Café Architecture in Thailand: Bun Pastry & Beverages by Architect Nonsense
Bun Pastry & Beverages showcases minimalist café design, blending functionality, biophilic elements, and seamless indoor-outdoor transitions in Thailand.
In the heart of Thaimuang District, Phang Nga Province, Thailand, lies Bun Pastry & Beverages, a café that exemplifies the perfect fusion of minimalist architecture and biophilic design. Designed by Architect Nonsense, this 100 m² space is a testament to how thoughtful design can create a functional, inviting, and visually stunning environment.


The Concept: Minimalism Meets Biophilic Design
The café’s design revolves around the owner’s vision of integrating a pastry and coffee shop into their residential space. The architects focused on creating a layout that supports daily baking activities while fostering a cozy atmosphere for both family and patrons. The result is a space that seamlessly blends indoor and outdoor elements, offering a tranquil retreat for coffee and pastry enthusiasts.


Site-Specific Design Strategies
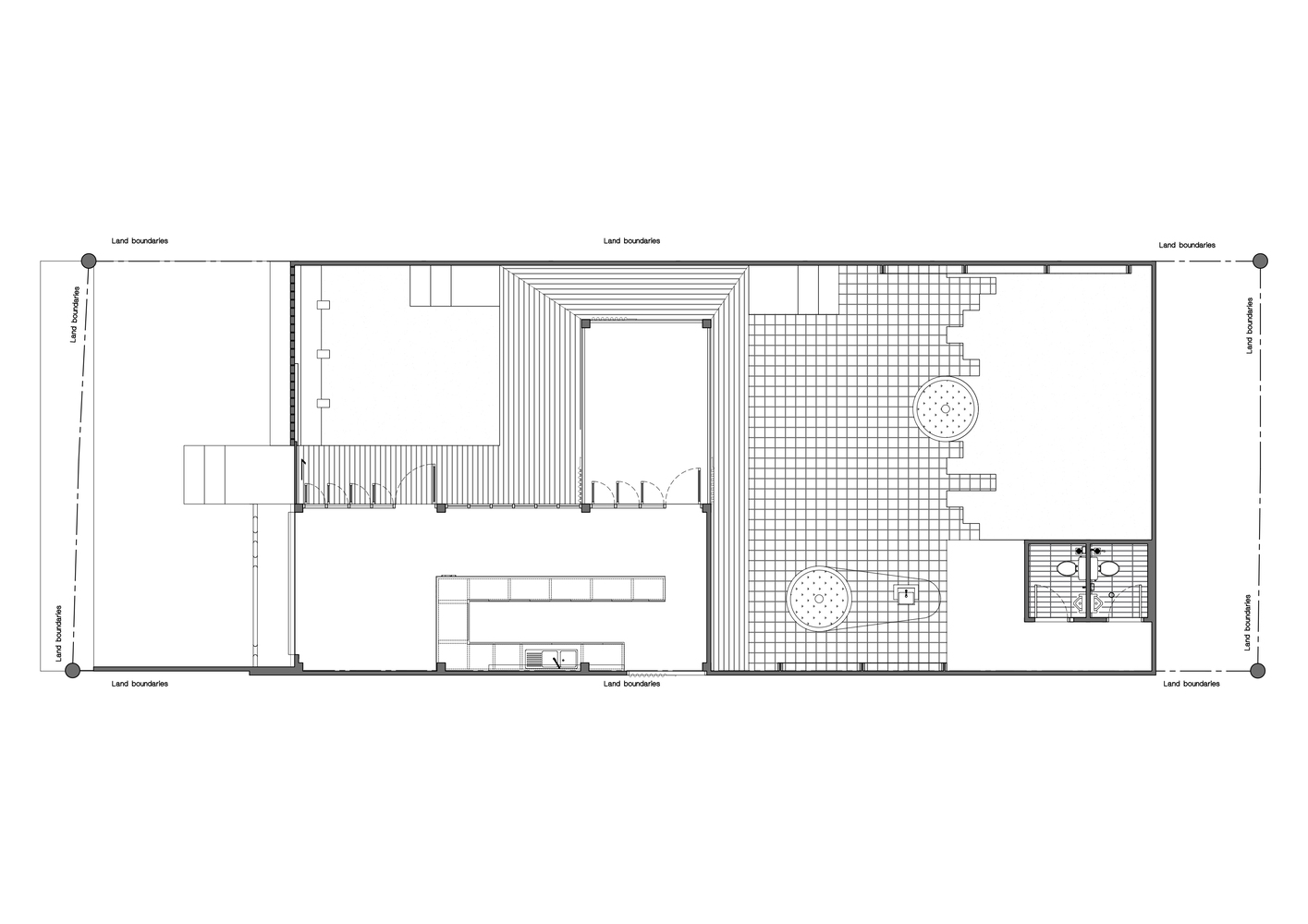
The rectangular plot, measuring 14 meters in width and 30 meters in depth, posed unique challenges and opportunities. The architects opted for a linear layout to maximize spatial efficiency. To address the site’s constraints, they set the front boundary 5 meters back from the street, creating a forecourt with a gravel garden for bicycle parking. This not only caters to the local cycling community but also enhances the visual depth of the façade.


Natural Ventilation and Privacy
A natural wind corridor at the rear of the property inspired the use of ventilation blocks on the café’s façade. These blocks facilitate cross ventilation while acting as a privacy screen, subtly controlling views into the interior garden. The centrally positioned entrance path leads visitors through a long corridor into the main café space, creating a sense of discovery and anticipation.



Dynamic Spatial Interplay
The split-level design adds a dynamic spatial interplay, connecting the front and rear gardens. The extended roof overhang provides protection from rain and sunlight, ensuring a comfortable semi-outdoor experience. This design choice not only enhances functionality but also creates a visually engaging environment.


Material Palette: Exposed Concrete and Reclaimed Wood
The café’s material palette is a nod to minimalist architecture, featuring exposed concrete and wood. Reclaimed wood from the owner’s collection was repurposed for the counter bar, shelves, and roof structure, adding a touch of warmth and sustainability. The textured dark gray plaster walls, crafted using PVC sheets, introduce subtle visual interest to the otherwise minimalist design.



Seamless Indoor-Outdoor Transitions
The café’s front façade features full-height glazing, inviting natural light into the interior while offering an engaging view of the street. This design choice balances the serene indoor ambiance with the dynamic outdoor activity, creating a harmonious connection between the two spaces.



Bun Pastry & Beverages is more than just a café; it’s a celebration of minimalist architecture and biophilic design. By seamlessly integrating indoor and outdoor spaces, the architects have created a warm, inviting, and functional environment that resonates with the local lifestyle. This project serves as an inspiration for how thoughtful design can transform a simple space into a tranquil retreat.


All Photographs are works of Thanarit jirarapeephan
Popular Articles
Popular articles from the community
Solar Steam: A Climate-Responsive Architecture That Redefines the Monument
A climate-responsive memorial architecture that transforms heat, decay, and time into a living system reflecting humanity’s ecological impact.
Fifth NRE Jazz Club – De Bever Architecten: Eindhoven’s Revitalized Cultural Hub
Historic gas factory transformed into Fifth NRE Jazz Club blending modern sustainability, jazz culture, dining, and heritage architecture seamlessly.
Inverted Architecture Installation by Studio Link-Arc: Exploring the Intersection of Architecture and Living Organisms
Inverted Architecture Installation by Studio Link-Arc blends mycelium, sustainability, inverted design, ecological cycles, and urban adaptive architecture in Shenzhen.
Split House: A Compact Urban Home Blending Privacy, Light, and Flexible Living in Japan
Compact Japanese home featuring DOMA space, flexible café potential, passive lighting, privacy zoning, and sustainable urban living design.
Similar Reads
You might also enjoy these articles
The Ken Roberts Memorial Delineation Competition (Krob)
As the most senior architectural drawing competition currently in operation anywhere in the world, it draws hundreds of entries each year, awarding the very best submissions in a series of medium-based categories.
Waterfront Redevelopment and Urban Revitalization in Mumbai: Forging a New Dawn for Darukhana
A transformative waterfront redevelopment project reimagining Darukhana’s shipbreaking heritage into an inclusive urban future.
OUT-OF-MAP: A Call for Postcards on Feminist Narratives of Public Space
Rhizoma Design and Research Lab invites artists, designers, architects, researchers, and students to reflect on how feminist perspectives can reshape public space. Selected works will be exhibited in Barcelona, October 2026. Submissions open until 15 April 2026.
Documentation Work on Buddhist Wooden Temple
Architectural syncretism and cultural hybridity: A comparative study of the Buddhist temples in Chattogram Hill tracks
Explore Architecture Competitions
Discover active competitions in this discipline
The International Standard for Design Portfolios
The Global Benchmark for Architecture Dissertation Awards
The Global Benchmark for Graduation Excellence
Challenge to reimagine the Iron Throne
Comments (0)
Please login or sign up to add comments
No comments yet. Be the first to comment!