Modern Forest Chalet Design: Chalet Le Thuya by MacDonald Architecture + Design
Chalet Le Thuya combines modern architecture with nature, offering a serene retreat that fosters relaxation and connection with the environment.
Introduction to Chalet Le Thuya
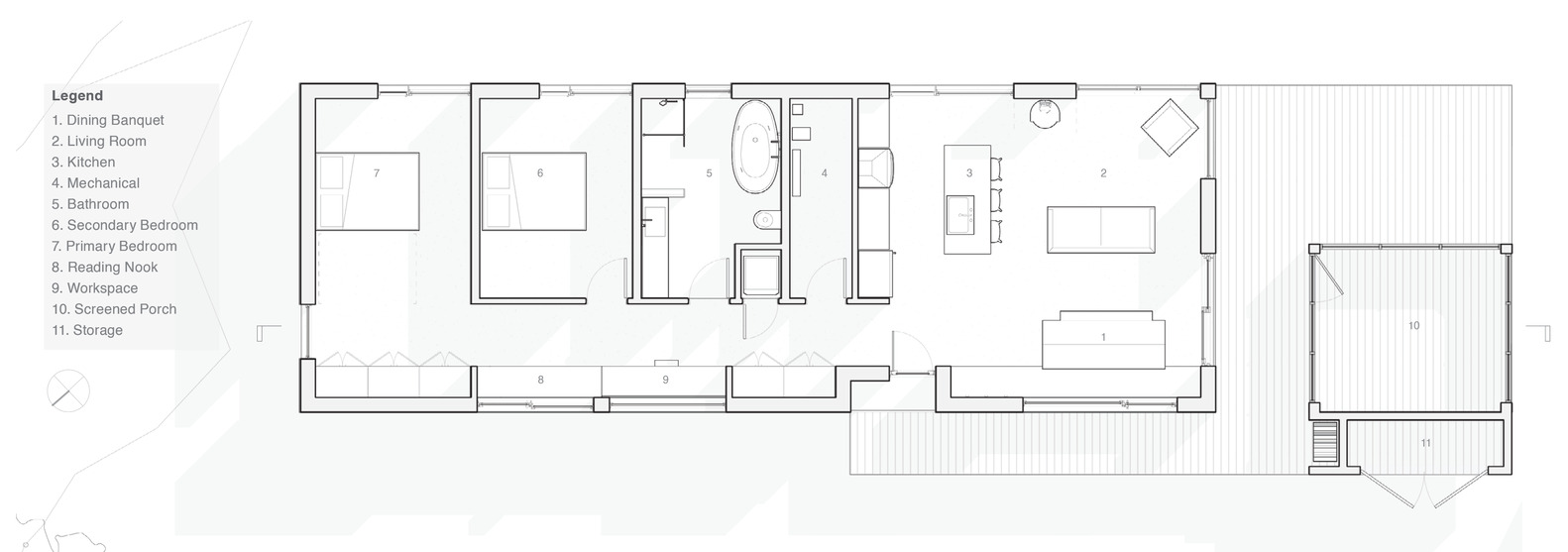
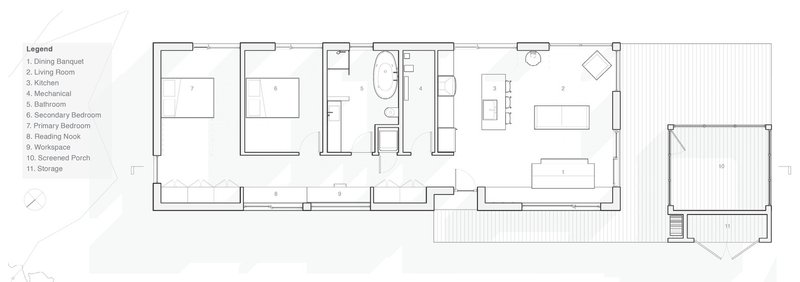
Chalet Le Thuya is a serene and sophisticated nature retreat located in the tranquil region of Sainte-Émélie-de-l'Énergie, Canada. Nestled along the banks of the Le Prohon River and surrounded by a lush mixed forest, the design of this architectural marvel is the work of Joshua MacDonald. Emphasizing a seamless blend between modern architecture and the natural environment, Chalet Le Thuya offers guests a refreshing escape into nature, combining contemporary design with comfort and tranquility. With an area of 1,415 ft², this retreat is the perfect embodiment of luxury in a natural setting.




The Vision: A Fusion of Nature and Architecture
The design of Chalet Le Thuya began with a commitment to preserve the natural beauty of its surroundings. The architects sought to create a space where guests could immerse themselves in nature while experiencing the best of modern design. Inspired by the stunning landscape, the goal was not only to construct a functional space but to create an experience that fosters relaxation and rejuvenation. Every aspect of the design centers around harmony with the environment, offering both visual beauty and comfort.






Design Philosophy: Sustainable Architecture in Nature
Joshua MacDonald’s design philosophy is rooted in sustainability and creating welcoming, functional spaces that merge seamlessly with nature. Throughout the chalet, large windows open up to spectacular views of the forest and river, flooding the interiors with natural light and connecting guests with the wilderness outside. The materials selected for the building were chosen not only for their durability but also for their ability to reflect the surrounding environment, enhancing the natural aesthetic of the chalet.




Interior Design: Simple, Elegant, and Connected to Nature
The interiors of Chalet Le Thuya emphasize simplicity and elegance. The open-plan kitchen, often considered the heart of the home, blends functionality with aesthetics, creating a warm, inviting space for guests to gather. The layout flows naturally, with every room designed to maximize the experience of the surrounding nature. From the living area to the two bedrooms, each space was created with care, ensuring both comfort and a connection to the outdoors. The bathroom, designed with large windows, provides guests with calming views of the surrounding forest.




A Haven for Nature Lovers
Chalet Le Thuya is designed to accommodate four guests in two cozy, comfortable bedrooms, making it the perfect retreat for small groups or couples looking to escape into nature. The modern bathroom offers an additional level of comfort and sophistication, while the two terraces—one covered—allow guests to enjoy the outdoors regardless of the season. Whether you're relaxing by the fire, reading a book with nature as a backdrop, or simply enjoying the sights and sounds of the forest, Chalet Le Thuya offers a unique experience that invites peace and reflection.



Year-Round Comfort in a Natural Setting
The design of Chalet Le Thuya ensures that it remains a comfortable and inviting space year-round. The terraces offer outdoor enjoyment, no matter the weather, and the chalet’s natural materials and eco-friendly design make it the perfect place to unwind in any season. Guests can fully immerse themselves in the beauty of Lanaudière’s wild landscapes, knowing that the retreat is both sustainable and comfortable, offering a perfect escape from everyday life.








An Architectural Retreat with Purpose
Chalet Le Thuya goes beyond the typical nature retreat by offering guests a space that not only supports relaxation but also invites a deeper connection with the natural world. Its design highlights the importance of sustainable architecture in preserving the environment, while offering a modern, comfortable, and serene experience. The chalet stands as a testament to the power of architecture to create meaningful, immersive spaces that enhance the natural world.




All photographs are work of Joshua MacDonald
Popular Articles
Popular articles from the community
Split House: A Compact Urban Home Blending Privacy, Light, and Flexible Living in Japan
Compact Japanese home featuring DOMA space, flexible café potential, passive lighting, privacy zoning, and sustainable urban living design.
Solar Steam: A Climate-Responsive Architecture That Redefines the Monument
A climate-responsive memorial architecture that transforms heat, decay, and time into a living system reflecting humanity’s ecological impact.
Gads Hill Early Learning Center by JGMA: Adaptive Reuse Shaping Community-Focused Educational Architecture
Adaptive reuse transforms fragmented structure into vibrant early learning center with playful façade, natural light, and community-focused sustainable design.
Free Architecture Competitions You Can Enter Right Now
No entry fees, real prizes. Here are the best free architecture competitions open for submissions in 2026.
Similar Reads
You might also enjoy these articles
The Ken Roberts Memorial Delineation Competition (Krob)
As the most senior architectural drawing competition currently in operation anywhere in the world, it draws hundreds of entries each year, awarding the very best submissions in a series of medium-based categories.
Waterfront Redevelopment and Urban Revitalization in Mumbai: Forging a New Dawn for Darukhana
A transformative waterfront redevelopment project reimagining Darukhana’s shipbreaking heritage into an inclusive urban future.
OUT-OF-MAP: A Call for Postcards on Feminist Narratives of Public Space
Rhizoma Design and Research Lab invites artists, designers, architects, researchers, and students to reflect on how feminist perspectives can reshape public space. Selected works will be exhibited in Barcelona, October 2026. Submissions open until 15 April 2026.
Documentation Work on Buddhist Wooden Temple
Architectural syncretism and cultural hybridity: A comparative study of the Buddhist temples in Chattogram Hill tracks
Explore Architecture Competitions
Discover active competitions in this discipline
The International Standard for Design Portfolios
The Global Benchmark for Architecture Dissertation Awards
The Global Benchmark for Graduation Excellence
Challenge to design luxury tourism on rails
Comments (0)
Please login or sign up to add comments
No comments yet. Be the first to comment!