Modern Renovation of Historic Homes in Thailand: A Case Study of The S Wall House by COLLAGE DESIGN STUDIO
This article explores the S Wall House in Thailand, highlighting its transformation from a historic structure to a modern, functional home.
Renovating historic homes presents a unique set of challenges and opportunities, especially in culturally rich landscapes like Thailand. The S Wall House in Bangkok exemplifies how architects can preserve the soul of historic homes while infusing them with modern functionality and aesthetics.



Overview of The S Wall House Project
Historical Background and Renovation Motive
The S Wall House, located in Khet Chatuchak, Bangkok, originally built over fifty years ago, was more than just a structure; it was a repository of familial history and memories. After falling into disrepair, the renovation aimed to resurrect the house as a vibrant, functional space reflective of both its heritage and contemporary design.



Design Vision and Objectives
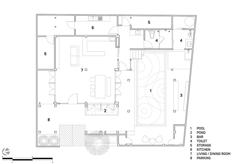
Led by COLLAGE DESIGN STUDIO, the renovation was driven by the dual objectives of preserving the structural integrity and historical value of the house while introducing modern living amenities. The project centered around creating a home that was not only a living space but also a place for family gatherings, complete with a swimming pool and outdoor bar.



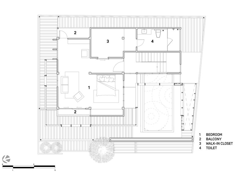
Key Features of The S Wall House Renovation
Structural Preservation and Enhancement
Reinforced Concrete Framework
The discovery of the house’s original reinforced concrete columns and beams, engineered by the owner's father, informed much of the structural preservation efforts. These elements were incorporated into the new design, symbolizing strength and continuity.


Timber Elements
The original wooden floor planks, noted for their quality and width, were carefully preserved and repurposed within the new design, blending the house’s historical elements with new architectural features.


Architectural Innovations
The S Wall
A distinctive feature of the renovation is the 'S' shaped wall made from fiber cement panels. This wall not only enhances privacy but also serves as a symbolic façade that weaves the past with the present. It’s a design element that both protects and showcases the boundary between the old and the new.


Open Living Spaces
The ground floor transformation into an open, light-filled living area, called Taitun (traditional open space under a Thai house), epitomizes the blending of indoor and outdoor spaces, a hallmark of both traditional Thai and modern tropical architecture.


Integrating Sustainability and Modernity
Materials and Methods
Sustainable practices were central to the renovation, with a focus on utilizing locally sourced materials and repurposing existing elements wherever possible. This approach not only reduced the environmental impact but also helped maintain the architectural integrity of the original structure.



Contemporary Living Enhancements
The addition of modern amenities like the swimming pool and the outdoor bar area were designed to enhance the usability of the space, making it suitable for contemporary lifestyles while respecting the building’s historical essence.




The Future of Historical Renovations in Thailand
The S Wall House by COLLAGE DESIGN STUDIO stands as a beacon for future renovations of historic homes in Thailand. It exemplifies how sensitive architectural interventions can breathe new life into old structures, creating spaces that honor their past while embracing modern functionality. This project sets a precedent for how heritage homes can be thoughtfully preserved and transformed in urban Thai settings.




All photographs are work of Witsawarut Kekina
Popular Articles
Popular articles from the community
The Ken Roberts Memorial Delineation Competition (Krob)
As the most senior architectural drawing competition currently in operation anywhere in the world, it draws hundreds of entries each year, awarding the very best submissions in a series of medium-based categories.
Treehouse Apartment: A Warm Timber Interior Blending Craft, Play, and Contemporary Living
Warm timber apartment with integrated treehouse, combining natural materials, craftsmanship, and playful design to create a flexible, family-oriented living environment.
Solar Steam: A Climate-Responsive Architecture That Redefines the Monument
A climate-responsive memorial architecture that transforms heat, decay, and time into a living system reflecting humanity’s ecological impact.
Atelier Macri Concept Store Interior Design by CASE-REAL
Atelier Macri store features a "ko" counter, walnut wood details, cork displays, blending retail, gallery, and seamless customer experiences.
Similar Reads
You might also enjoy these articles
The Ken Roberts Memorial Delineation Competition (Krob)
As the most senior architectural drawing competition currently in operation anywhere in the world, it draws hundreds of entries each year, awarding the very best submissions in a series of medium-based categories.
Waterfront Redevelopment and Urban Revitalization in Mumbai: Forging a New Dawn for Darukhana
A transformative waterfront redevelopment project reimagining Darukhana’s shipbreaking heritage into an inclusive urban future.
OUT-OF-MAP: A Call for Postcards on Feminist Narratives of Public Space
Rhizoma Design and Research Lab invites artists, designers, architects, researchers, and students to reflect on how feminist perspectives can reshape public space. Selected works will be exhibited in Barcelona, October 2026. Submissions open until 15 April 2026.
Documentation Work on Buddhist Wooden Temple
Architectural syncretism and cultural hybridity: A comparative study of the Buddhist temples in Chattogram Hill tracks
Explore Architecture Competitions
Discover active competitions in this discipline
The International Standard for Design Portfolios
The Global Benchmark for Architecture Dissertation Awards
The Global Benchmark for Graduation Excellence
Challenge to reimagine the Iron Throne
Comments (0)
Please login or sign up to add comments
No comments yet. Be the first to comment!