Molteni&C Pavilion by Vincent Van Duysen Architects
The Molteni&C Pavilion by Vincent Van Duysen Architects blends modernist geometry, courtyards, and gardens, redefining Italian hospitality architecture in Giussano.
A Contemporary Courtyard Redefining Hospitality Architecture in Italy
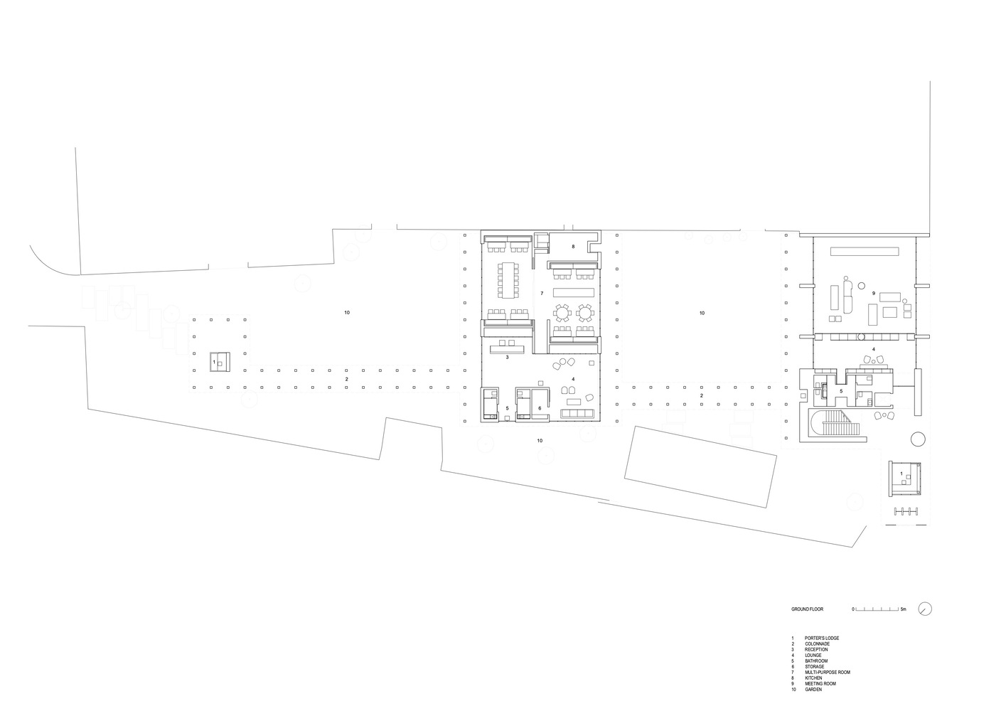
The Molteni&C Pavilion, designed by Vincent Van Duysen Architects, is a landmark project in Giussano, Italy. Completed in 2022, the 1,146 m² pavilion redefines the relationship between indoor and outdoor spaces, offering a unique spatial experience that reflects the philosophy of modernist design, hospitality, and Italian craftsmanship.


Architectural Vision
Redefining Domestic Dialogue
The project originated from the idea of extending the dialogue between different domestic environments. By transforming the ground floor of Molteni’s headquarters, the architects created a linear redevelopment system anchored around a new courtyard.
Cloister-Inspired Courtyard
At the heart of the pavilion lies a cloister-like courtyard, conceived as an outdoor living space. This courtyard acts as both a transitional and experiential element, guiding visitors from the entrance toward the company showroom, while creating moments of pause and contemplation.


Spatial Composition
Pathways and Sculptural Garden
Columned pathways filter views of the lush garden, where Molteni’s outdoor furniture collections are presented like sculptural installations. Carefully integrated with greenery, these curated displays transform the garden into a living exhibition space.
Concrete Frames and Modernist Geometry
The pavilion’s spatial rhythm is defined by two horizontal concrete planes—floor and ceiling—containing dark volumetric elements. This interplay of light, shadow, and materiality emphasizes modernist simplicity, balancing permanence with openness.


Design Language and Materials
Glass, Volumes, and Transparency
Large glass surfaces and simple geometric volumes create a sense of transparency and continuity. The architecture draws inspiration from modernist traditions, while refined material selections provide warmth and tactility.
Seamless Connection to Headquarters
Subtly linked to the main Molteni headquarters, the pavilion strengthens the brand’s identity while introducing new outdoor spaces that blur the boundaries between architecture and landscape.

Brand Identity and Collaboration
Integration of Craftsmanship
The pavilion embodies the holistic approach of Molteni&C, integrating architecture, furniture, and materiality into one immersive experience. Manufacturers such as Fantini, Molteni & C, and OLIVARI contributed to the project, while Molteni’s own construction division ensured precise execution.
A Cultural Expression of Italian Design
The pavilion is not only an architectural project but also a symbol of Italian design excellence. It reflects Vincent Van Duysen’s philosophy of sensorial engagement and spatial continuity, reinforcing Molteni’s global position in luxury living and contemporary design.
The Molteni&C Pavilion by Vincent Van Duysen Architects goes beyond architecture—it is a carefully orchestrated journey of space, material, and experience. By merging modernist clarity with hospitality-driven openness, it reimagines the role of a showroom as a place of interaction, culture, and timeless design.

All Photographs are works of Max Zambelli, DSL Studio
Popular Articles
Popular articles from the community
Gads Hill Early Learning Center by JGMA: Adaptive Reuse Shaping Community-Focused Educational Architecture
Adaptive reuse transforms fragmented structure into vibrant early learning center with playful façade, natural light, and community-focused sustainable design.
Free Architecture Competitions You Can Enter Right Now
No entry fees, real prizes. Here are the best free architecture competitions open for submissions in 2026.
Split House: A Compact Urban Home Blending Privacy, Light, and Flexible Living in Japan
Compact Japanese home featuring DOMA space, flexible café potential, passive lighting, privacy zoning, and sustainable urban living design.
The Ken Roberts Memorial Delineation Competition (Krob)
As the most senior architectural drawing competition currently in operation anywhere in the world, it draws hundreds of entries each year, awarding the very best submissions in a series of medium-based categories.
Similar Reads
You might also enjoy these articles
The Ken Roberts Memorial Delineation Competition (Krob)
As the most senior architectural drawing competition currently in operation anywhere in the world, it draws hundreds of entries each year, awarding the very best submissions in a series of medium-based categories.
Waterfront Redevelopment and Urban Revitalization in Mumbai: Forging a New Dawn for Darukhana
A transformative waterfront redevelopment project reimagining Darukhana’s shipbreaking heritage into an inclusive urban future.
OUT-OF-MAP: A Call for Postcards on Feminist Narratives of Public Space
Rhizoma Design and Research Lab invites artists, designers, architects, researchers, and students to reflect on how feminist perspectives can reshape public space. Selected works will be exhibited in Barcelona, October 2026. Submissions open until 15 April 2026.
Documentation Work on Buddhist Wooden Temple
Architectural syncretism and cultural hybridity: A comparative study of the Buddhist temples in Chattogram Hill tracks
Explore Architecture Competitions
Discover active competitions in this discipline
The International Standard for Design Portfolios
The Global Benchmark for Architecture Dissertation Awards
The Global Benchmark for Graduation Excellence
Challenge to reimagine the Iron Throne
Comments (0)
Please login or sign up to add comments
No comments yet. Be the first to comment!