Narrow House Design in Vietnam: Linh Nam House by TOOB STUDIO
This article explores a narrow house design in Vietnam that transforms spatial constraints into poetic architecture through light and rooftop living.
Redefining Urban Living Through Light, Space, and Connection
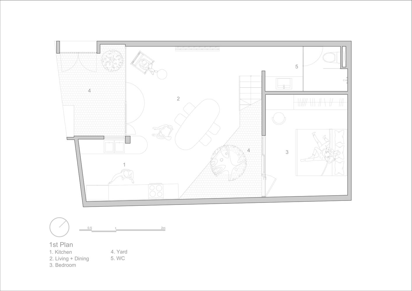
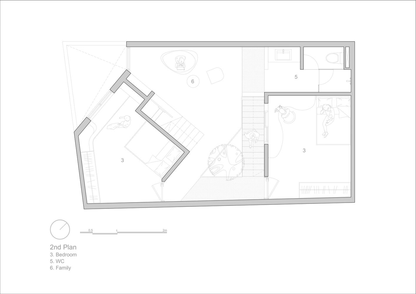
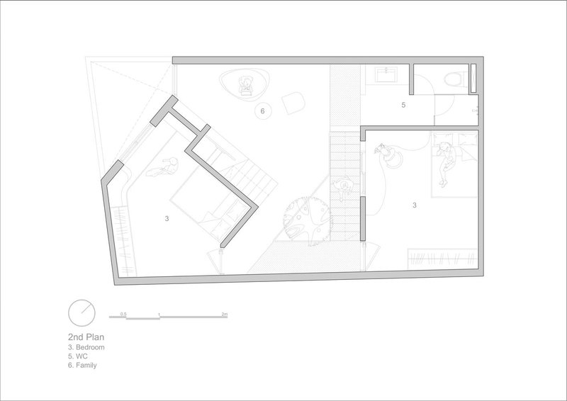
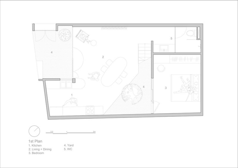
Linh Nam House by TOOB STUDIO is a poetic reinterpretation of narrow house design in the dense urban fabric of Hanoi, Vietnam. Accessible through a mere 1.5-meter-wide alleyway, this project is a masterclass in creating a harmonious spatial experience within extreme spatial limitations. The house not only embraces the surrounding constraints but turns them into opportunities for connection, light, and contemplation.




Crafting an Urban Valley Within a Tight Plot
Amid a crowded neighborhood of towering four-story buildings, the Linh Nam House stands modest in height yet rich in spatial innovation. The architects embraced the idea of an "urban valley," where the home sits quietly in the backdrop of taller structures, integrating seamlessly while preserving openness and privacy. The surrounding boundary walls become extensions of the house itself, helping to frame the rooftop as a vital part of the living experience.





Elevating Life to the Rooftop
In most dense cities, rooftops are residual, underutilized zones—but not here. Linh Nam House flips the script, transforming its rooftop into an essential living space. Open to sky and wind, it is designed to be both a recreational playground for children and a serene gathering area for adults. This elevated space becomes the soul of the home—a setting for memory-making and seasonal rituals that bring warmth and meaning to urban life.






Light as a Living Material
One of the most compelling aspects of this narrow house design is the delicate interplay of natural light and material texture. Sunlight penetrates through carefully placed openings, bouncing across surfaces of wood, concrete, and glass. It touches corners, traces lines, and shapes moments—turning everyday domestic routines into reflective, almost meditative experiences. The home becomes a living organism, evolving with the rhythms of the day and the angles of the sun.





Spatial Poetry Within Urban Constraints
Rather than fighting the limitations of the site, TOOB STUDIO embraced them, letting paradoxes inspire design. The compact footprint becomes an opportunity for vertical layering, while the lack of frontage inspires inward-looking courtyards and diagonal light shafts. The resulting architecture feels expansive, despite its narrow frame. Every floor plan, every material, and every visual corridor is finely tuned to foster openness, intimacy, and spatial rhythm.




Architecture That Embodies Balance
Linh Nam House is not just a dwelling—it’s an exploration of balance. Between light and shadow, private and public, dense context and spatial breath. It proves that narrow house design can go far beyond functionality to create emotionally resonant architecture. The project is a living narrative where architecture meets imagination and constraint fuels innovation.



All Photographs are works of Triệu Chiến
Popular Articles
Popular articles from the community
An Miên Lumière Cafe by xưởng xép, Ho Chi Minh City, Vietnam
An industrial-inspired café where layered steel and warm light create a dynamic, immersive environment shaped by reflection, depth, and perception.
The Ken Roberts Memorial Delineation Competition (Krob)
As the most senior architectural drawing competition currently in operation anywhere in the world, it draws hundreds of entries each year, awarding the very best submissions in a series of medium-based categories.
Louis Malle Cinema: A Limestone Cultural Landmark Revitalizing Community Life in Prayssac
Limestone cinema extension with public forecourt, blending heritage and modern design to create flexible cultural spaces and strengthen community interaction.
Solar Steam: A Climate-Responsive Architecture That Redefines the Monument
A climate-responsive memorial architecture that transforms heat, decay, and time into a living system reflecting humanity’s ecological impact.
Similar Reads
You might also enjoy these articles
The Ken Roberts Memorial Delineation Competition (Krob)
As the most senior architectural drawing competition currently in operation anywhere in the world, it draws hundreds of entries each year, awarding the very best submissions in a series of medium-based categories.
Waterfront Redevelopment and Urban Revitalization in Mumbai: Forging a New Dawn for Darukhana
A transformative waterfront redevelopment project reimagining Darukhana’s shipbreaking heritage into an inclusive urban future.
OUT-OF-MAP: A Call for Postcards on Feminist Narratives of Public Space
Rhizoma Design and Research Lab invites artists, designers, architects, researchers, and students to reflect on how feminist perspectives can reshape public space. Selected works will be exhibited in Barcelona, October 2026. Submissions open until 15 April 2026.
Documentation Work on Buddhist Wooden Temple
Architectural syncretism and cultural hybridity: A comparative study of the Buddhist temples in Chattogram Hill tracks
Explore Architecture Competitions
Discover active competitions in this discipline
The International Standard for Design Portfolios
The Global Benchmark for Architecture Dissertation Awards
The Global Benchmark for Graduation Excellence
Challenge to reimagine the Iron Throne
Comments (0)
Please login or sign up to add comments
No comments yet. Be the first to comment!