NGÂU House by Limdim House Studio: A Harmonious Blend of Nostalgia and Modernity in Vietnam
NGÂU House blends traditional Vietnamese materials with modern design, creating a warm, contextual home that honors its historic neighborhood.
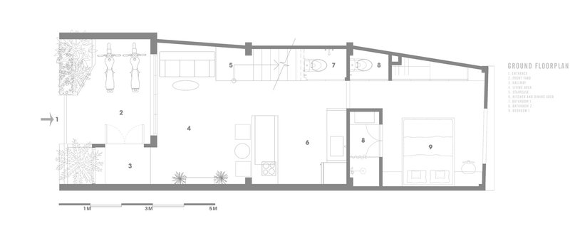
Nestled in a quiet alley within a residential enclave once designated for university professors in Vietnam, NGÂU House by Limdim House Studio stands as a delicate fusion of tradition and innovation. With a compact footprint of just 80 square meters, this 2023 residence offers a masterclass in thoughtful spatial planning, contextual sensitivity, and material storytelling.


Rooted in Local Symbolism
Named after the Ngâu tree—an indigenous plant known for its small leaves, enduring vitality, and subtle beauty—the house draws direct inspiration from this natural symbol. Much like the tree itself, the project embodies resilience, delicacy, and quiet charm, resonating deeply with its cultural and urban surroundings.


Preserving Collective Memory
In a neighborhood rich with history and community ties, the design team, led by Tran Ngo Chi Mai, embraced a contextual architecture approach. By incorporating repurposed wooden doors and combining them with contemporary architectural details, the house bridges the past and present, allowing for a modern lifestyle that still pays homage to its heritage.
The architects were acutely aware of the site’s limitations: a narrow alley that could complicate construction. Early planning ensured minimal disruption, preserving the long-standing neighborhood character while offering a new spatial narrative.


Warm Textures and Earthy Tones
Inside, the interior palette reflects the warmth of traditional Vietnamese homes. A combination of fired clay tiles, earthy oranges, and rich wood textures establishes a tactile environment that feels both grounded and comforting. Hand-laid mosaic tiles act as accent points throughout the house, offering visual interest and cultural flair.
The use of linen drapes and bamboo mesh curtains reinforces the project’s natural aesthetic while encouraging a tactile interaction with light, breeze, and privacy—elements that reflect a traditional Vietnamese way of living. Though more complex to use and maintain, these materials enhance the lived experience, grounding everyday activities in local heritage.


Exterior Elegance with Rustic Flair
On the outside, green-glazed ceramic tiles with ethnic motifs complement the textured clay brick courtyard, creating a layered material language that is both humble and expressive. The weathered, earthen tones of the exterior fencing contrast beautifully with the polished green hues, offering a rustic yet refined street presence.


An Enduring Urban Oasis
Ultimately, NGÂU House is more than just a residential project—it’s a quiet intervention that respects and uplifts its setting. By celebrating the poetry of reclaimed materials, handcrafted details, and cultural symbolism, Limdim House Studio has crafted a soulful urban retreat that honors the collective memory of its neighborhood while offering a timeless vision for contemporary Vietnamese living.


Popular Articles
Popular articles from the community
Atelier Macri Concept Store Interior Design by CASE-REAL
Atelier Macri store features a "ko" counter, walnut wood details, cork displays, blending retail, gallery, and seamless customer experiences.
Gads Hill Early Learning Center by JGMA: Adaptive Reuse Shaping Community-Focused Educational Architecture
Adaptive reuse transforms fragmented structure into vibrant early learning center with playful façade, natural light, and community-focused sustainable design.
Fifth NRE Jazz Club – De Bever Architecten: Eindhoven’s Revitalized Cultural Hub
Historic gas factory transformed into Fifth NRE Jazz Club blending modern sustainability, jazz culture, dining, and heritage architecture seamlessly.
Similar Reads
You might also enjoy these articles
The Ken Roberts Memorial Delineation Competition (Krob)
As the most senior architectural drawing competition currently in operation anywhere in the world, it draws hundreds of entries each year, awarding the very best submissions in a series of medium-based categories.
Waterfront Redevelopment and Urban Revitalization in Mumbai: Forging a New Dawn for Darukhana
A transformative waterfront redevelopment project reimagining Darukhana’s shipbreaking heritage into an inclusive urban future.
OUT-OF-MAP: A Call for Postcards on Feminist Narratives of Public Space
Rhizoma Design and Research Lab invites artists, designers, architects, researchers, and students to reflect on how feminist perspectives can reshape public space. Selected works will be exhibited in Barcelona, October 2026. Submissions open until 15 April 2026.
Documentation Work on Buddhist Wooden Temple
Architectural syncretism and cultural hybridity: A comparative study of the Buddhist temples in Chattogram Hill tracks
Explore Architecture Competitions
Discover active competitions in this discipline
The International Standard for Design Portfolios
The Global Benchmark for Architecture Dissertation Awards
The Global Benchmark for Graduation Excellence
Challenge to reimagine the Iron Throne
Comments (0)
Please login or sign up to add comments
No comments yet. Be the first to comment!