North Boulder Library Architecture by WORKac: A Community-Driven Sustainable Beacon in Colorado
A community-driven library in Boulder redefines public architecture through sustainability, inclusivity, and innovative triangular design by WORKac.
A Library Born from Community Aspirations
After more than two decades of anticipation, the North Boulder Library has finally become a reality. Designed by the acclaimed New York-based architecture firm WORKac, the project began in 2018 when the Boulder Public Library issued an open RFP for a new branch in the city's growing North Boulder neighborhood. While many competitors interpreted the request for an “iconic” design as a call for visual spectacle, WORKac responded with a more profound vision—one that centers sustainability, inclusivity, and civic engagement at its core.



WORKac’s winning approach proposed that architecture could be iconic not through form alone, but through the building’s long-term social and environmental contribution. Led by Amale Andraos and Dan Wood, the firm positioned the library as a transformative civic space that would directly reflect and serve the diverse needs of its community.



Deep Roots in Community Engagement
The North Boulder Library is the result of nearly eight years of design and planning, including a three-year intensive community engagement process. Throughout this time, WORKac presented the evolving design to community stakeholders, local government, and neighborhood residents over twenty times. The chosen triangular site, bordered by Broadway and Three Mile Creek, offers stunning views of the Flatirons and serves as a convergence point for a diverse population—including young professionals, local artists, and Boulder's largest Spanish-speaking community living in nearby manufactured home parks.



The architectural response to this context was highly intentional. WORKac designed the building to be both a symbolic and practical center of civic life. The design respects the scale of adjacent residences while inviting broader interaction through multiple entrances and public spaces that extend into the surrounding park and neighborhood.



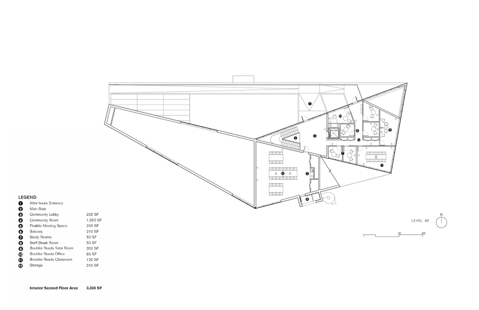
Triangular Geometry and Functional Innovation
Responding directly to the triangular geometry of the site, the building adopts a similarly angular form that influences both exterior expression and interior experience. This convergence of shapes results in spatial surprises that unfold throughout the structure. The building’s plan maximizes flexibility and openness while embedding distinct zones for focused programs.



On the main floor, a spacious reading room serves adult patrons, while a separate children's area offers a private story nook, playful climbing structures, and a slide that connects with an outdoor playground. Adjacent to these areas, the Maker Kitchen provides hands-on educational experiences and is directly linked to an edible garden that fosters community interaction and environmental awareness.



A fully accessible ramp leads to second-floor classrooms and community spaces, which are intentionally designed to be open after hours. This not only enhances the building’s utility but also affirms its role as a true neighborhood hub. Enhancing this experience is a whimsical public art installation by Montreal-based collective Daily tous les jours, which plays music as visitors ascend or descend the ramp.


A Material and Cultural Tapestry
The architecture of the North Boulder Library reflects both local identity and broader cultural narratives. Inside, custom-designed wallpaper by Andrew Freeman incorporates historical photos from Boulder’s archives, including references to indigenous heritage. Exposed ceiling structures contribute to both acoustic performance and a raw, honest materiality that defines the space’s character.

Externally, the building harmonizes with its natural environment. Expansive windows frame panoramic mountain views, while strategic shading and insulation optimize energy efficiency. The library’s material palette—featuring contributions from manufacturers like Holcim, Forbo, and Guardian Glass—supports both aesthetics and performance. The project also incorporates a rain garden with native flora, which filters runoff and enhances biodiversity.

Architecture with Purpose and Sustainability
Despite economic challenges brought on by the COVID-19 pandemic, the North Boulder Library maintains high environmental standards. Although some net-zero aspirations had to be adjusted, the building includes a rooftop solar array that significantly offsets its energy consumption. The library also conforms to Boulder’s rigorous sustainability regulations, ensuring long-term environmental responsibility.

WORKac’s approach exemplifies architecture that is not only visually striking but also deeply attuned to its users and ecological context. Their philosophy of “resolute realism” and “polemical optimism” manifests in a design that is both grounded and imaginative. This project continues the trajectory of the firm’s prior successes, such as the Kew Gardens Hills Library in New York and the playfully vibrant Miami Museum Garage.

A Progressive Civic Landmark
Opened on June 29, 2024, to a crowd of more than 3,000 attendees, the North Boulder Library stands as a testament to the power of community-driven design. Entirely funded by the City of Boulder, the project illustrates how public architecture can embody progressive values without sacrificing aesthetics or function. With a modest 12,800 square-foot footprint, the building proves that even small civic spaces can achieve monumental social impact.


WORKac’s North Boulder Library is more than just a repository of books—it is a catalyst for connection, creativity, and climate-conscious living. Its layered spatial narrative, rooted in both place and people, elevates it to a model for future public libraries. As the firm continues work on projects like the Beirut Art Museum and academic buildings at Vassar College, this library stands as a glowing example of what architecture can accomplish when driven by purpose, collaboration, and community trust.

All Photographs are works of Bruce Damonte
Popular Articles
Popular articles from the community
Gads Hill Early Learning Center by JGMA: Adaptive Reuse Shaping Community-Focused Educational Architecture
Adaptive reuse transforms fragmented structure into vibrant early learning center with playful façade, natural light, and community-focused sustainable design.
Inverted Architecture Installation by Studio Link-Arc: Exploring the Intersection of Architecture and Living Organisms
Inverted Architecture Installation by Studio Link-Arc blends mycelium, sustainability, inverted design, ecological cycles, and urban adaptive architecture in Shenzhen.
Fifth NRE Jazz Club – De Bever Architecten: Eindhoven’s Revitalized Cultural Hub
Historic gas factory transformed into Fifth NRE Jazz Club blending modern sustainability, jazz culture, dining, and heritage architecture seamlessly.
Free Architecture Competitions You Can Enter Right Now
No entry fees, real prizes. Here are the best free architecture competitions open for submissions in 2026.
Similar Reads
You might also enjoy these articles
Bamboo Housing Challenge 2026: Design Affordable, Sustainable Homes Using Bamboo
An international design competition by Bamboo U and IBUKU inviting architects and designers to reimagine affordable housing using bamboo — with the winning design built full-scale in Bali.
Computational Design & Education: Beegraphy Design Awards Introduces 7th Category (Featuring Jiyun's Innovative Approach)
Dive into Beegraphy’s 7th Design Awards category, where computational design meets education to create immersive, interactive learning tools, inspired by Jiyun’s work.
From Parametric Lighting to Urban Furniture: Join the 2nd Workshop in Beegraphy’s Computational Design Series
Dive into Cutting-Edge Design Techniques and Practical Applications with Industry Experts
Explore Architecture Competitions
Discover active competitions in this discipline
The International Standard for Design Portfolios
The Global Benchmark for Architecture Dissertation Awards
The Global Benchmark for Graduation Excellence
Challenge to reimagine the Iron Throne
Comments (0)
Please login or sign up to add comments
No comments yet. Be the first to comment!