Okinawan Villa Architecture: YAWN YARD Kouri Island by Jo Nagasaka + Schemata Architects
YAWN YARD Kouri Island redefines Okinawan villa architecture, blending modern design with traditional craftsmanship and seamless indoor-outdoor living.
A Seamless Blend of Culture and Design
The YAWN YARD Kouri Island, designed by Jo Nagasaka + Schemata Architects, epitomizes the essence of Okinawan villa architecture. Located on Kouri Island, Okinawa, this project combines traditional craftsmanship with contemporary design. It offers freestanding villas that celebrate privacy, semi-outdoor living, and the stunning natural environment of Okinawa.





Architectural Concept: Redefining Villa Living
Unique Site Adaptation
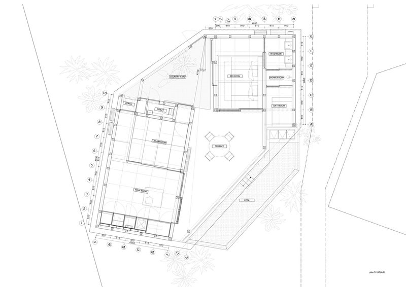
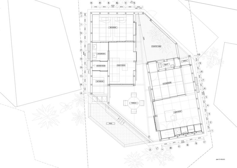
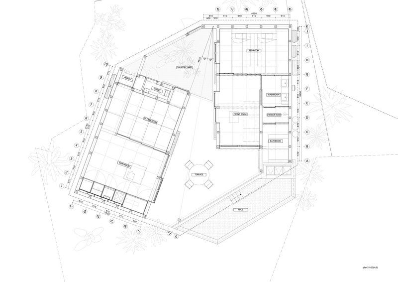
The project spans two distinct plots: a long, narrow site with undulating terrain and a trapezoidal site with elevation differences. These irregularities inspired the creation of V-shaped villas tailored to maximize sea views and adapt to the land's contours.





Inverted V-Shaped Design
The inverted V-shaped structures optimize privacy and functionality. Each villa incorporates two standardized plans, forming a cohesive yet diverse architectural language.
- Semi-Outdoor Spaces: Each V-shaped unit features a central semi-outdoor area for dining and relaxation.
- Functional Zoning: One wing houses the bedroom and kitchen, while the other includes the bathroom and additional sleeping areas.





Living in Harmony with Nature
Indoor-Outdoor Flow
The villas embrace Okinawa’s temperate climate, encouraging seamless transitions between indoor and outdoor spaces. Guests can:
- Dine with a View: Enjoy breakfast under the morning sun at the outdoor dining table.
- Relax by the Pool: Take a cooling dip in the semi-outdoor pool.
- Watch Sunsets: Admire the sunset reflected on the sea from the open dining area.




Sustainable Integration
- Natural Materials: Okinawan wood, Ryukyu bricks, and limestone feature prominently, fostering a connection with the local environment.
- Landscaping Harmony: Vegetation by Hiroki Iwamura ensures the villas blend seamlessly into the natural surroundings.



Cultural and Artistic Elements
Collaboration with Local Artisans
YAWN YARD celebrates Okinawan culture through collaboration:
- Furniture and Materials: Local artisans, such as Yuria Wood Workshop and Hachiman Tile Factory, crafted bespoke furniture and architectural elements.
- Art and Décor: Rie Tanji’s textured wallpaper-inspired art and locally sourced books enrich the interiors.




Culinary Experience
Takashi Ueta, a leading Okinawan chef, curated a menu and dining experience that introduces guests to the region’s culinary traditions.



Design Features: Thoughtful Details
Portable and Functional Furnishings
A standout element is the red, portable dining table, which reflects Okinawa's vibrant colors and is paired with adaptable lighting.





Lighting and Graphic Design
LPA’s lighting strategy complements the architecture’s minimalism, while Yoshiaki Irobe’s graphic design integrates signage with the natural and built environment.





A New Paradigm in Okinawan Villas
YAWN YARD Kouri Island redefines Okinawan villa architecture, blending cultural heritage, natural beauty, and modern design. The project not only provides luxurious accommodations but also deepens the connection between guests and Okinawa's unique environment and traditions.




All Photographs are work of Ju Yeon Lee
Popular Articles
Popular articles from the community
The Ken Roberts Memorial Delineation Competition (Krob)
As the most senior architectural drawing competition currently in operation anywhere in the world, it draws hundreds of entries each year, awarding the very best submissions in a series of medium-based categories.
Fifth NRE Jazz Club – De Bever Architecten: Eindhoven’s Revitalized Cultural Hub
Historic gas factory transformed into Fifth NRE Jazz Club blending modern sustainability, jazz culture, dining, and heritage architecture seamlessly.
Inverted Architecture Installation by Studio Link-Arc: Exploring the Intersection of Architecture and Living Organisms
Inverted Architecture Installation by Studio Link-Arc blends mycelium, sustainability, inverted design, ecological cycles, and urban adaptive architecture in Shenzhen.
Solar Steam: A Climate-Responsive Architecture That Redefines the Monument
A climate-responsive memorial architecture that transforms heat, decay, and time into a living system reflecting humanity’s ecological impact.
Similar Reads
You might also enjoy these articles
The Ken Roberts Memorial Delineation Competition (Krob)
As the most senior architectural drawing competition currently in operation anywhere in the world, it draws hundreds of entries each year, awarding the very best submissions in a series of medium-based categories.
Waterfront Redevelopment and Urban Revitalization in Mumbai: Forging a New Dawn for Darukhana
A transformative waterfront redevelopment project reimagining Darukhana’s shipbreaking heritage into an inclusive urban future.
OUT-OF-MAP: A Call for Postcards on Feminist Narratives of Public Space
Rhizoma Design and Research Lab invites artists, designers, architects, researchers, and students to reflect on how feminist perspectives can reshape public space. Selected works will be exhibited in Barcelona, October 2026. Submissions open until 15 April 2026.
Documentation Work on Buddhist Wooden Temple
Architectural syncretism and cultural hybridity: A comparative study of the Buddhist temples in Chattogram Hill tracks
Explore Architecture Competitions
Discover active competitions in this discipline
The International Standard for Design Portfolios
The Global Benchmark for Architecture Dissertation Awards
The Global Benchmark for Graduation Excellence
Challenge to reimagine the Iron Throne
Comments (0)
Please login or sign up to add comments
No comments yet. Be the first to comment!