Preserving Elegance: A Historic Villa Renovation in Prague by Papundekl Architects
Papundekl Architects revive elegance in Prague's historic Villa Vinohrady, seamlessly blending heritage with contemporary design.
Explore the timeless transformation of Villa Vinohrady in Prague, originally designed by architect Rudolf Kvech in 1925. Papundekl Architects breathe new life into this historic villa through a meticulous renovation, blending modern elements seamlessly with its heritage charm.









Preserving Timeless Qualities
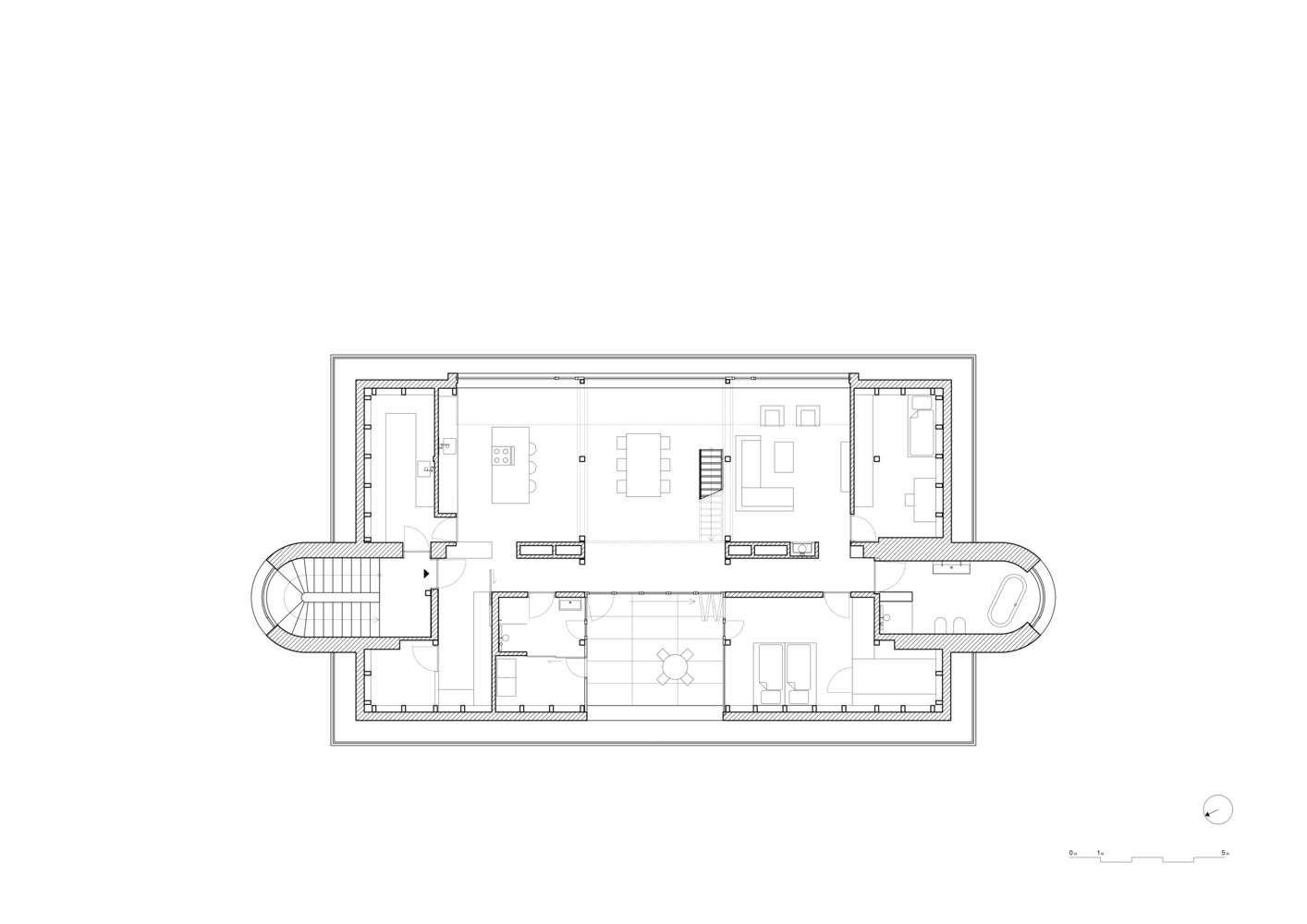
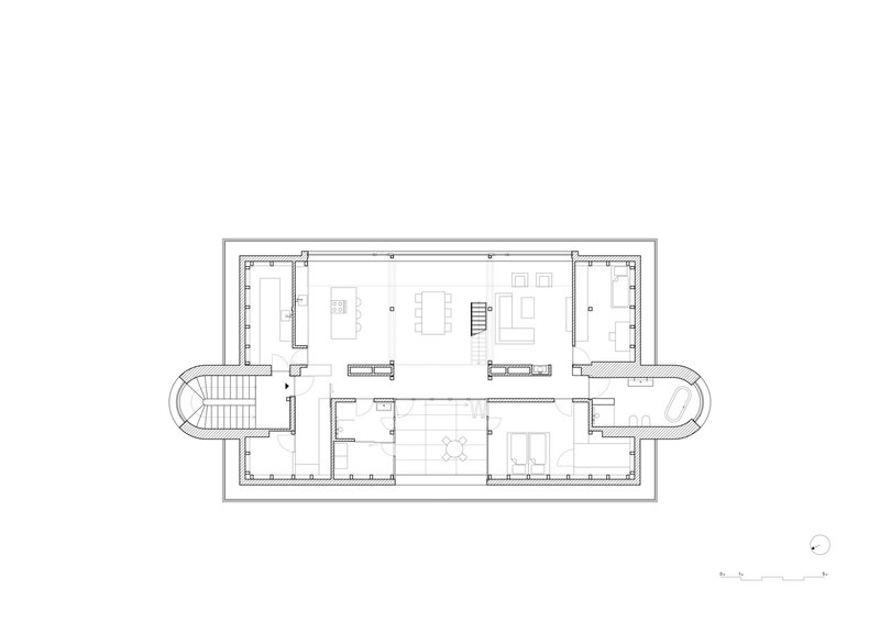
The article delves into the architect's decision to retain the basic mass and layout of the house, respecting the timeless qualities of the original design. The distinctive division into a brick plinth, plastered flats, and a high-hipped roof with clay tiles remains integral to the villa's character.









Contemporary Integration
Papundekl Architects propose an extension to the lower part of the house, seamlessly blending contemporary elements with the existing structure. The extension, detailed in the article, adds two new flats and a generous terrace with extensive greenery, creating a harmonious integration of old and new.







Technological Advancements and Utilitarian Design
The renovated villa incorporates contemporary technologies such as floor heating and ceiling capillary cooling. The new flats feature large glazing connecting to front gardens, while original apartments undergo layout modifications for a more generous living space. The utilitarian built-in furniture caters to the practical needs of rental units.







Duplex Apartment in the Attic
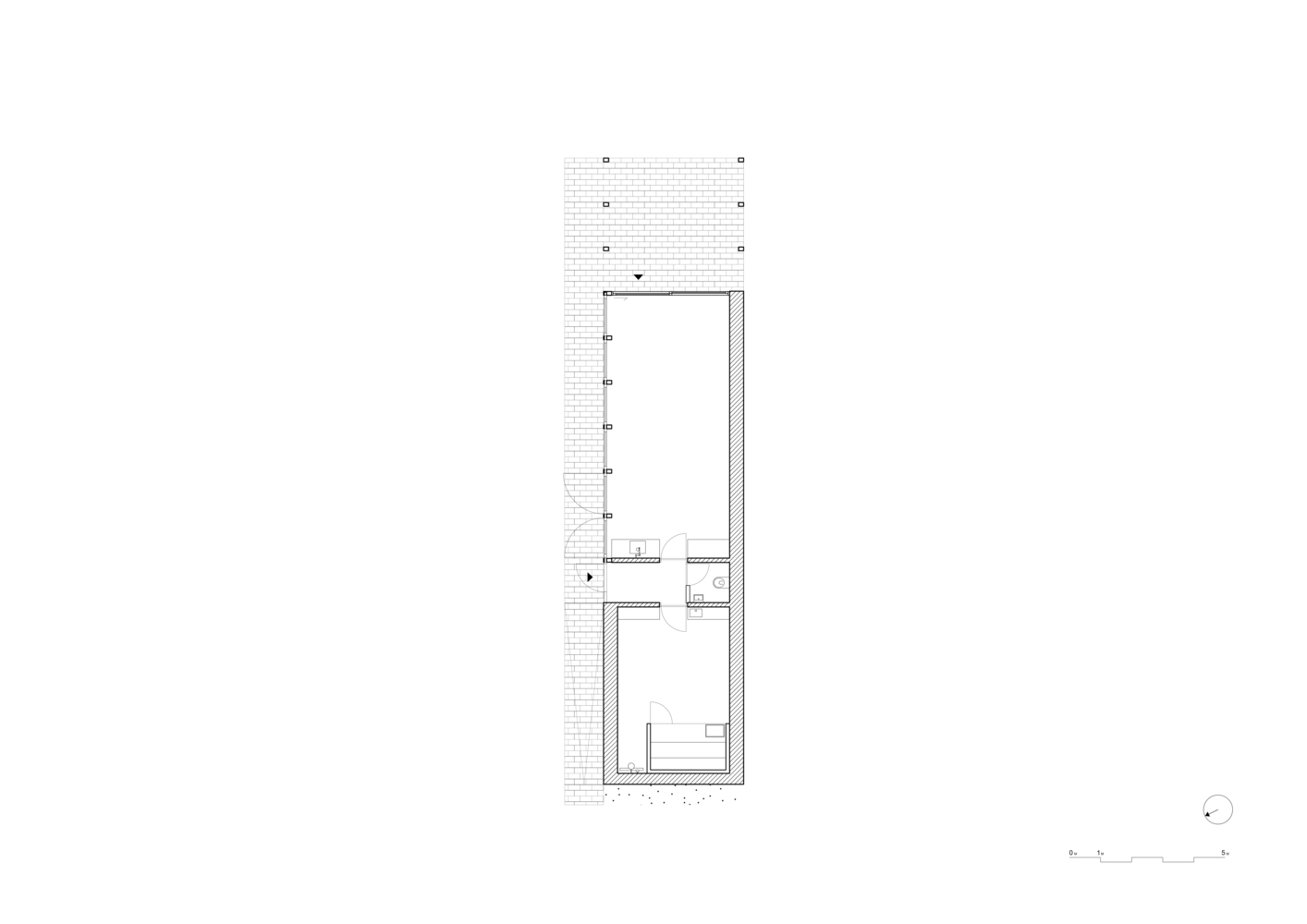
The attic is transformed into a spacious duplex apartment for the owner, showcasing the original wooden truss structures. The article highlights the use of above-roof insulation and birch plywood finishes, creating a neutral yet elegant interior in contrast with stainless steel features.




Garden Pavilion
Discover the garden pavilion at the western boundary, seamlessly aligning with the surrounding urban development. The pavilion, discussed in detail, serves as a tranquil space housing a sauna and exercise room while incorporating brick masonry as a characteristic feature, unifying the entire project.








Papundekl Architects' historic villa renovation in Prague successfully marries the elegance of the past with the functionality of the present. The meticulous preservation of architectural elements and thoughtful integration of modern design make Villa Vinohrady a testament to timeless beauty and contemporary living.
All Photographs are the work of Alex Shoots Buildings
Popular Articles
Popular articles from the community
Louis Malle Cinema: A Limestone Cultural Landmark Revitalizing Community Life in Prayssac
Limestone cinema extension with public forecourt, blending heritage and modern design to create flexible cultural spaces and strengthen community interaction.
On the Brooks House by Monsoon Collective – A Contemporary Kerala Home Rooted in Tradition
Kerala home blending tradition and modernity with water-inspired design, brick architecture, courtyard planning, and sustainable rainwater harvesting strategies.
Treehouse Apartment: A Warm Timber Interior Blending Craft, Play, and Contemporary Living
Warm timber apartment with integrated treehouse, combining natural materials, craftsmanship, and playful design to create a flexible, family-oriented living environment.
Flamboyant House by Juliana Camargo + Prumo Projetos
Modern Brazilian house integrating existing tree, pool, and volumes with glass, wood, and transitional spaces blending interior, exterior, and landscape seamlessly.
Similar Reads
You might also enjoy these articles
Bamboo Housing Challenge 2026: Design Affordable, Sustainable Homes Using Bamboo
An international design competition by Bamboo U and IBUKU inviting architects and designers to reimagine affordable housing using bamboo — with the winning design built full-scale in Bali.
Computational Design & Education: Beegraphy Design Awards Introduces 7th Category (Featuring Jiyun's Innovative Approach)
Dive into Beegraphy’s 7th Design Awards category, where computational design meets education to create immersive, interactive learning tools, inspired by Jiyun’s work.
From Parametric Lighting to Urban Furniture: Join the 2nd Workshop in Beegraphy’s Computational Design Series
Dive into Cutting-Edge Design Techniques and Practical Applications with Industry Experts
Introducing Sphere by UNI: Pioneering a New Era in AEC Industry
Unlocking Global Potential with BIM and Agile Management
Explore Resilient Design Competitions
Discover active competitions in this discipline
The Global Benchmark for Architecture Dissertation Awards
Design Challenge - Contemporary interpretation of a religious complex
Comments (0)
Please login or sign up to add comments
No comments yet. Be the first to comment!