Press Cafe by IDST
A warm, layered café interior in Fujairah that blends nostalgia and contemporary design, creating a calm, community-focused space for everyday rituals.
Pressing Pause: Reimagining a Neighborhood Café in Fujairah
In one of Fujairah’s older districts, where everyday routines and social rituals remain closely intertwined, Press Cafe has long existed as a familiar local gathering spot. Redesigned by IDST in 2025, the 100 m² café interior reinterprets this well-loved destination with a careful balance of nostalgia and contemporary warmth. Rather than replacing what already worked, the project refines and layers the existing character—enhancing spatial clarity, comfort, and atmosphere while preserving the café’s approachable identity.

The result is an interior that feels quietly intentional: a place to pause, observe, and reconnect. Press Cafe becomes less about novelty and more about continuity—an evolution shaped by memory, human scale, and calm spatial rhythm.
Context: Familiarity as a Design Asset
Press Cafe occupies an existing structure known locally for its openness and unpretentious character. For many residents, it is not simply a coffee shop but part of the social fabric of the neighborhood. The client’s brief was clear: update the space without erasing its sense of familiarity.


This posed a nuanced challenge. The redesign needed to improve circulation, functionality, and spatial hierarchy—accommodating varied group sizes and activities—while ensuring the café continued to feel accessible and rooted. IDST approached this challenge not through dramatic transformation, but through careful calibration, allowing old and new to coexist naturally.

Concept: “Pressing Pause” in the Urban Rhythm
The design concept draws inspiration from the idea of “pressing pause.” In contrast to fast-paced urban environments, Press Cafe offers a gentle counterpoint—an interior defined by rhythm, calmness, and gradual revelation.

Spaces unfold in layers rather than announcing themselves all at once. Movement through the café is intuitive, guided by subtle cues rather than overt gestures. The design supports both social vibrancy and quieter moments of retreat, allowing visitors to choose how they inhabit the space.
This conceptual framework informs every design decision: clarity over clutter, comfort over spectacle, and atmosphere over trend.

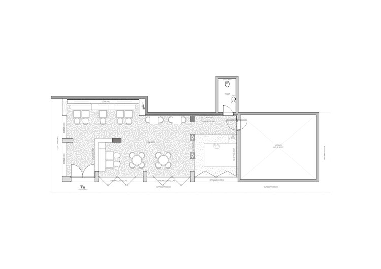
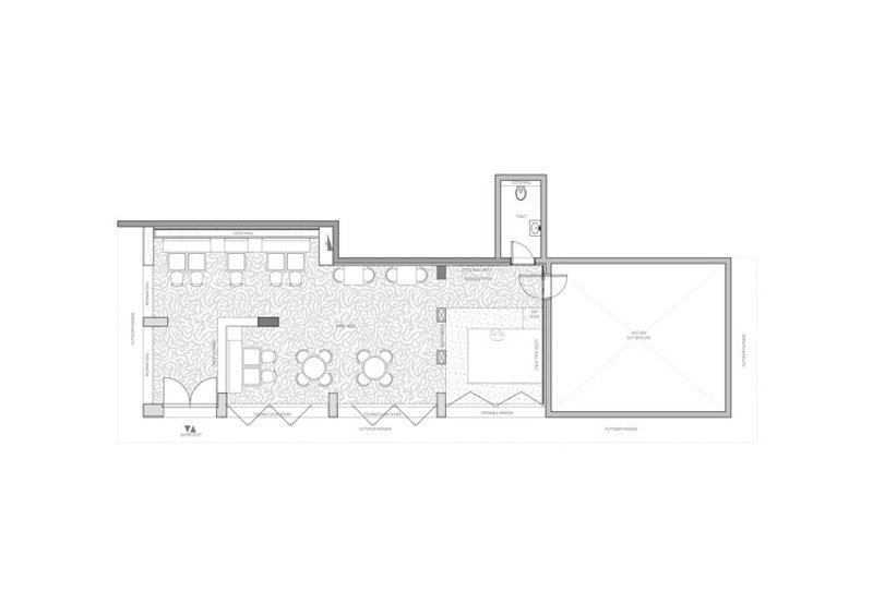
Spatial Strategy: Layered, Legible, Human-Centered
The spatial organization is structured to support Press Cafe’s role as a community-oriented space. Seating arrangements accommodate a wide range of social interactions—from solo visitors and intimate conversations to larger group gatherings reflective of local social culture.
Clear sightlines guide movement from the entrance toward the bar and dining zones, ensuring legibility even within a richly layered interior. Existing columns are not concealed; instead, they are used strategically to frame the bar area and subtly delineate service zones from guest seating.

Walls, thresholds, and changes in material gently define different areas without rigid separation. This approach maintains openness while creating a hierarchy of spaces, allowing the café to feel both cohesive and spatially varied.
Materiality as Rhythm and Memory
Material selection plays a central role in reinforcing the spatial concept. Rather than overwhelming the senses, materials are layered to introduce rhythm, warmth, and familiarity.
FlooringNeo-expressionist porcelain tiles from 42zero41’s Nok collection anchor the interior with playful energy. Their rhythmic patterns subtly guide movement through the café, acting almost as a visual tempo beneath daily activity.
Walls and SurfacesSand-toned plaster walls provide a calm, grounding backdrop. Their neutrality allows other elements—furniture, lighting, and decor—to stand out without visual noise.

Accents and TextureWarm rustic brown leathers and deep burgundy tiles introduce understated retro cues. These tones recall classic café interiors while remaining refined and contemporary, adding depth without nostalgia becoming dominant.
Furniture and FormsFurniture blends contemporary silhouettes with rounded, retro-inspired forms. This mix enhances comfort and reinforces the café’s layered identity—familiar yet refreshed.
Lighting: Guiding Mood and Movement
Lighting is used as a subtle architectural tool, shaping atmosphere and reinforcing spatial progression. Soft daylight filters into the interior, complemented by diffused artificial lighting that highlights both intimate corners and more open seating areas.

Lightbox signage, inspired by classic diner typologies, serves multiple roles. It acts as a wayfinding element, a visual anchor, and a playful reference to the café’s memory-rich past. Rather than dominating the space, these illuminated elements punctuate it—adding character while maintaining calm.
Styling and Cultural Resonance
Beyond architecture and materials, styling plays a narrative role in Press Cafe. Carefully curated vintage objects—radios, clocks, regional records, and Arabic graphic prints—are integrated throughout the space.

These elements are not decorative afterthoughts; they embed cultural memory into the interior. Each object contributes to a sense of place, linking the café to its regional context and everyday history. Together, they deepen the layered experience, connecting materiality with memory and contemporary expression.
A Space Designed for Everyday Rituals
Press Cafe is designed around the small rituals of daily life: ordering coffee, choosing where to sit, lingering in conversation, or enjoying a moment alone. The architecture does not demand attention; it supports presence.
Movement feels natural, seating feels intuitive, and transitions between zones are gentle. The café adapts easily to changing rhythms throughout the day—from quieter mornings to busier social hours—without losing its sense of balance.

This flexibility reinforces the café’s role not just as a destination, but as an extension of the neighborhood’s social life.
Outcome: Continuity Through Renewal
The redesign of Press Cafe succeeds by doing less, not more. It updates the space for contemporary use while preserving the qualities that made it beloved in the first place. The result is an interior that feels cohesive, warm, and human-centered—rooted in memory but open to new experiences.

By prioritizing clarity, comfort, and layered discovery, IDST has repositioned Press Cafe as a familiar yet refreshed gathering place. It stands as an example of how thoughtful interior architecture can strengthen community connection, proving that meaningful design often lies in listening carefully to what already exists.
All the Photographs are works of Natelee Cocks
Popular Articles
Popular articles from the community
The Ken Roberts Memorial Delineation Competition (Krob)
As the most senior architectural drawing competition currently in operation anywhere in the world, it draws hundreds of entries each year, awarding the very best submissions in a series of medium-based categories.
An Miên Lumière Cafe by xưởng xép, Ho Chi Minh City, Vietnam
An industrial-inspired café where layered steel and warm light create a dynamic, immersive environment shaped by reflection, depth, and perception.
Treehouse Apartment: A Warm Timber Interior Blending Craft, Play, and Contemporary Living
Warm timber apartment with integrated treehouse, combining natural materials, craftsmanship, and playful design to create a flexible, family-oriented living environment.
On the Brooks House by Monsoon Collective – A Contemporary Kerala Home Rooted in Tradition
Kerala home blending tradition and modernity with water-inspired design, brick architecture, courtyard planning, and sustainable rainwater harvesting strategies.
Similar Reads
You might also enjoy these articles
The Ken Roberts Memorial Delineation Competition (Krob)
As the most senior architectural drawing competition currently in operation anywhere in the world, it draws hundreds of entries each year, awarding the very best submissions in a series of medium-based categories.
Waterfront Redevelopment and Urban Revitalization in Mumbai: Forging a New Dawn for Darukhana
A transformative waterfront redevelopment project reimagining Darukhana’s shipbreaking heritage into an inclusive urban future.
OUT-OF-MAP: A Call for Postcards on Feminist Narratives of Public Space
Rhizoma Design and Research Lab invites artists, designers, architects, researchers, and students to reflect on how feminist perspectives can reshape public space. Selected works will be exhibited in Barcelona, October 2026. Submissions open until 15 April 2026.
Documentation Work on Buddhist Wooden Temple
Architectural syncretism and cultural hybridity: A comparative study of the Buddhist temples in Chattogram Hill tracks
Explore Architecture Competitions
Discover active competitions in this discipline
The International Standard for Design Portfolios
The Global Benchmark for Architecture Dissertation Awards
The Global Benchmark for Graduation Excellence
Challenge to design luxury tourism on rails
Comments (0)
Please login or sign up to add comments
No comments yet. Be the first to comment!