Rainbow International School by Spacefiction Studio: Redefining Sustainable School Architecture in India
Rainbow International School redefines sustainable school architecture in India through nature-integrated design rooted in climate, culture, and collaboration.
Reconnecting Education with Nature Through Sustainable School Design
Rainbow International School by Spacefiction Studio in Nellore, India, offers a bold and contextual response to the evolving demands of education through a compelling example of sustainable school architecture in India. This three-story institutional addition to an existing campus draws inspiration from India’s ancient gurukul tradition, where open-air learning under trees symbolized a harmonious relationship between education and the environment. In contrast to today’s pressure-driven schooling models, Rainbow International School is a space of exploration, natural interaction, and architectural fluidity.



Gurukul Reimagined: The Philosophy Behind the Design
The core design approach stems from the idea that true education transcends the boundaries of classrooms. Instead of replicating the rigid cells-and-bells model, this school brings learning back to its roots—closer to the earth and sky. The architects draw from the philosophy of the gurukul system, where unstructured, curiosity-led exploration and teacher-student interaction happened in natural surroundings. Through courtyards, natural ventilation, and layered spatial experiences, the design serves as a modern-day reimagining of this timeless learning environment.




Passive Design for a Tropical Climate
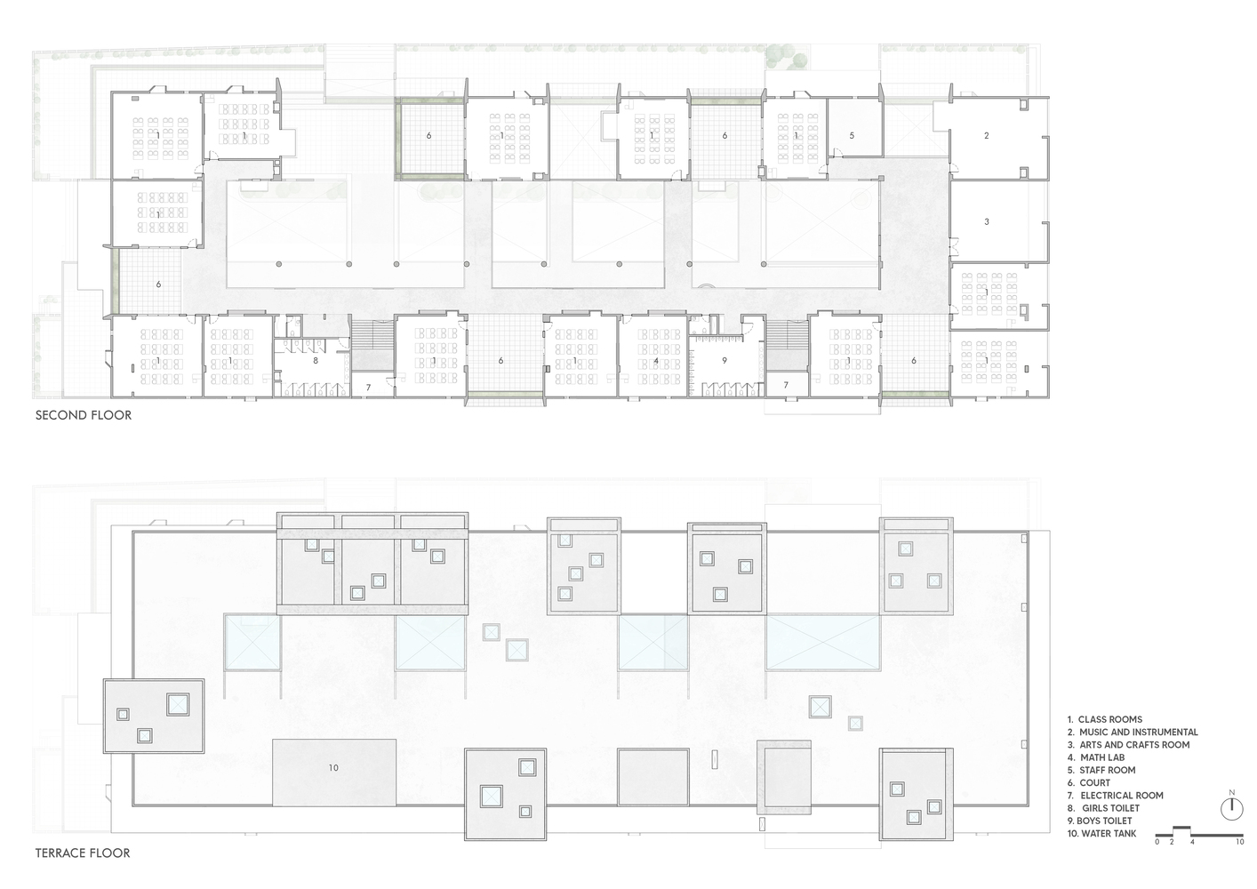
The school’s massing stretches east to west, allowing its longer north-south facades to minimize direct heat gain. A central spine slices through the building, bringing filtered light deep into the interior via skylights. This atrium is lined with planters filled with tropical greens, cooling the space and inviting nature inside. The staggered southern wing blocks harsh solar exposure on the lower floors, enhancing thermal comfort. This thoughtful orientation and passive solar control form the backbone of the school’s environmental responsiveness.




Classrooms Without Borders: A New Typology
Traditional classrooms are replaced with spaces that breathe. On the ground floor, rooms open into shaded north and south courtyards, while upper-level classrooms share expansive, double-height open courts. These design moves eliminate hard enclosures and create flexibility for constructivist learning—where lecture, group work, presentations, and reflection can occur fluidly. This blurring of the inside and outside promotes a relaxed atmosphere conducive to creativity and collaboration, breaking the stereotype of confined, institutional learning.




Learning in the Leftover Spaces
One of the most radical aspects of this sustainable school architecture in India is the celebration of “leftover” or transitional spaces. Instead of being seen as functional voids, these niches and corridors are activated as extensions of the learning environment. From shaded sit-outs to terrace gardens, students move through a continuous flow of spaces that encourage conversation, contemplation, and chance interaction—fostering a strong sense of community and informal learning.





Local Materials, Lasting Impact
Materiality plays a vital role in grounding the school within its regional context. Locally sourced Kota stone and tandoor stone cover the floors and outdoor courts, providing thermal comfort and durability. Aluminum sliding doors between classrooms and courtyards maintain a visual and tactile connection to the outdoors. The understated palette of stone, metal, and glass not only enhances longevity but also minimizes environmental impact through reduced embodied energy.





Towards a Nature-Integrated Pedagogy
By prioritizing elements like wind, light, trees, and layered volumes, Rainbow International School fosters an intrinsic connection to the rhythms of the natural world. The school becomes more than a building—it transforms into an ecosystem for growth. Students are not isolated from nature but immersed within it, learning in tandem with the environment. This nature-integrated design stands in opposition to sterile, artificial learning environments, instead nurturing curiosity and well-being.



A Model for Educational Architecture in India
Rainbow International School demonstrates how sustainable school architecture in India can be deeply rooted in culture, climate, and educational reform. Rather than imposing an external design language, the project grows organically from its setting, balancing innovation with humility. Spacefiction Studio has delivered more than an institution; they’ve built a philosophy—a living, breathing school that reclaims learning as a joyful, collaborative, and nature-connected experience.







All photographs are works of Vivek Eadara
Popular Articles
Popular articles from the community
Treehouse Apartment: A Warm Timber Interior Blending Craft, Play, and Contemporary Living
Warm timber apartment with integrated treehouse, combining natural materials, craftsmanship, and playful design to create a flexible, family-oriented living environment.
Flamboyant House by Juliana Camargo + Prumo Projetos
Modern Brazilian house integrating existing tree, pool, and volumes with glass, wood, and transitional spaces blending interior, exterior, and landscape seamlessly.
The Ken Roberts Memorial Delineation Competition (Krob)
As the most senior architectural drawing competition currently in operation anywhere in the world, it draws hundreds of entries each year, awarding the very best submissions in a series of medium-based categories.
Solar Steam: A Climate-Responsive Architecture That Redefines the Monument
A climate-responsive memorial architecture that transforms heat, decay, and time into a living system reflecting humanity’s ecological impact.
Similar Reads
You might also enjoy these articles
Top 15 Architecture Competitions to Enter in 2026
From student-friendly idea competitions to prestigious international awards, here are the best architecture competitions open for entries in 2026. Updated regularly.
DIY & Engineering in Computational Design : Enter the BeeGraphy Design Awards
Showcase Your Creativity with Computational Design and Open Source Projects

Innovative Design Solutions: Award-Winning Projects from Recent Architecture Competitions
Exploring award-winning architectural projects shaping the future of design, sustainability, and community.
Explore Architecture Competitions
Discover active competitions in this discipline
The International Standard for Design Portfolios
The Global Benchmark for Architecture Dissertation Awards
The Global Benchmark for Graduation Excellence
Challenge to reimagine the Iron Throne
Comments (0)
Please login or sign up to add comments
No comments yet. Be the first to comment!