Redefining Mixed-Use Architecture in Berlin
Exploring Coe48, a modern mixed-use building by Tchoban Voss Architekten, blending Berlin's architectural heritage with contemporary design.
In the heart of Berlin, where architectural history weaves through the vibrant districts of Mitte and Kreuzberg, the Coe48 Office and Apartment Building stands as a modern landmark. Designed by Tchoban Voss Architekten, this seven-story structure harmonizes contemporary aesthetics with the eclectic architectural tapestry of Koepenicker Strasse. Completed in 2024, it offers a dynamic blend of living and working spaces, catering to the evolving needs of urban life.




Architectural Context: A Meeting of Eras
Koepenicker Strasse has long been a corridor of architectural contrasts, featuring turn-of-the-century industrial buildings alongside post-war utilitarian structures. The Coe48 project pays homage to this history while asserting its modern identity. Situated at the corner of Koepenicker Strasse and Wilhelmine-Gemberg-Weg, the building embraces its historical surroundings with a façade that juxtaposes sculptural bay windows, green terraces, and expansive window openings. The result is a visually engaging structure that continues the street's architectural dialogue.








Conceptual Design: Flexible Living and Working Spaces
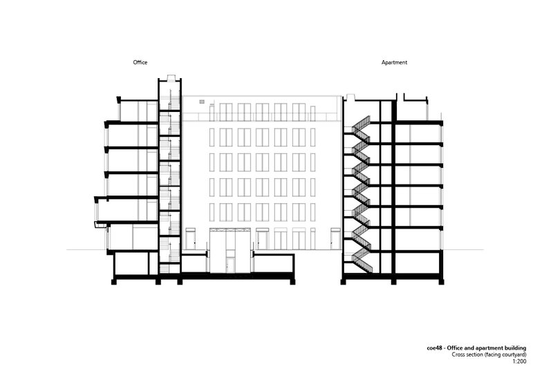
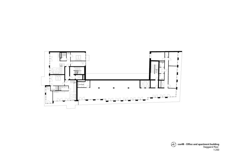
The Coe48 building is divided into two distinct sections—office spaces and residential apartments. Each has its own dedicated entrance and core, ensuring functionality and privacy. The office portion is characterized by a sand-colored architectural concrete façade, enriched by vertical supports that animate the exterior with light and shadow. The residential section, lighter in tone, features a sleek Alucobond façade with cubic geometry, creating a harmonious yet distinct visual interplay between the two sections.





Interior Highlights: Modern Art Meets Functionality
The residential entrance is a striking contrast of materials, featuring exposed concrete alongside a vibrant pink wall housing letterboxes. This space is elevated by a neon light installation by Berlin artist Anna Nezhnaya, adding a contemporary artistic flair. Inside, the apartments and office spaces are designed for flexibility and openness. With ceilings reaching up to 3.80 meters and floor-to-ceiling windows, the interiors emphasize light and space, offering a versatile environment for both living and working.






Green Spaces: A Breath of Fresh Air
Greenery plays a crucial role in the design, with landscaped roofs and private terraces offering moments of tranquility amidst the urban setting. The inner courtyard, accessible to residents, creates a peaceful sanctuary while fostering community within the bustling city. These green elements not only enhance the aesthetic appeal but also contribute to the building's sustainability.




Mixed-Use Functionality: A Modern Urban Ecosystem
The ground floor houses a 137-square-meter gastronomy unit with a separate café, energizing the neighborhood with a social hub. The office spaces, occupying the southwestern portion of the building, offer layouts adaptable to various needs. Interestingly, these areas can be converted into additional living spaces, reflecting a forward-thinking approach to urban development. The residential section comprises 19 rental flats, each featuring large windows and private terraces, ensuring a blend of comfort and modernity.




Coe48 by Tchoban Voss Architekten exemplifies the future of mixed-use architecture in urban settings. It bridges the past and present, blending flexibility, sustainability, and aesthetics to create a vibrant community hub. By balancing distinct functions and celebrating Berlin's rich architectural heritage, Coe48 emerges as a model for modern urban living and working.



All Photographs are work of Klemens Renner
Popular Articles
Popular articles from the community
Split House: A Compact Urban Home Blending Privacy, Light, and Flexible Living in Japan
Compact Japanese home featuring DOMA space, flexible café potential, passive lighting, privacy zoning, and sustainable urban living design.
Fifth NRE Jazz Club – De Bever Architecten: Eindhoven’s Revitalized Cultural Hub
Historic gas factory transformed into Fifth NRE Jazz Club blending modern sustainability, jazz culture, dining, and heritage architecture seamlessly.
Inverted Architecture Installation by Studio Link-Arc: Exploring the Intersection of Architecture and Living Organisms
Inverted Architecture Installation by Studio Link-Arc blends mycelium, sustainability, inverted design, ecological cycles, and urban adaptive architecture in Shenzhen.
The Ken Roberts Memorial Delineation Competition (Krob)
As the most senior architectural drawing competition currently in operation anywhere in the world, it draws hundreds of entries each year, awarding the very best submissions in a series of medium-based categories.
Similar Reads
You might also enjoy these articles
The Ken Roberts Memorial Delineation Competition (Krob)
As the most senior architectural drawing competition currently in operation anywhere in the world, it draws hundreds of entries each year, awarding the very best submissions in a series of medium-based categories.
Waterfront Redevelopment and Urban Revitalization in Mumbai: Forging a New Dawn for Darukhana
A transformative waterfront redevelopment project reimagining Darukhana’s shipbreaking heritage into an inclusive urban future.
OUT-OF-MAP: A Call for Postcards on Feminist Narratives of Public Space
Rhizoma Design and Research Lab invites artists, designers, architects, researchers, and students to reflect on how feminist perspectives can reshape public space. Selected works will be exhibited in Barcelona, October 2026. Submissions open until 15 April 2026.
Documentation Work on Buddhist Wooden Temple
Architectural syncretism and cultural hybridity: A comparative study of the Buddhist temples in Chattogram Hill tracks
Explore Architecture Competitions
Discover active competitions in this discipline
The International Standard for Design Portfolios
The Global Benchmark for Architecture Dissertation Awards
The Global Benchmark for Graduation Excellence
Challenge to design mud housing for contemporary communities
Comments (0)
Please login or sign up to add comments
No comments yet. Be the first to comment!