Redefining Student Housing Design: The University of Warsaw’s Student House No. 7
The article explores the innovative student housing design of the University of Warsaw’s Student House No. 7, emphasizing community, sustainability, and functionality.
In recent years, the design of student housing has evolved to meet the needs of modern students. With an increasing focus on comfort, community, sustainability, and accessibility, new student dormitories are being designed with the goal of enhancing both the student experience and the overall academic environment. The University of Warsaw’s Student House No. 7, designed by Projekt Praga, is a prime example of how student housing design can set new standards for functionality, aesthetics, and community.




A New Era in Student Housing Design
Student housing has long been an afterthought in architectural design, with many university dormitories characterized by their utilitarian function rather than the comfort and well-being of students. The Student House No. 7, however, offers a fresh approach to student living in Poland. This modern dormitory, which houses 382 students, has become a benchmark in student housing design, blending form and function to create a space that fosters academic success and social interaction.




Innovative Architectural Features
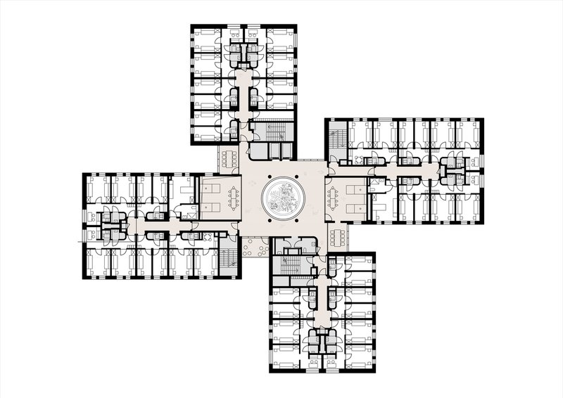
The design of Student House No. 7 challenges traditional student housing layouts. The building, covering nearly 10,300 m², features a unique four-wing structure that moves away from the conventional corridor-based design often seen in dorms. Each wing is designed to house a small community of students, creating intimate, close-knit living environments that encourage interaction. A central glass atrium brings natural light into the building, promoting an open, welcoming atmosphere.



The structure’s "inverted" courtyard ensures privacy while allowing for easy movement between shared spaces and private areas. This thoughtful design approach enhances students' sense of belonging and community while maintaining the individuality of each living space.



Community and Connectivity at the Heart of the Design
At the core of Student House No. 7’s design is the emphasis on community. The building’s common spaces, such as kitchens, lounges, and study areas, are designed to facilitate spontaneous interactions between students. Each floor includes dedicated spaces for both individual and group work, ensuring that students can balance their social and academic lives.



The ground floor features amenities that further promote community engagement, such as a fitness area, laundry room, and communal lounge. Outdoor spaces, such as a recreational terrace, sports square, and café, complement the building’s design and provide students with a variety of places to relax and socialize.



Sustainability and Accessibility in Student Housing
Sustainability is a key aspect of the design of Student House No. 7. The building incorporates energy-efficient systems, such as solar panels and a heat recovery system, to minimize environmental impact and operational costs. External blinds help regulate indoor temperatures, while the use of permeable surfaces in the landscape design ensures that the building blends seamlessly with its natural surroundings.


In addition to sustainability, the building is designed to be fully accessible to all students. Step-free access, clear navigation, and the inclusion of rooms adapted for students with disabilities ensure that the dormitory is an inclusive space for everyone. This thoughtful attention to accessibility sets a new standard for student housing design.


A Model for the Future of Student Housing
The University of Warsaw’s Student House No. 7 is more than just a dormitory; it is a model for future student housing projects. By prioritizing community, functionality, sustainability, and accessibility, the building offers a new vision for student living that can be replicated in other academic institutions around the world.


The design of Student House No. 7 proves that it is possible to create a high-quality, sustainable living space for students without relying on massive budgets or private investment. This project sets a new benchmark for public student housing, demonstrating that architecture can improve the student experience while remaining economically viable.

Transforming Student Living Through Design
As more universities seek to provide students with modern, comfortable living spaces, the University of Warsaw’s Student House No. 7 stands as a beacon of innovation. Its focus on community, accessibility, and sustainability makes it a standout example of student housing design that prioritizes the well-being of students while also contributing to a vibrant campus environment. The success of this project marks a significant shift in the way student housing is conceived and built, inspiring future generations of architects to continue pushing the boundaries of what student living can be.

All Photographs are works of Nate Cook Photography, ONI studio
Popular Articles
Popular articles from the community
Inverted Architecture Installation by Studio Link-Arc: Exploring the Intersection of Architecture and Living Organisms
Inverted Architecture Installation by Studio Link-Arc blends mycelium, sustainability, inverted design, ecological cycles, and urban adaptive architecture in Shenzhen.
Treehouse Apartment: A Warm Timber Interior Blending Craft, Play, and Contemporary Living
Warm timber apartment with integrated treehouse, combining natural materials, craftsmanship, and playful design to create a flexible, family-oriented living environment.
Louis Malle Cinema: A Limestone Cultural Landmark Revitalizing Community Life in Prayssac
Limestone cinema extension with public forecourt, blending heritage and modern design to create flexible cultural spaces and strengthen community interaction.
The Ken Roberts Memorial Delineation Competition (Krob)
As the most senior architectural drawing competition currently in operation anywhere in the world, it draws hundreds of entries each year, awarding the very best submissions in a series of medium-based categories.
Similar Reads
You might also enjoy these articles
Bamboo Housing Challenge 2026: Design Affordable, Sustainable Homes Using Bamboo
An international design competition by Bamboo U and IBUKU inviting architects and designers to reimagine affordable housing using bamboo — with the winning design built full-scale in Bali.
Computational Design & Education: Beegraphy Design Awards Introduces 7th Category (Featuring Jiyun's Innovative Approach)
Dive into Beegraphy’s 7th Design Awards category, where computational design meets education to create immersive, interactive learning tools, inspired by Jiyun’s work.
From Parametric Lighting to Urban Furniture: Join the 2nd Workshop in Beegraphy’s Computational Design Series
Dive into Cutting-Edge Design Techniques and Practical Applications with Industry Experts
Introducing Sphere by UNI: Pioneering a New Era in AEC Industry
Unlocking Global Potential with BIM and Agile Management
Explore Architecture Competitions
Discover active competitions in this discipline
The International Standard for Design Portfolios
The Global Benchmark for Architecture Dissertation Awards
The Global Benchmark for Graduation Excellence
Challenge to reimagine the Iron Throne
Comments (0)
Please login or sign up to add comments
No comments yet. Be the first to comment!